TANIEJ O 519 zł
4599 zł
4080 zł
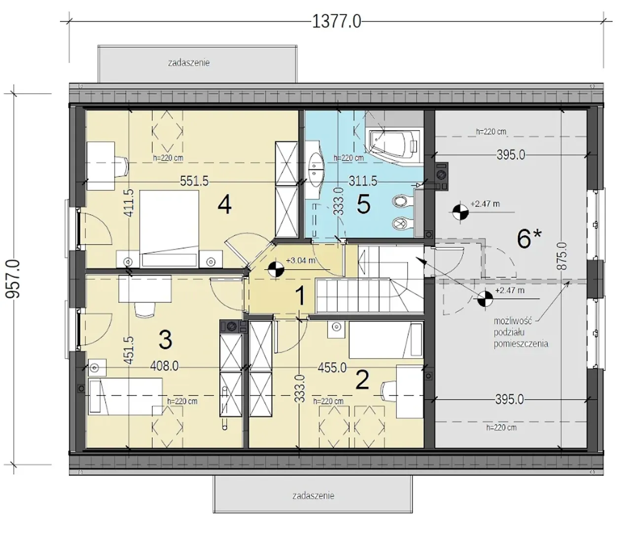
Sowa 6 z garażem 2-st.




Rzut parteru Sowa 6 z garażem 2-st.
