Pinczer 1 bez garażu



Wypełnij formularz i otrzymaj rysunki w pdf z dokładnymi wymiarami budynku i pomieszczeń (długość, szerokość, wysokość) dla projektu Pinczer 4 z garażem XL
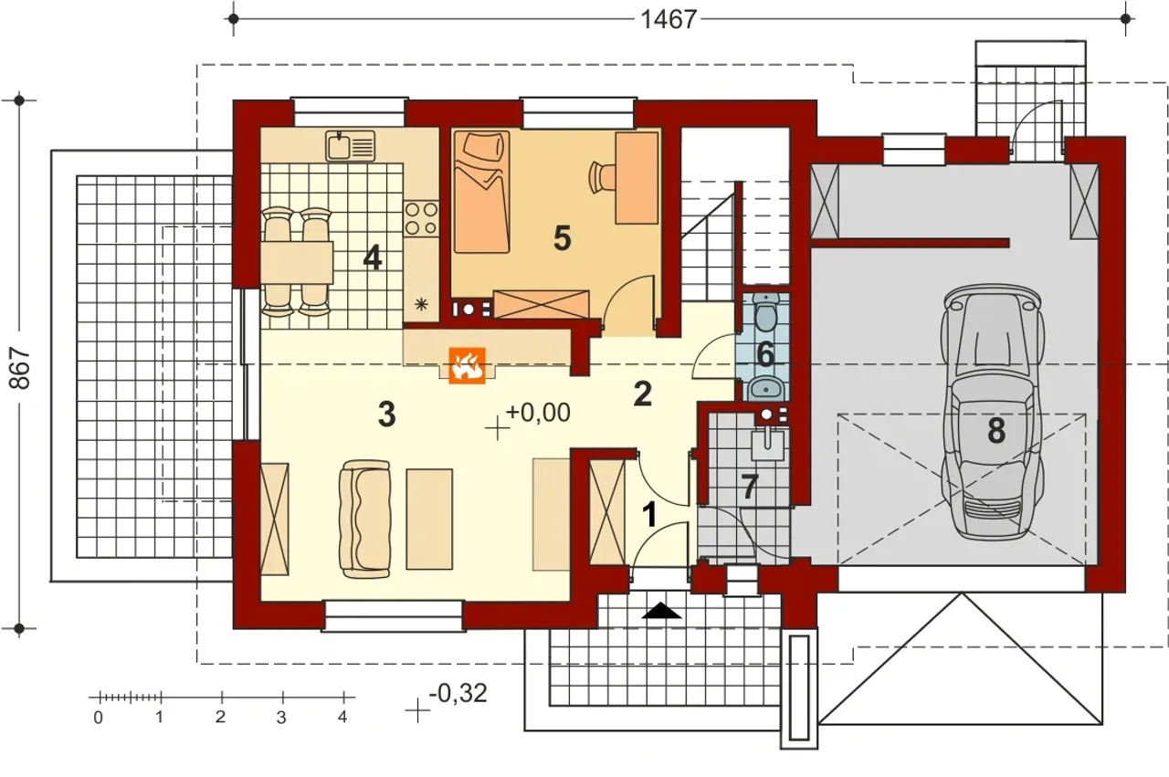
Ilość pokoi 5 |
Pow. użytkowa 100.6 m² |
Powierzchnia zabudowy 117.7 m² |
Kondygnacje parterowy+poddasze |
Garaż 1 stanowisko |
Technologia murowany |
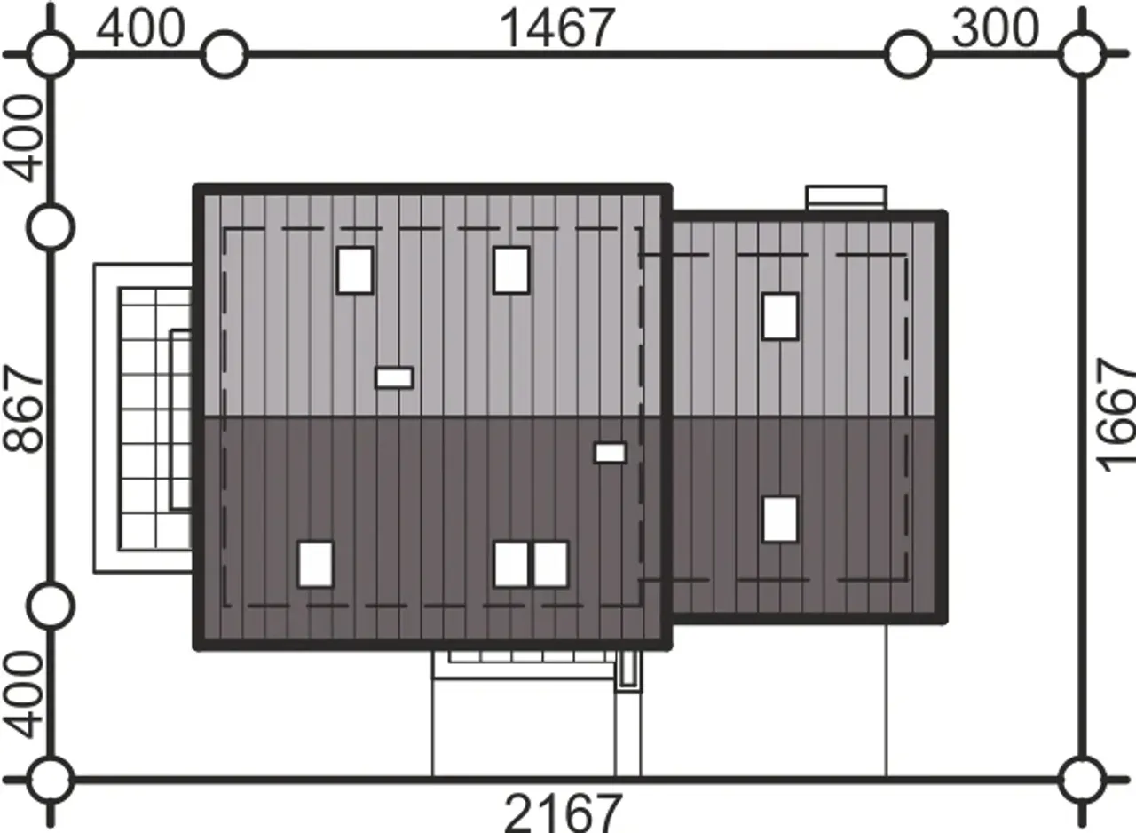
Szerokość działki 21.67 m |
Obiekt dom |
Typ domu jednorodzinny całoroczny |
Kalenica równoległa do drogi |
Długość budynku 8.67 m |
Piwnica bez podpiwniczenia |
Kubatura 395.6 m³ |
Rodzaj garażu przyklejony |
Funkcje dodatkowe ze strychem |
Powierzchnia dachu 214.5 m² |
Rodzaj dachu dwuspadowy |
Długość działki 16.67 m |
Wysokość budynku 8.15 m |
Bryła budynku prosta bryła |
Styl budynku tradycyjny |
Liczba łazieniek 1 |
Strop gęstożebrowy |
Szerokość budynku 14.67 m |
Kominek kominek w projekcie |
Kąt nachylenia dachu 40 ° |
Koszty budowy tylko z kosztorysem, 200-250 tys. |
Ilość pokoi 5 |
Powierzchnia zabudowy 117.7 m² |
Garaż 1 stanowisko |
Szerokość działki 21.67 m |
Typ domu jednorodzinny całoroczny |
Długość budynku 8.67 m |
Kubatura 395.6 m³ |
Funkcje dodatkowe ze strychem |
Rodzaj dachu dwuspadowy |
Wysokość budynku 8.15 m |
Styl budynku tradycyjny |
Strop gęstożebrowy |
Kominek kominek w projekcie |
Koszty budowy tylko z kosztorysem, 200-250 tys. |
Pow. użytkowa 100.6 m² |
Kondygnacje parterowy+poddasze |
Technologia murowany |
Obiekt dom |
Kalenica równoległa do drogi |
Piwnica bez podpiwniczenia |
Rodzaj garażu przyklejony |
Powierzchnia dachu 214.5 m² |
Długość działki 16.67 m |
Bryła budynku prosta bryła |
Liczba łazieniek 1 |
Szerokość budynku 14.67 m |
Kąt nachylenia dachu 40 ° |
Kupując projekt w technologii murowanej powinieneś budować dom murowany. Zupełna zmiana technologii na szkieletową wymaga przeprojektowania całego budynku ( zmieniają się obciążenia, fundamenty, konstrukcja dachu). Wydamy zgodę na takie przeprojektowanie jednak wiążę się to z dużymi kosztami. Istnieją firmy wykonawcze, które podejmują się zmiany technologii budowy bezpłatnie przy skorzystaniu z ich usług wykonawczych. Zdarza się, że pracownia architektoniczna przygotowuje warianty konkretnego projektu przewidując także inne technologie. Prosimy o sprawdzenie czy istnieje poszukiwana wersja projektu, w zakładce - warianty projektu.
Zwężenie/poszerzenie budynku* to nic innego jak zmiana w projekcie. Istnieje możliwość wprowadzenia takich zmian, we własnym zakresie (podczas adaptacji). *zwężenie/poszerzenie budynku nie powinno stanowić problemu w przypadku domów o dachu dwuspadowym jeśli wiąże się to z wydłużeniem/skróceniem kalenicy dachu.
Poznaj praktyczne porady ekspertów, które ułatwią Ci każdy etap budowy i od wyboru wymarzonego domu po jego wykończenie. Zyskaj pewność, że podejmujesz najlepsze decyzje dzięki sprawdzonym wskazówkom od specjalistów z planz.pl
Wycena szacunkowa, w kwotach netto, nie zawiera instalacji.
bezpłatnie (0zł)
przelew zwykły / PayNow
przy odbiorze
3-5 dni roboczych
Wybierz wygodny dla Ciebie czas kontaktu z naszym Doradcą Technicznym.