Horyzont





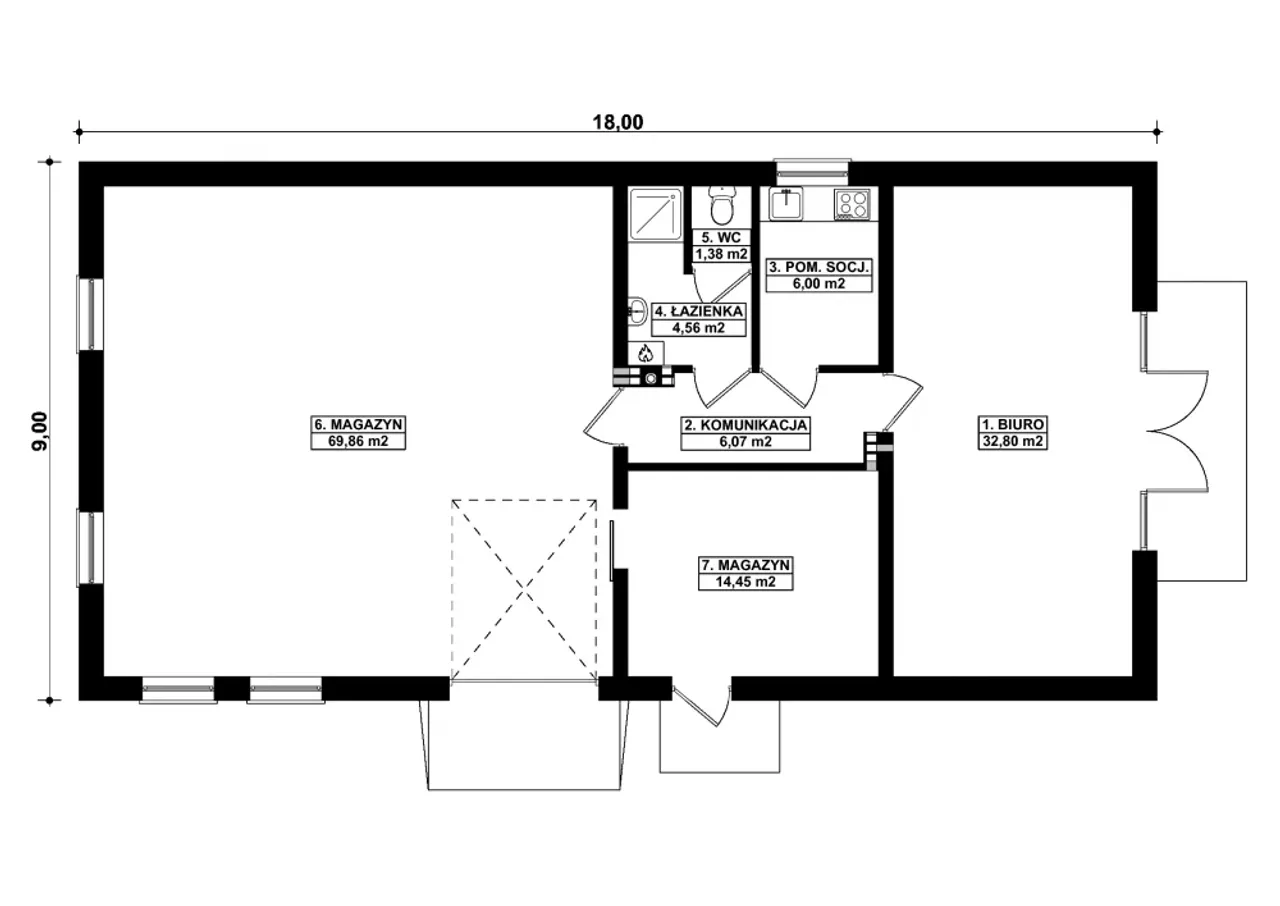
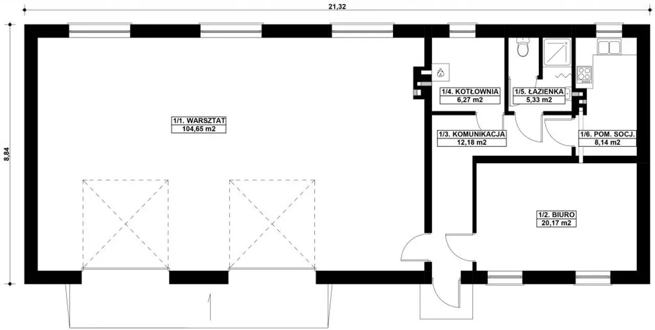
Projekty pawilonów handlowych oraz projekty sklepów to kategoria gotowych opracowań budynków przeznaczonych do prowadzenia działalności handlowej lub usługowej. Pawilony handlowe cieszą się dużym zainteresowaniem inwestorów, którzy chcą szybko i efektywnie zrealizować inwestycję związaną z budową małych obiektów handlowych. W naszej ofercie znajdziesz zarówno projekty pawilonów blaszanych, drewnianych, jak i murowanych. Każdy projekt dostosowany jest do różnych stylów – od tradycyjnych po nowoczesne konstrukcje, które idealnie wpisują się w miejski krajobraz.
Projekty pawilonów handlowych i projekty sklepów na Planz.pl to kompleksowe opracowania, które zawierają pełnobranżowe dokumentacje, obejmujące m.in. instalacje sanitarne i elektryczne. Budowa pawilonu handlowego jest zazwyczaj szybsza i tańsza niż realizacja tradycyjnych budynków mieszkalnych, co czyni te inwestycje atrakcyjnymi dla przedsiębiorców. Oferujemy szeroki wybór gotowych projektów, które można dostosować do specyficznych potrzeb działalności.
W naszej ofercie znajdziesz projekty pawilonów handlowych i projekty sklepów, które zostały stworzone z myślą o elastyczności i dostosowaniu do różnych potrzeb inwestorów. Proponujemy budynki o różnej powierzchni użytkowej, z możliwością modyfikacji wnętrz w zależności od rodzaju działalności. Niezależnie od tego, czy planujesz otwarcie małego sklepu, kiosku, pawilonu z gastronomią, czy też większego obiektu handlowego, nasze projekty dają szeroki wachlarz możliwości.
Budowa pawilonu handlowego wymaga spełnienia licznych norm bezpieczeństwa, w tym przepisów BHP oraz ochrony przeciwpożarowej (ppoż.). Wszystkie nasze projekty pawilonów handlowych oraz projekty sklepów są zgodne z obowiązującymi przepisami, co daje bezpieczne użytkowanie obiektów zarówno przez personel, jak i klientów. Oto kilka ważnych aspektów, które uwzględniamy w naszych projektach:
Nasze projekty pawilonów handlowych oraz projekty sklepów dostępne są w różnych stylach i technologiach budowlanych. Możesz wybrać projekt blaszany, drewniany lub murowany w zależności od swoich potrzeb oraz budżetu inwestycyjnego. Oferujemy nowoczesne rozwiązania architektoniczne, które idealnie komponują się z miejskim i podmiejskim otoczeniem, a także bardziej klasyczne projekty pasujące do spokojniejszych lokalizacji.
Wybór gotowego projektu pawilonu handlowego lub sklepu to szybka i oszczędna droga do realizacji inwestycji. Dzięki pełnobranżowym opracowaniom dostępnym na Planz.pl, proces budowy może rozpocząć się niemal natychmiast po uzyskaniu pozwoleń. Wszystkie nasze projekty uwzględniają lokalne normy budowlane oraz są dostosowane do różnych warunków gruntowych, co znacząco ułatwia adaptację projektu do wybranej działki.
Inwestycja w projekt pawilonu handlowego lub projekt sklepu to doskonały sposób na szybkie uruchomienie działalności handlowej lub usługowej. Wybierając projekt z Planz.pl, masz pewność, że otrzymasz nowoczesne i funkcjonalne rozwiązanie, które spełnia wszelkie wymogi techniczne i prawne. Dzięki naszym projektom możesz zrealizować inwestycję w krótkim czasie i cieszyć się solidnym obiektem, który przyciągnie klientów oraz będzie działać przez wiele lat.
Wybierz wygodny dla Ciebie czas kontaktu z naszym Doradcą Technicznym.