Terrier 4 z garażem



Wypełnij formularz i otrzymaj rysunki w pdf z dokładnymi wymiarami budynku i pomieszczeń (długość, szerokość, wysokość) dla projektu Terrier Max z garażem
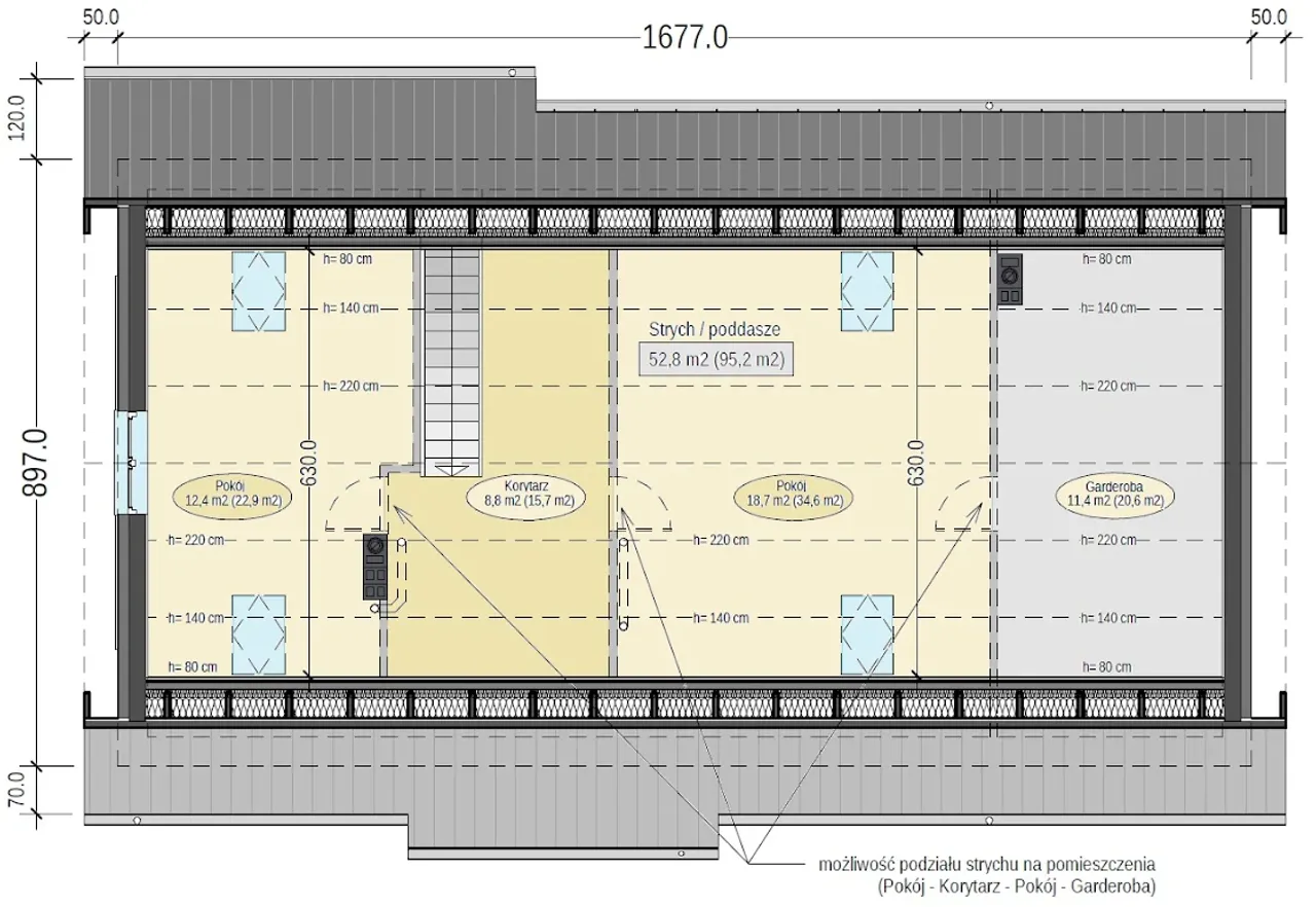
Pow. użytkowa 97 m² |
Ilość pokoi 4 |
Powierzchnia zabudowy 150.4 m² |
Kondygnacje parterowy |
Garaż 1 stanowisko |
Technologia murowany |
Szerokość działki 23.79 m |
Obiekt dom |
Typ domu jednorodzinny całoroczny |
Kubatura 502.1 m³ |
Kalenica równoległa do drogi |
Powierzchnia dachu 228.5 m² |
Rodzaj garażu w bryle |
Długość działki 17.97 m |
Ogrzewanie paliwo stałe |
Wysokość budynku 6.92 m |
Rodzaj dachu dwuspadowy |
Funkcje dodatkowe z dwoma wejściami |
Przechowywanie w kuchni spiżarnia |
Bryła budynku prosta bryła |
Liczba łazieniek 1 |
Szerokość budynku 16.77 m |
Styl budynku nowoczesny |
Kominek kominek w projekcie |
Kąt nachylenia dachu 35 ° |
Długość budynku 8.97 m |
Piwnica bez podpiwniczenia |
Strop gęstożebrowy |
Koszty budowy tylko z kosztorysem, 250-300 tys. |
Pow. użytkowa 97 m² |
Powierzchnia zabudowy 150.4 m² |
Garaż 1 stanowisko |
Szerokość działki 23.79 m |
Typ domu jednorodzinny całoroczny |
Kalenica równoległa do drogi |
Rodzaj garażu w bryle |
Ogrzewanie paliwo stałe |
Rodzaj dachu dwuspadowy |
Przechowywanie w kuchni spiżarnia |
Liczba łazieniek 1 |
Styl budynku nowoczesny |
Kąt nachylenia dachu 35 ° |
Piwnica bez podpiwniczenia |
Koszty budowy tylko z kosztorysem, 250-300 tys. |
Ilość pokoi 4 |
Kondygnacje parterowy |
Technologia murowany |
Obiekt dom |
Kubatura 502.1 m³ |
Powierzchnia dachu 228.5 m² |
Długość działki 17.97 m |
Wysokość budynku 6.92 m |
Funkcje dodatkowe z dwoma wejściami |
Bryła budynku prosta bryła |
Szerokość budynku 16.77 m |
Kominek kominek w projekcie |
Długość budynku 8.97 m |
Strop gęstożebrowy |
Kupując projekt w technologii murowanej powinieneś budować dom murowany. Zupełna zmiana technologii na szkieletową wymaga przeprojektowania całego budynku ( zmieniają się obciążenia, fundamenty, konstrukcja dachu). Wydamy zgodę na takie przeprojektowanie jednak wiążę się to z dużymi kosztami. Istnieją firmy wykonawcze, które podejmują się zmiany technologii budowy bezpłatnie przy skorzystaniu z ich usług wykonawczych. Zdarza się, że pracownia architektoniczna przygotowuje warianty konkretnego projektu przewidując także inne technologie. Prosimy o sprawdzenie czy istnieje poszukiwana wersja projektu, w zakładce - warianty projektu.
Zwężenie/poszerzenie budynku* to nic innego jak zmiana w projekcie. Istnieje możliwość wprowadzenia takich zmian, we własnym zakresie (podczas adaptacji). *zwężenie/poszerzenie budynku nie powinno stanowić problemu w przypadku domów o dachu dwuspadowym jeśli wiąże się to z wydłużeniem/skróceniem kalenicy dachu.
Poznaj praktyczne porady ekspertów, które ułatwią Ci każdy etap budowy i od wyboru wymarzonego domu po jego wykończenie. Zyskaj pewność, że podejmujesz najlepsze decyzje dzięki sprawdzonym wskazówkom od specjalistów z planz.pl
Wycena szacunkowa, w kwotach netto, nie zawiera instalacji.
bezpłatnie (0zł)
przelew zwykły / PayNow
przy odbiorze
3-5 dni roboczych
Wybierz wygodny dla Ciebie czas kontaktu z naszym Doradcą Technicznym.