Zoltan



Zawartość projektu
3 egzemplarze projektu archtektoniczno budowlanego + 3 egzemplarze projektu technicznego.
- opis techniczny (wraz z analizą techniczną, środowiskową i ekonomiczną)
- rzuty wszystkich kondygnacji- pokazuje rozmieszczenie poszczególnych pomieszczeń i ich wymiary, powierzchnie, rozmieszczenie ścian, rozmieszczenie otworów drzwiowych, okiennych, urządzeń kuchennych i sanitarnych
- rzut więźby dachowej - pokazuje układ elementów konstrukcyjnych dachu i ich przekroje, zestawienie elementów więźby dachowej
- rzut dachu - ukazuje jego kształt, wymiary, kąt nachylenia połaci, rozmieszczenie okien połaciowych, lukarn, świetlików i rur spustowych, pokazuje rozmieszczenie kominów i informuje o sposobie odwodnienia: rozmieszczeniu i rozmiarach rynien
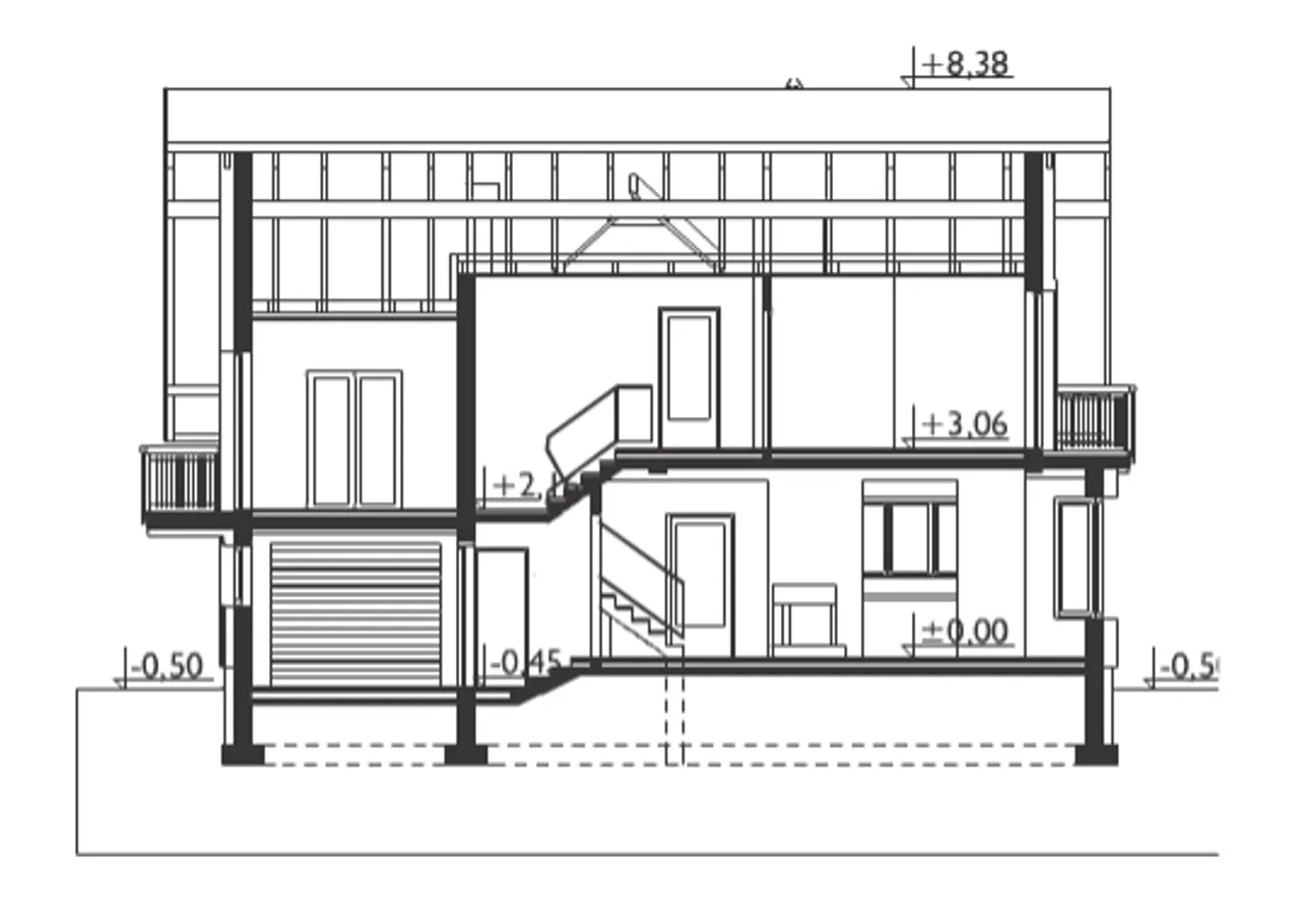
- przekroje - pokazują wszystkie elementy budynku po przecięciu go wzdłuż lub w poprzek od dachu do fundamentów tj. warstwy podłogi, stropów i dachu
- elewacje - pokazują dokładny wygląd domu od frontu, z tyłu i z boków
Dodatkowo w projekcie znajduje się:
- aksonometria więźby dachowej - przedstawia widok aksonometryczny więźby i jej elementów (dla dachów skomplikowanych)
- zestawienia stolarki okiennej i drzwiowej - wykazy okien i drzwi zawartych w projekcie i sposób ich otwierania
Projekt techniczny zawiera:
- projekt konstrukcji: zawiera opis techniczny, obliczenia statyczno-wytrzymałościowe, rzuty fundamentów i płyt stropowych w skali 1:50, rysunki detali konstrukcyjnych (zbrojenie schodów, słupów, wieńców, nadproży), zestawienia stali konstrukcyjnej
- projekt instalacji sanitarnych: zawiera opis techniczny oraz rysunki z rozmieszczeniem elementów instalacji: wodno-kanalizacyjnej, centralnego ogrzewania, gazowej - w skali 1:50
- projekt instalacji elektrycznej: zawiera opis techniczny, schemat ideowy oraz rysunki z rozmieszczeniem elementów instalacji: wodno-kanalizacyjnej, centralnego ogrzewania, gazowej - w skali 1:50 oraz opis zastosowanych rozwiązań
- projekt instalacji wentylacji mechanicznej (o ile występuje): zawiera opis techniczny oraz rysunki z rozmieszczeniem elementów instalacji
1. Wiatrołap | 3,80 m² |
2. Hol | 7,30 m² |
3. Kuchnia | 9,20 m² |
4. Pokój dzienny | 26,70 m² |
5. Pokój | 11,50 m² |
6. łazienka | 4,60 m² |
7. Klatka schodowa | 2,80 m² |
8. Schowek | 2,80 m² |
9. Korytarz | 1,70 m² |
10. Garaż | 18,10 m² |
11. Kotłownia | 7,00 m² |
1. Klatka schodowa | 2,80 m² |
2. Przedpokój | 6,90 m² |
3. Pokój | 11,60 (14,80) m² |
4. Pokój | 12,70 (15,90) m² |
5. Pokój | 14,00 (15,40) m² |
6. Sypialnia | 15,60 m² |
7. Garderoba | 2,60 (3,00) m² |
8. łazienka | 5,60 (6,00) m² |
9. łazienka | 9,10 (10,30) m² |
10. Pralnia | 2,80 m² |
Wypełnij formularz i otrzymaj rysunki w pdf z dokładnymi wymiarami budynku i pomieszczeń (długość, szerokość, wysokość) dla projektu Zoltan Atu
Pow. użytkowa 144.7 m² |
Ilość pokoi 6 |
Powierzchnia zabudowy 126.4 m² |
Kondygnacje parterowy+poddasze |
Garaż 1 stanowisko |
Technologia murowany |
Szerokość działki 21.4 m |
Obiekt dom |
Typ domu jednorodzinny całoroczny |
Powierzchnia dachu 165 m² |
Długość działki 21.2 m |
Wysokość budynku 8.9 m |
Styl budynku nowoczesny |
Kalenica równoległa do drogi |
Kominek kominek w projekcie |
Funkcje dodatkowe z pralnią |
Szerokość budynku 13.2 m |
Kotłownia duża kotłownia |
Kąt nachylenia dachu 42 ° |
Długość budynku 11.4 m |
Rodzaj garażu przyklejony |
Piwnica bez podpiwniczenia |
Kubatura 811.1 m³ |
Rodzaj dachu dwuspadowy |
Koszty budowy 350-400 tys., tylko z kosztorysem |
Pow. użytkowa 144.7 m² |
Powierzchnia zabudowy 126.4 m² |
Garaż 1 stanowisko |
Szerokość działki 21.4 m |
Typ domu jednorodzinny całoroczny |
Długość działki 21.2 m |
Styl budynku nowoczesny |
Kominek kominek w projekcie |
Szerokość budynku 13.2 m |
Kąt nachylenia dachu 42 ° |
Rodzaj garażu przyklejony |
Kubatura 811.1 m³ |
Koszty budowy 350-400 tys., tylko z kosztorysem |
Ilość pokoi 6 |
Kondygnacje parterowy+poddasze |
Technologia murowany |
Obiekt dom |
Powierzchnia dachu 165 m² |
Wysokość budynku 8.9 m |
Kalenica równoległa do drogi |
Funkcje dodatkowe z pralnią |
Kotłownia duża kotłownia |
Długość budynku 11.4 m |
Piwnica bez podpiwniczenia |
Rodzaj dachu dwuspadowy |
Kupując projekt w technologii murowanej powinieneś budować dom murowany. Zupełna zmiana technologii na szkieletową wymaga przeprojektowania całego budynku ( zmieniają się obciążenia, fundamenty, konstrukcja dachu). Wydamy zgodę na takie przeprojektowanie jednak wiążę się to z dużymi kosztami. Istnieją firmy wykonawcze, które podejmują się zmiany technologii budowy bezpłatnie przy skorzystaniu z ich usług wykonawczych. Zdarza się, że pracownia architektoniczna przygotowuje warianty konkretnego projektu przewidując także inne technologie. Prosimy o sprawdzenie czy istnieje poszukiwana wersja projektu, w zakładce - warianty projektu.
Zwężenie/poszerzenie budynku* to nic innego jak zmiana w projekcie. Istnieje możliwość wprowadzenia takich zmian, we własnym zakresie (podczas adaptacji). *zwężenie/poszerzenie budynku nie powinno stanowić problemu w przypadku domów o dachu dwuspadowym jeśli wiąże się to z wydłużeniem/skróceniem kalenicy dachu.
Poznaj praktyczne porady ekspertów, które ułatwią Ci każdy etap budowy i od wyboru wymarzonego domu po jego wykończenie. Zyskaj pewność, że podejmujesz najlepsze decyzje dzięki sprawdzonym wskazówkom od specjalistów z planz.pl
Wycena szacunkowa, w kwotach netto, nie zawiera instalacji.
bezpłatnie (0zł)
przelew zwykły / PayNow
przy odbiorze
2-5 dni roboczych (jeśli projekt nie wymaga aktualizacji)
Ciekawy projekt o przemyślanej koncepcji. Wydaje się być wystarczająco przestronny i funkcjonalny.+
Wybierz wygodny dla Ciebie czas kontaktu z naszym Doradcą Technicznym.