uA41v4



Zawartość projektu
1. Wiatrołap | 7,80 m² |
2. Korytarz | 6,08 m² |
3. Kuchnia | 11,57 m² |
4. Jadalnia | 13,27 m² |
5. Pokój dzienny | 24,45 m² |
6. Pokój | 11,82 m² |
7. łazienka | 8,28 m² |
8. Pom. gospodarcze | 12,25 m² |
9. Pom. gospodarcze | 4,84 m² |
10. Pom. gospodarcze | 7,33 m² |
11. Garaż | 46,08 m² |
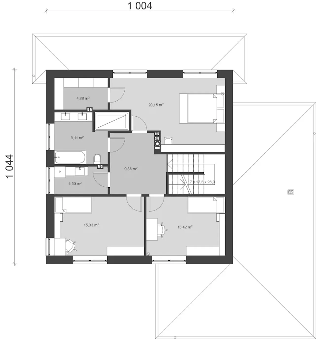
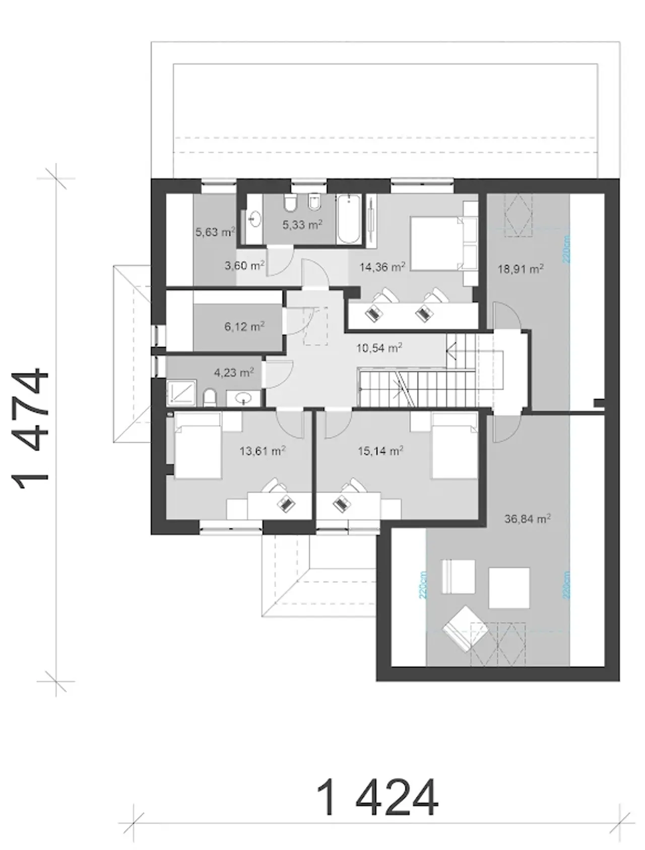
1. Korytarz | 10,54 m² |
2. Pokój | 15,14 m² |
3. Pokój | 13,61 m² |
4. łazienka | 4,23 m² |
5. Garderoba | 6,12 m² |
6. Garderoba | 5,63 m² |
7. łazienka | 5,33 m² |
8. Korytarz | 3,60 m² |
9. Sypialnia | 14,36 m² |
10. Garderoba | 13,98 m² |
11. Garderoba | 28,70 m² |
Wypełnij formularz i otrzymaj rysunki w pdf z dokładnymi wymiarami budynku i pomieszczeń (długość, szerokość, wysokość) dla projektu UA41v5
Pow. użytkowa 204.5 m² |
Ilość pokoi 5 |
Powierzchnia zabudowy 192.67 m² |
Kondygnacje piętrowy |
Garaż 2 stanowiska |
Technologia murowany |
Szerokość działki 21.24 m |
Obiekt dom |
Typ domu jednorodzinny całoroczny |
Wysokość budynku 9.7 m |
Kąt nachylenia dachu drugiego 2 |
Styl budynku wille i rezydencje |
Liczba łazieniek 3 |
Szerokość budynku 14.24 m |
Kominek kominek opcjonalnie |
Kąt nachylenia dachu 25 ° |
Kalenica bez znaczenia |
Długość budynku 15.94 m |
Piwnica bez podpiwniczenia |
Funkcje dodatkowe z wykuszem |
Kubatura 985 m³ |
Rodzaj garażu z przodu |
Powierzchnia dachu 300 m² |
Rodzaj dachu wielospadowy |
Długość działki 24.94 m |
Ogrzewanie gaz |
Koszty budowy powyżej 700 tys., tylko z kosztorysem |
Pow. użytkowa 204.5 m² |
Powierzchnia zabudowy 192.67 m² |
Garaż 2 stanowiska |
Szerokość działki 21.24 m |
Typ domu jednorodzinny całoroczny |
Kąt nachylenia dachu drugiego 2 |
Liczba łazieniek 3 |
Kominek kominek opcjonalnie |
Kalenica bez znaczenia |
Piwnica bez podpiwniczenia |
Kubatura 985 m³ |
Powierzchnia dachu 300 m² |
Długość działki 24.94 m |
Koszty budowy powyżej 700 tys., tylko z kosztorysem |
Ilość pokoi 5 |
Kondygnacje piętrowy |
Technologia murowany |
Obiekt dom |
Wysokość budynku 9.7 m |
Styl budynku wille i rezydencje |
Szerokość budynku 14.24 m |
Kąt nachylenia dachu 25 ° |
Długość budynku 15.94 m |
Funkcje dodatkowe z wykuszem |
Rodzaj garażu z przodu |
Rodzaj dachu wielospadowy |
Ogrzewanie gaz |
Kupując projekt w technologii murowanej powinieneś budować dom murowany. Zupełna zmiana technologii na szkieletową wymaga przeprojektowania całego budynku ( zmieniają się obciążenia, fundamenty, konstrukcja dachu). Wydamy zgodę na takie przeprojektowanie jednak wiążę się to z dużymi kosztami. Istnieją firmy wykonawcze, które podejmują się zmiany technologii budowy bezpłatnie przy skorzystaniu z ich usług wykonawczych. Zdarza się, że pracownia architektoniczna przygotowuje warianty konkretnego projektu przewidując także inne technologie. Prosimy o sprawdzenie czy istnieje poszukiwana wersja projektu, w zakładce - warianty projektu.
Zwężenie/poszerzenie budynku* to nic innego jak zmiana w projekcie. Istnieje możliwość wprowadzenia takich zmian, we własnym zakresie (podczas adaptacji). *zwężenie/poszerzenie budynku nie powinno stanowić problemu w przypadku domów o dachu dwuspadowym jeśli wiąże się to z wydłużeniem/skróceniem kalenicy dachu.
Poznaj praktyczne porady ekspertów, które ułatwią Ci każdy etap budowy i od wyboru wymarzonego domu po jego wykończenie. Zyskaj pewność, że podejmujesz najlepsze decyzje dzięki sprawdzonym wskazówkom od specjalistów z planz.pl
Wycena szacunkowa, w kwotach netto, nie zawiera instalacji.
bezpłatnie (0zł)
przelew zwykły / PayNow
przy odbiorze
2-4 dni robocze (jeśli projekt nie jest koncepcją)
Wybierz wygodny dla Ciebie czas kontaktu z naszym Doradcą Technicznym.