uA41



Zawartość projektu
1. Wiatrołap | 7,81 m² |
2. Gabinet | 11,65 m² |
3. łazienka | 3,93 m² |
4. Pokój dzienny | 24,19 m² |
5. Jadalnia | 8,02 m² |
6. Kuchnia | 11,02 m² |
7. Spiżarnia | 4,06 m² |
8. Korytarz | 4,95 m² |
9. Pom. gospodarcze | 10,93 m² |
10. Garaż | 39,82 m² |
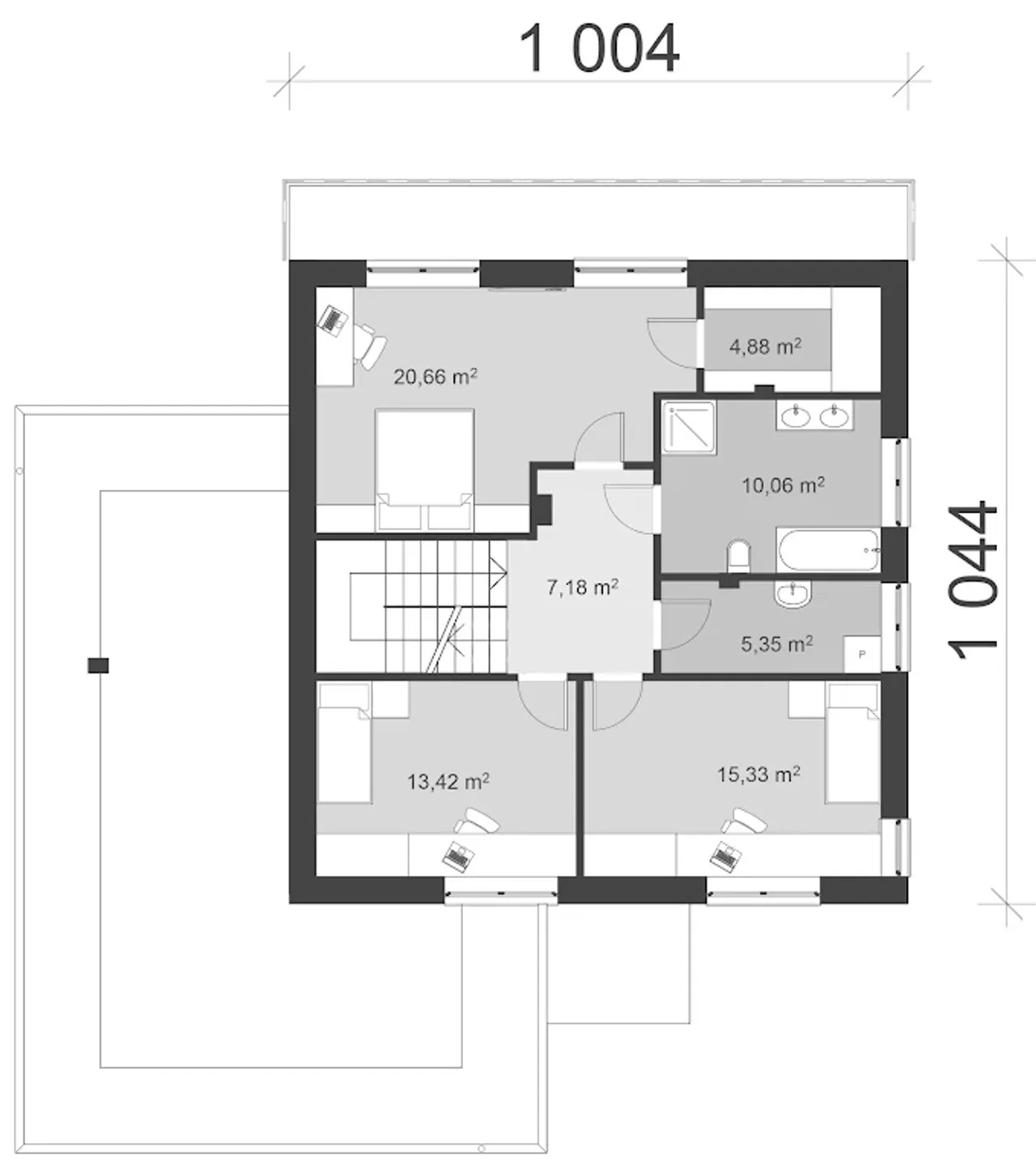
1. Korytarz | 7,60 m² |
2. Pokój 1 | 14,37 m² |
3. Pokój 2 | 14,37 m² |
4. Pralnia | 5,20 m² |
5. łazienka | 10,00 m² |
6. Garderoba | 6,47 m² |
7. Sypialnia | 18,79 m² |
Wypełnij formularz i otrzymaj rysunki w pdf z dokładnymi wymiarami budynku i pomieszczeń (długość, szerokość, wysokość) dla projektu uA41v4
Ilość pokoi 5 |
Pow. użytkowa 152.1 m² |
Powierzchnia zabudowy 161.05 m² |
Kondygnacje piętrowy |
Garaż 2 stanowiska |
Technologia murowany |
Szerokość działki 20.54 m |
Obiekt dom |
Typ domu jednorodzinny całoroczny |
Długość działki 23.59 m |
Ogrzewanie gaz |
Wysokość budynku 10.26 m |
Przechowywanie w kuchni spiżarnia |
Liczba łazieniek 2 |
Styl budynku nowoczesny |
Kominek kominek w projekcie |
Szerokość budynku 13.54 m |
Taras z tarasem |
Kąt nachylenia dachu 35 ° |
Długość budynku 14.94 m |
Piwnica bez podpiwniczenia |
Kalenica prostopadła do drogi |
Kubatura 990 m³ |
Rodzaj garażu z przodu |
Funkcje dodatkowe z pralnią |
Powierzchnia dachu 258 m² |
Rodzaj dachu wielospadowy |
Koszty budowy 400-450 tys., tylko z kosztorysem |
Ilość pokoi 5 |
Powierzchnia zabudowy 161.05 m² |
Garaż 2 stanowiska |
Szerokość działki 20.54 m |
Typ domu jednorodzinny całoroczny |
Ogrzewanie gaz |
Przechowywanie w kuchni spiżarnia |
Styl budynku nowoczesny |
Szerokość budynku 13.54 m |
Kąt nachylenia dachu 35 ° |
Piwnica bez podpiwniczenia |
Kubatura 990 m³ |
Funkcje dodatkowe z pralnią |
Rodzaj dachu wielospadowy |
Pow. użytkowa 152.1 m² |
Kondygnacje piętrowy |
Technologia murowany |
Obiekt dom |
Długość działki 23.59 m |
Wysokość budynku 10.26 m |
Liczba łazieniek 2 |
Kominek kominek w projekcie |
Taras z tarasem |
Długość budynku 14.94 m |
Kalenica prostopadła do drogi |
Rodzaj garażu z przodu |
Powierzchnia dachu 258 m² |
Koszty budowy 400-450 tys., tylko z kosztorysem |
Kupując projekt w technologii murowanej powinieneś budować dom murowany. Zupełna zmiana technologii na szkieletową wymaga przeprojektowania całego budynku ( zmieniają się obciążenia, fundamenty, konstrukcja dachu). Wydamy zgodę na takie przeprojektowanie jednak wiążę się to z dużymi kosztami. Istnieją firmy wykonawcze, które podejmują się zmiany technologii budowy bezpłatnie przy skorzystaniu z ich usług wykonawczych. Zdarza się, że pracownia architektoniczna przygotowuje warianty konkretnego projektu przewidując także inne technologie. Prosimy o sprawdzenie czy istnieje poszukiwana wersja projektu, w zakładce - warianty projektu.
Zwężenie/poszerzenie budynku* to nic innego jak zmiana w projekcie. Istnieje możliwość wprowadzenia takich zmian, we własnym zakresie (podczas adaptacji). *zwężenie/poszerzenie budynku nie powinno stanowić problemu w przypadku domów o dachu dwuspadowym jeśli wiąże się to z wydłużeniem/skróceniem kalenicy dachu.
Poznaj praktyczne porady ekspertów, które ułatwią Ci każdy etap budowy i od wyboru wymarzonego domu po jego wykończenie. Zyskaj pewność, że podejmujesz najlepsze decyzje dzięki sprawdzonym wskazówkom od specjalistów z planz.pl
Wycena szacunkowa, w kwotach netto, nie zawiera instalacji.
bezpłatnie (0zł)
przelew zwykły / PayNow
przy odbiorze
2-4 dni robocze (jeśli projekt nie jest koncepcją)
Wybierz wygodny dla Ciebie czas kontaktu z naszym Doradcą Technicznym.