22 299 20 00 (pn-nd 9.30 do 19.30)

Gotowy projekt domu Tamara Modern G2 (ID: 20932)

4499 2026-01-19
Tamara Modern G2 - 116.58m²
Dostawa w ciągu 3-10 dni
Gwarantujemy najniższą cenę
4499 zł
(4799 zł brutto)
TANIEJ 300 zł do 13.01.2026
Najniższa cena z 30 dni przed obniżką: 4499 zł
4499 2026-01-19
W cenie projektu:
📣 GRATIS: WIERTARKA UDAROWA
  • Tablica + dziennik budowy
  • 16 projektów ogrodowych
  • Darmowa wysyłka (kurier, paczkomat, pobranie)
  • 30 dni na zwrot
  • Pozwolenie na zmiany z podpisem i pieczęcią autora
  • GRATIS: Wiertarka Udarowa
22 299 20 00 (pn-nd 9.30 do 19.30)

Zawartość projektu

 

Dokumentacja projektowa zgodnie z nowymi przepisami WT2021 dostarczana jest w formie: 3+3 egzemplarze.
Czyli w dwóch częściach zawierających:
I - projekt architektoniczno-budowlany (opis i rysunki, charakterystyka energetyczna)
II - projekt techniczny, obejmujący:opracowanie konstrukcyjne, projekt wewnętrznych instalacji sanitarnych (wodnej, kanalizacyjnej, gazowej lub/i instalacji na paliwo stałe, c. o.), projekt wewnętrznej instalacji elektrycznej oraz instalację odgromową, zestawienie stali oraz drewna na więźbę dachową.
 
W części architektonicznej znajdują się:
1. Opis architektoniczno-budowlany
2. Charakterystyka energetyczna
3. Część rysunkowa:
- Schemat usytuowania domu na minimalnej działce
- Aranżacja wnętrza parteru i poddasza.
- Elewacje
- Rzuty kondygnacji
- Rzut dachu
- Dwa przekroje [minimum]
- Zestawienie stolarki okiennej i drzwiowej
 
Projekt techniczny zawiera:
1. Opis konstrukcji
2. Zestawienie stali oraz drewna na więźbę dachową
3. Część rysunkową:
- Część rysunków architektury (rzuty, przekroje, elewacje)
- Rzut fundamentów
- Rzut stropów i nadproży
- Rzut więźby dachowej
- Rysunki elementów żelbetowych
4. Opis instalacji
5. Część rysunkową instalacji w budynku:
- Instalację c.o. - gazową lub/i instalację na paliwo stałe
- Instalację wody ciepłej, zimnej i kanalizacji
- Instalację elektryczną
- Instalację odgromową
- Alternatywą wentylację mechaniczną z rekuperacją
 
Zawartość projektu nie dotyczy budynków gospodarczych, garaży oraz obiektów malej architektury.
Zawartość projektów bez rozrysowanej na rzucie kotłowni/łazienki/kuchni może nie obejmować schematów c.o. i wodno-kanalizacyjnych. W przypadku obiektów małej architektury - również może nie zawierać schematów instalacji elektrycznej.

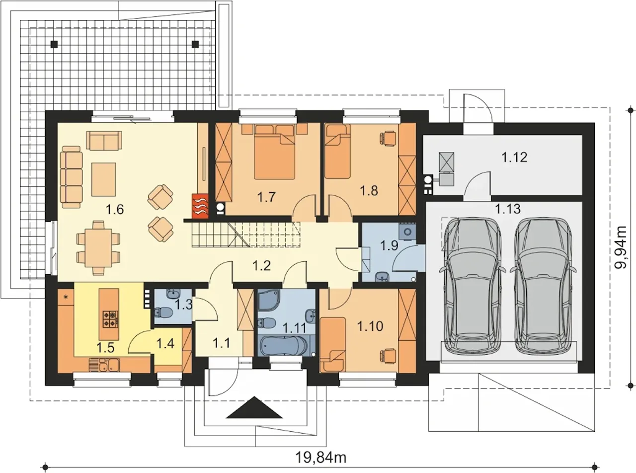
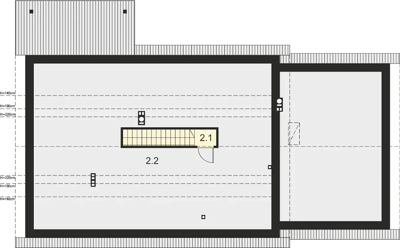
Rzuty gotowego projektu domu Tamara Modern G2

1. Wiatrołap 5,07 m²
2. Komunikacja 11,45 m²
3. Wc 1,67 m²
4. Spiżarnia 2,18 m²
5. Kuchnia 9,94 m²
6. Salon + jadalnia 31,11 m²
7. Pokój 12,37 m²
8. Pokój 11,02 m²
9. Pralnia 4,13 m²
10. Pokój 10,54 m²
11. łazienka 5,05 m²
12. Kotłownia 12,05 m²
13. Garaż 32,26 m²
1. Komunikacja 1,08 (1,08) m²
2. Strych 45,34 (110,92) m²

Zapoznaj się ze szczegółami projektu - zamów bezpłatne rysunki do: Tamara Modern G2

Wypełnij formularz i otrzymaj na podany adres e-mail rysunki w pdf z dokładnymi wymiarami budynku i pomieszczeń (długość, szerokość, wysokość) dla projektu Tamara Modern G2

Parametry Techniczne gotowego projektu domu Tamara Modern G2

Pow. użytkowa 116.58 m²
Ilość pokoi 4
Powierzchnia zabudowy 191.81 m²
Kondygnacje parterowy
Garaż 2 stanowiska
Technologia murowany
Szerokość działki 26.84 m
Obiekt dom
Typ domu jednorodzinny całoroczny
Wysokość budynku 7.15 m
Kominek kominek w projekcie
Kalenica równoległa do drogi
Rodzaj garażu przyklejony
Ogrzewanie gaz, paliwo stałe
Kotłownia duża kotłownia
Funkcje dodatkowe z pralnią
Ek 68.86
Rodzaj dachu dwuspadowy
Szerokość budynku 19.84 m
Taras z tarasem
Przechowywanie w kuchni spiżarnia
Długość budynku 9.94 m
Bryła budynku prosta bryła
Piwnica bez podpiwniczenia
Kubatura 981.54 m³
Styl budynku nowoczesny
Kąt nachylenia dachu 35 °
Powierzchnia dachu 293.06 m²
Długość działki 19.39 m
Strop żelbetowy
Liczba łazieniek 1
Koszty budowy tylko z kosztorysem, 250-300 tys.

Energia i ogrzewanie gotowego projektu domu Tamara Modern G2

Źródło ogrzewania:
gaz
paliwo stałe
otrzymasz wszystkie rozwiązania, wybierasz przy adaptacji
Wentylacja: Mechaniczna nawiewno-wywiewna z rekuperacją lub grawitacyjna - otrzymasz wszystkie rozwiązania, wybierasz przy adaptacji
Parametry energetyczne:
Ep: 24.8 kWh/(m²rok)
Ek: 68.86 kWh/(m²rok)
Euco: 41.22 kWh/(m²rok)

Wnętrza domu Tamara Modern G2

Nasze prawdziwe opinie z Google

Opis projektu domu Tamara Modern G2

Projekt TAMARA MODERN G2 to budynek o klasycznej formię. Ma zaprojektowane dwa rodzaje ogrzewania, gazowe oraz na paliwo stałe. Dom posiada garaż, który pomieści dwa samochody.

Technologia wykonania:

  • Budynek posadowiony został na fundamentach betonowych.
  • Ściany zewnętrzne: dwuwarstwowe z betonu komórkowego.
  • Ściany wewnętrzne: z betonu komórkowego jak i z płyty gipsowo-kartonowej [na ruszcie].
  • Strop: żelbetowy - wylewany. Więźba dachowa drewniana.
  • Pokrycie dachu: dachówka ceramiczna lub cementowa.

Częste pytania

Czy projekty z Planz.pl są kompletne?

Tak. Projekty dostępne na Planz.pl zawierają pełną dokumentację potrzebną do uzyskania pozwolenia na budowę i stanowią gwarancję sprawnej realizacji budowy.

Jesteśmy oficjalnym partnerem ponad 50 pracowni architektonicznych z całej Polski - dlatego każdy projekt pochodzi wyłącznie od autorów zrzeszonych w Izbie Architektów RP. 

Planz.pl to polska firma działającą na rynku od 15 lat. Mamy tysiące zadowolonych klientów, doskonałe opinie i oferujemy wsparcie również po zakupie, doradzamy, pomagamy w adaptacji i pozostajemy w kontakcie na każdym etapie inwestycji.

Dodatkowo do każdego projektu dodajemy tablicę informacyjną, dziennik budowy oraz 16 projektów elektronicznych drewnianej architektury ogrodowej. A dzięki naszej współpracy z producentami sprzętu elektrycznego, oferujemy możliwość otrzymania np. Wiertarki udarowej w formie atrakcyjnego gratisu.

Wybierając Planz.pl, otrzymujesz ten sam oryginalny projekt od autora, wzbogacony o realne dodatki, które ułatwiają rozpoczęcie budowy.

Czy mogę wprowadzić zmiany w projekcie?

Co zrobić gdy wybrany dom nie mieści się na działce?

Jakie zmiany można wprowadzić w projekcie?

Porady ekspertów

Poznaj praktyczne porady ekspertów, które ułatwią Ci każdy etap budowy i od wyboru wymarzonego domu po jego wykończenie. Zyskaj pewność, że podejmujesz najlepsze decyzje dzięki sprawdzonym wskazówkom od specjalistów z planz.pl

Co zawiera projekt

  • ✓ 3 x projekt architektoniczno-budowlany ➞ szczegóły
  • ✓ Projekty techniczne ➞ szczegóły
  • ✓ charakterystyka energetyczna (do projektów domów)
  • ✓ zgoda na zmiany w projekcie ➞ szczegóły
  • ✓ GRATIS: Wiertarka (do projektów w cenie od 3000 zł)
  • ✓ GRATIS: 16 projektów (drewutni, altany i wiaty)
  • ✓ GRATIS: tablica i dziennik budowy
  • ✓ GRATIS: przesyłka kurierska

Dodatki do projektu Tamara Modern G2

Dodatki możesz kupić razem z projektem lub dokupić po czasie

[Archiportal] Zestawienie materiałów (0 zł)

[Archiportal] kosztorys w wersji papierowej (500 zł)

[Archiportal] Dodatkowy egzemplarz projektu (450 zł)

[Archiportal] Pakiet energo+ (650 zł)

[Archiportal] Wersja elektroniczna projektu (700 zł)

[Planz] Tablica budowlana (0 zł)

[Planz] Dziennik budowy (0 zł)

[Planz] Wiertarka udarowa (0 zł)

[Planz] Zgoda na zmiany w projekcie (0 zł)

[Planz] Projekty architektury ogrodowej (0 zł)

[Planz] Charakterystyka energetyczna, tylko dla domów całorocznych (0 zł)

Wysyłka i płatność za projekt Tamara Modern G2

Koszty wysyłki

bezpłatnie (0zł)

Formy płatności

przelew zwykły / PayNow
przy odbiorze

Czas oczekiwania

1-2 dni roboczych (jeśli projekt nie jest koncepcją)

 

Wersje gotowego projektu domu Tamara Modern G2

Podobne projekty do domu Tamara Modern G2

TANIEJ O 530 zł
3890 zł 3360 zł

Dom przy Przyjaznej 2

powierzchnia 127.6 m²
technologia murowany
stanowisk w garażu 2 stanowiska
kondygnacja parterowy+poddasze
Zobacz projekt

Szacunkowy kosztorys dla projektu Tamara Modern G2

Stan surowy zamknięty 200500 zł
Stan surowy zamknięty
Stan deweloperski 266500 zł
Stan deweloperski

Wycena szacunkowa, w kwotach netto, nie zawiera instalacji.

PRACOWNIA: Archiportal Katarzyna Maciejewska