Niko 2



1. Przedsionek | 3,33 m² |
2. Wc | 1,65 m² |
3. Holl | 7,41 m² |
4. Spiżarnia | 1,82 m² |
5. Kuchnia | 12,85 m² |
6. Pokój dzienny | 25,82 m² |
7. Korytarz | 6,43 m² |
8. Gabinet | 8,24 m² |
9. Sypialnia | 13,23 m² |
10. łazienka | 4,68 m² |
11. Kotłownia | 4,73 m² |
12. Garaż | 31,14 m² |
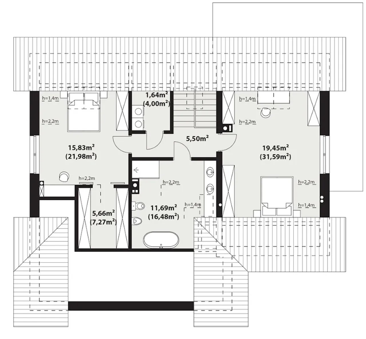
1. Korytarz | 5,50 m² |
2. Pralnia | 1,64 (4,00) m² |
3. Sypialnia | 15,83 (21,98) m² |
4. Garderoba | 5,66 (7,27) m² |
5. łazienka | 11,69 (16,48) m² |
6. Sypialnia | 19,45 (31,59) m² |
Wypełnij formularz i otrzymaj rysunki w pdf z dokładnymi wymiarami budynku i pomieszczeń (długość, szerokość, wysokość) dla projektu Niko 5
Ilość pokoi 5 |
Pow. użytkowa 149.96 m² |
Powierzchnia zabudowy 173.62 m² |
Kondygnacje parterowy+poddasze |
Garaż 1 stanowisko |
Technologia murowany |
Szerokość działki 21.65 m |
Obiekt dom |
Typ domu jednorodzinny całoroczny |
Strop żelbetowy |
Kubatura 985 m³ |
Kalenica równoległa do drogi |
Powierzchnia dachu 270 m² |
Rodzaj garażu z przodu |
Długość działki 22.75 m |
Ogrzewanie gaz, paliwo stałe |
Wysokość budynku 7.25 m |
Rodzaj dachu dwuspadowy |
Liczba łazieniek 2 |
Przechowywanie w kuchni spiżarnia |
Bryła budynku plan litery L |
Kominek kominek w projekcie |
Szerokość budynku 12.65 m |
Styl budynku tradycyjny |
Taras z tarasem |
Kąt nachylenia dachu 35 ° |
Długość budynku 14.75 m |
Piwnica bez podpiwniczenia |
Koszty budowy 350-400 tys., tylko z kosztorysem |
Ilość pokoi 5 |
Powierzchnia zabudowy 173.62 m² |
Garaż 1 stanowisko |
Szerokość działki 21.65 m |
Typ domu jednorodzinny całoroczny |
Kubatura 985 m³ |
Powierzchnia dachu 270 m² |
Długość działki 22.75 m |
Wysokość budynku 7.25 m |
Liczba łazieniek 2 |
Bryła budynku plan litery L |
Szerokość budynku 12.65 m |
Taras z tarasem |
Długość budynku 14.75 m |
Koszty budowy 350-400 tys., tylko z kosztorysem |
Pow. użytkowa 149.96 m² |
Kondygnacje parterowy+poddasze |
Technologia murowany |
Obiekt dom |
Strop żelbetowy |
Kalenica równoległa do drogi |
Rodzaj garażu z przodu |
Ogrzewanie gaz, paliwo stałe |
Rodzaj dachu dwuspadowy |
Przechowywanie w kuchni spiżarnia |
Kominek kominek w projekcie |
Styl budynku tradycyjny |
Kąt nachylenia dachu 35 ° |
Piwnica bez podpiwniczenia |
Odkryj projekt domu, który łączy elegancką stylistykę z funkcjonalnością na każdy dzień. Starannie zaprojektowany, murowany dom jednorodzinny Niko 5 w kształcie litery „L” wyróżnia się przemyślanym układem pomieszczeń oraz szerokim wachlarzem udogodnień, by spełnić oczekiwania zarówno małej, jak i większej rodziny. To konstrukcja stworzona z myślą o osobach ceniących spokój, komfort i nowoczesną tradycję, a także funkcjonalność i solidność na lata.
Projekt sprawdzi się zarówno na miejskiej, jak i podmiejskiej działce, a jego przystosowanie do ogrzewania gazowego lub na paliwo stałe odpowiada najnowszym trendom oraz wymaganiom inwestorów poszukujących oszczędnych i ekologicznych rozwiązań.
Dom oparty na projekcie Niko 5 stanowi znakomity wybór dla osób, które chcą uzyskać maksymalną funkcjonalność przy zachowaniu stylu i klasy. Pięć przestronnych pokoi daje poczucie intymności i własnej przestrzeni każdemu członkowi rodziny. Garaż umieszczony od frontu domu został zaprojektowany tak, by zapewnić łatwy, bezpośredni dostęp do części mieszkalnej, co szczególnie doceniają rodziny z małymi dziećmi oraz osoby starsze.
Dwuspadowy dach pokryty dachówką lub blachodachówką skutecznie chroni przed kaprysami pogody, a równoległe ustawienie kalenicy względem drogi ułatwia usytuowanie budynku na działce. Docieplenie ścian z pustaka ceramicznego styropianem sprzyja utrzymaniu stabilnej temperatury w domu przez cały rok, minimalizując straty energii. Kominek przewidziany w projekcie tworzy przytulną atmosferę w salonie, sprzyja rodzinnej integracji w jesienne i zimowe wieczory oraz stanowi dodatkowe źródło ciepła.
Elewacja realizowana jest w nowoczesnym stylu, z wykorzystaniem trwałego tynku i ozdobnej płytki, co podnosi walory estetyczne budynku. Ściany zewnętrzne dwuwarstwowe, z pustaka ceramicznego i styropianu, zapewniają świetną izolację termiczną. Dom nie wymaga podpiwniczenia, co znacząco obniża koszty realizacji, a żelbetowy strop gwarantuje stabilność wszystkich kondygnacji. Oferowana technologia murowana to wybór pewny i sprawdzony - inwestorzy cenią ją za długowieczność i łatwość użytkowania, a tradycyjny styl budynku harmonijnie wpisuje się w każdy krajobraz.
Nie zwlekaj - wybierz projekt domu Niko 5 i zbuduj solidną przyszłość swojej rodziny! Przekonaj się, jak łatwo można stworzyć wyjątkowe, funkcjonalne miejsce do życia.
Kupując projekt w technologii murowanej powinieneś budować dom murowany. Zupełna zmiana technologii na szkieletową wymaga przeprojektowania całego budynku ( zmieniają się obciążenia, fundamenty, konstrukcja dachu). Wydamy zgodę na takie przeprojektowanie jednak wiążę się to z dużymi kosztami. Istnieją firmy wykonawcze, które podejmują się zmiany technologii budowy bezpłatnie przy skorzystaniu z ich usług wykonawczych. Zdarza się, że pracownia architektoniczna przygotowuje warianty konkretnego projektu przewidując także inne technologie. Prosimy o sprawdzenie czy istnieje poszukiwana wersja projektu, w zakładce - warianty projektu.
Zwężenie/poszerzenie budynku* to nic innego jak zmiana w projekcie. Istnieje możliwość wprowadzenia takich zmian, we własnym zakresie (podczas adaptacji). *zwężenie/poszerzenie budynku nie powinno stanowić problemu w przypadku domów o dachu dwuspadowym jeśli wiąże się to z wydłużeniem/skróceniem kalenicy dachu.
Poznaj praktyczne porady ekspertów, które ułatwią Ci każdy etap budowy i od wyboru wymarzonego domu po jego wykończenie. Zyskaj pewność, że podejmujesz najlepsze decyzje dzięki sprawdzonym wskazówkom od specjalistów z planz.pl
Wycena szacunkowa, w kwotach netto, nie zawiera instalacji.
bezpłatnie (0zł)
przelew zwykły / PayNow
przy odbiorze
2-5 dni roboczych (jeśli projekt nie jest koncepcją)
Wybierz wygodny dla Ciebie czas kontaktu z naszym Doradcą Technicznym.