Promyczek



Wypełnij formularz i otrzymaj rysunki w pdf z dokładnymi wymiarami budynku i pomieszczeń (długość, szerokość, wysokość) dla projektu Calma plus
Pow. użytkowa 108.89 m² |
Ilość pokoi 4 |
Powierzchnia zabudowy 145.79 m² |
Kondygnacje parterowy |
Garaż bez garażu |
Technologia murowany |
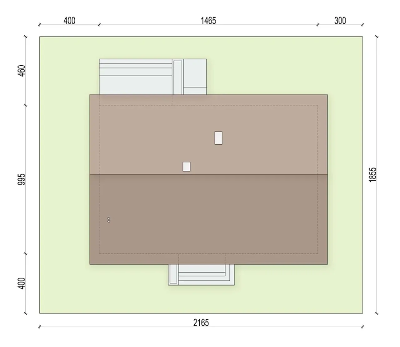
Szerokość działki 21.65 m |
Obiekt dom |
Typ domu jednorodzinny całoroczny |
Styl budynku nowoczesny |
Liczba łazieniek 1 |
Szerokość budynku 14.65 m |
Kominek kominek w projekcie |
Kąt nachylenia dachu 35 ° |
Długość budynku 9.95 m |
Rodzaj dachu dwuspadowy |
Piwnica bez podpiwniczenia |
Kubatura 864.25 m³ |
Powierzchnia dachu 221 m² |
Długość działki 18.55 m |
Wysokość budynku 7.65 m |
Kalenica równoległa do drogi |
Koszty budowy tylko z kosztorysem, 250-300 tys. |
Pow. użytkowa 108.89 m² |
Powierzchnia zabudowy 145.79 m² |
Garaż bez garażu |
Szerokość działki 21.65 m |
Typ domu jednorodzinny całoroczny |
Liczba łazieniek 1 |
Kominek kominek w projekcie |
Długość budynku 9.95 m |
Piwnica bez podpiwniczenia |
Powierzchnia dachu 221 m² |
Wysokość budynku 7.65 m |
Koszty budowy tylko z kosztorysem, 250-300 tys. |
Ilość pokoi 4 |
Kondygnacje parterowy |
Technologia murowany |
Obiekt dom |
Styl budynku nowoczesny |
Szerokość budynku 14.65 m |
Kąt nachylenia dachu 35 ° |
Rodzaj dachu dwuspadowy |
Kubatura 864.25 m³ |
Długość działki 18.55 m |
Kalenica równoległa do drogi |
Szukasz funkcjonalnego projektu domu, który wyróżnia się nowoczesną bryłą i sprawdzonymi technologiami budowy? Projekt Calma Plus to propozycja dla osób ceniących wygodę, praktyczne rozwiązania i szukających domu na lata. Otwarta przestrzeń, czteropokojowy układ i wydajne rozwiązania architektoniczne sprawiają, że dom ten doskonale spełni wymagania rodzin szukających kompromisu między wygodą a nowoczesnym stylem.
Zaprojektowany z myślą o codziennym komforcie i efektywnym wykorzystaniu przestrzeni, dom Calma Plus pozwala cieszyć się wygodą parterowego domu o oryginalnym kształcie, z kominkiem, który tworzy niepowtarzalny klimat w sercu domu.
Calma Plus to projekt domu jednorodzinnego całorocznego, zaprojektowany specjalnie dla rodzin, które poszukują wygodnego i praktycznego miejsca do życia. Parterowy układ z czterema pokojami umożliwia elastyczne dopasowanie przestrzeni do własnych potrzeb - znajdzie się miejsce zarówno na przytulną sypialnię, jak i domowe biuro czy pokój dla dzieci. Brak schodów i podpiwniczenia sprawia, że dom jest bezpieczny oraz niezwykle przyjazny dla wszystkich mieszkańców, w każdym wieku.
Dwuspadowy dach o łagodnym spadku, położony równolegle do drogi, idealnie wpisuje się w aktualne trendy architektoniczne i ułatwia lokalizację domu na większości działek. Trwałe żelbetowe fundamenty oraz ściany z pustaków ceramicznych gwarantują ciszę, stabilność i odporność na zmiany pogody. Obecność kominka w projekcie pozwala na stworzenie wyjątkowej, klimatycznej strefy wypoczynku, a nowoczesna forma budynku świetnie prezentuje się w otoczeniu zieleni.
Zamów projekt domu Calma Plus i zbuduj solidny, wygodny dom jednorodzinny - wybierz architekturę, która spełni Twoje oczekiwania w codziennym życiu!
Kupując projekt w technologii murowanej powinieneś budować dom murowany. Zupełna zmiana technologii na szkieletową wymaga przeprojektowania całego budynku ( zmieniają się obciążenia, fundamenty, konstrukcja dachu). Wydamy zgodę na takie przeprojektowanie jednak wiążę się to z dużymi kosztami. Istnieją firmy wykonawcze, które podejmują się zmiany technologii budowy bezpłatnie przy skorzystaniu z ich usług wykonawczych. Zdarza się, że pracownia architektoniczna przygotowuje warianty konkretnego projektu przewidując także inne technologie. Prosimy o sprawdzenie czy istnieje poszukiwana wersja projektu, w zakładce - warianty projektu.
Zwężenie/poszerzenie budynku* to nic innego jak zmiana w projekcie. Istnieje możliwość wprowadzenia takich zmian, we własnym zakresie (podczas adaptacji). *zwężenie/poszerzenie budynku nie powinno stanowić problemu w przypadku domów o dachu dwuspadowym jeśli wiąże się to z wydłużeniem/skróceniem kalenicy dachu.
Poznaj praktyczne porady ekspertów, które ułatwią Ci każdy etap budowy i od wyboru wymarzonego domu po jego wykończenie. Zyskaj pewność, że podejmujesz najlepsze decyzje dzięki sprawdzonym wskazówkom od specjalistów z planz.pl
Wycena szacunkowa, w kwotach netto, nie zawiera instalacji.
bezpłatnie (0zł)
przelew zwykły / PayNow
przy odbiorze
3-5 dni roboczych (jeśli projekt nie wymaga aktualizacji)
Wybierz wygodny dla Ciebie czas kontaktu z naszym Doradcą Technicznym.