L-30 murowany



Wypełnij formularz i otrzymaj rysunki w pdf z dokładnymi wymiarami budynku i pomieszczeń (długość, szerokość, wysokość) dla projektu Calma
Pow. użytkowa 100 m² |
Ilość pokoi 4 |
Powierzchnia zabudowy 135.53 m² |
Kondygnacje parterowy |
Garaż bez garażu |
Technologia murowany |
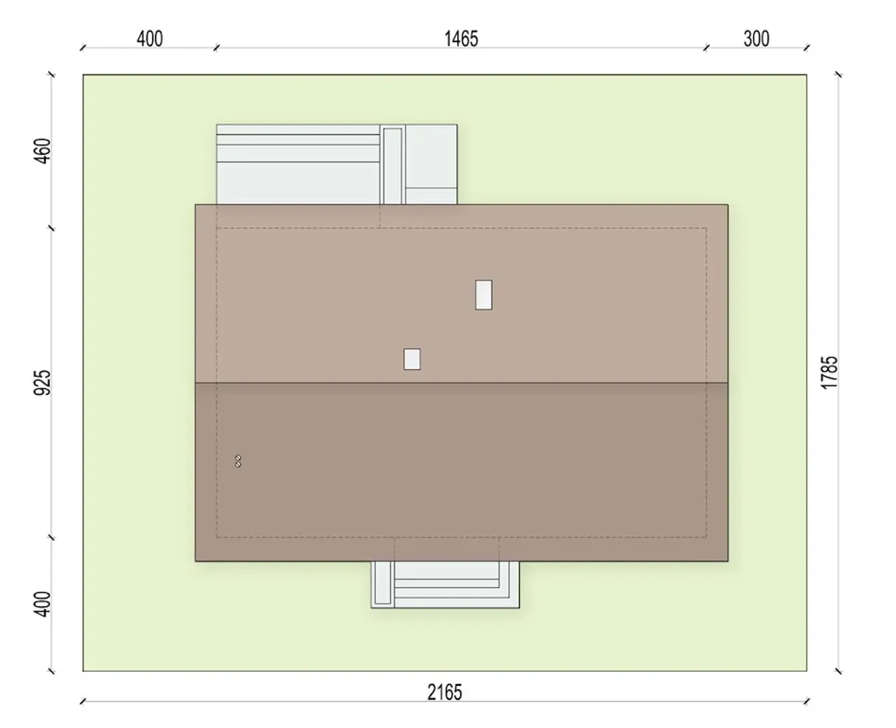
Szerokość działki 21.65 m |
Obiekt dom |
Typ domu jednorodzinny całoroczny |
Wysokość budynku 7.41 m |
Kalenica równoległa do drogi |
Styl budynku nowoczesny |
Liczba łazieniek 1 |
Szerokość budynku 14.65 m |
Kominek kominek w projekcie |
Kąt nachylenia dachu 35 ° |
Długość budynku 9.25 m |
Rodzaj dachu dwuspadowy |
Piwnica bez podpiwniczenia |
Kubatura 789.83 m³ |
Powierzchnia dachu 208 m² |
Długość działki 17.85 m |
Koszty budowy tylko z kosztorysem, 250-300 tys. |
Pow. użytkowa 100 m² |
Powierzchnia zabudowy 135.53 m² |
Garaż bez garażu |
Szerokość działki 21.65 m |
Typ domu jednorodzinny całoroczny |
Kalenica równoległa do drogi |
Liczba łazieniek 1 |
Kominek kominek w projekcie |
Długość budynku 9.25 m |
Piwnica bez podpiwniczenia |
Powierzchnia dachu 208 m² |
Koszty budowy tylko z kosztorysem, 250-300 tys. |
Ilość pokoi 4 |
Kondygnacje parterowy |
Technologia murowany |
Obiekt dom |
Wysokość budynku 7.41 m |
Styl budynku nowoczesny |
Szerokość budynku 14.65 m |
Kąt nachylenia dachu 35 ° |
Rodzaj dachu dwuspadowy |
Kubatura 789.83 m³ |
Długość działki 17.85 m |
Odkryj projekt nowoczesnego domu parterowego Calma - idealne rozwiązanie dla rodzin poszukujących funkcjonalności i stylowego designu. Przemyślany układ 4 jasnych pokoi oraz praktyczne rozwiązania konstrukcyjne sprawią, że codzienne życie stanie się przyjemnością.
Zainwestuj w projekt domu, który łączy nowoczesną bryłę z tradycyjną technologią murowaną. Dom Calma spełni wymogi klientów oczekujących solidności, energooszczędności oraz przytulnej atmosfery.
Dom Calma jest propozycją dla tych, którzy szukają równowagi między sprawdzonymi rozwiązaniami a aktualnymi trendami w architekturze. Nowoczesny, dwuspadowy dach i minimalistyczne elewacje wyróżniają budynek na tle klasycznych domów jednorodzinnych. Konstrukcja oparta o ściany z pustaków ceramicznych i żelbetowe fundamenty decyduje o wysokiej wytrzymałości oraz odporności na działanie czynników atmosferycznych.
Wnętrze urzeka czytelnym podziałem na strefę wspólną i prywatną, oferując wygodę wszystkim domownikom. Projekt kominka w salonie nadaje wnętrzu wyjątkowej atmosfery i sprzyja relaksowi w gronie bliskich. Brak garażu oraz podpiwniczenia pozwala dodatkowo zagospodarować otoczenie budynku, na przykład pod przestronny ogród lub nowoczesny taras ogrodowy.
Nie odkładaj podjęcia decyzji - zamów projekt domu Calma i rozpocznij swoją budowlaną przygodę z pewnością oraz spokojem!
Kupując projekt w technologii murowanej powinieneś budować dom murowany. Zupełna zmiana technologii na szkieletową wymaga przeprojektowania całego budynku ( zmieniają się obciążenia, fundamenty, konstrukcja dachu). Wydamy zgodę na takie przeprojektowanie jednak wiążę się to z dużymi kosztami. Istnieją firmy wykonawcze, które podejmują się zmiany technologii budowy bezpłatnie przy skorzystaniu z ich usług wykonawczych. Zdarza się, że pracownia architektoniczna przygotowuje warianty konkretnego projektu przewidując także inne technologie. Prosimy o sprawdzenie czy istnieje poszukiwana wersja projektu, w zakładce - warianty projektu.
Zwężenie/poszerzenie budynku* to nic innego jak zmiana w projekcie. Istnieje możliwość wprowadzenia takich zmian, we własnym zakresie (podczas adaptacji). *zwężenie/poszerzenie budynku nie powinno stanowić problemu w przypadku domów o dachu dwuspadowym jeśli wiąże się to z wydłużeniem/skróceniem kalenicy dachu.
Poznaj praktyczne porady ekspertów, które ułatwią Ci każdy etap budowy i od wyboru wymarzonego domu po jego wykończenie. Zyskaj pewność, że podejmujesz najlepsze decyzje dzięki sprawdzonym wskazówkom od specjalistów z planz.pl
Wycena szacunkowa, w kwotach netto, nie zawiera instalacji.
bezpłatnie (0zł)
przelew zwykły / PayNow
przy odbiorze
3-5 dni roboczych (jeśli projekt nie wymaga aktualizacji)
Wybierz wygodny dla Ciebie czas kontaktu z naszym Doradcą Technicznym.