APS 268



1. Wiatrołap | 4,90 m² |
2. Kuchnia | 10,60 m² |
3. Garderoba | 2,90 m² |
4. Pokój dzienny z jadalnią | 51,20 m² |
5. Schody | 4,50 m² |
6. Pokój | 14,60 m² |
7. Garderoba | 5,10 m² |
8. łazienka | 3,70 m² |
9. Garaż | 34,80 m² |
10. Kotłownia | 7,50 m² |
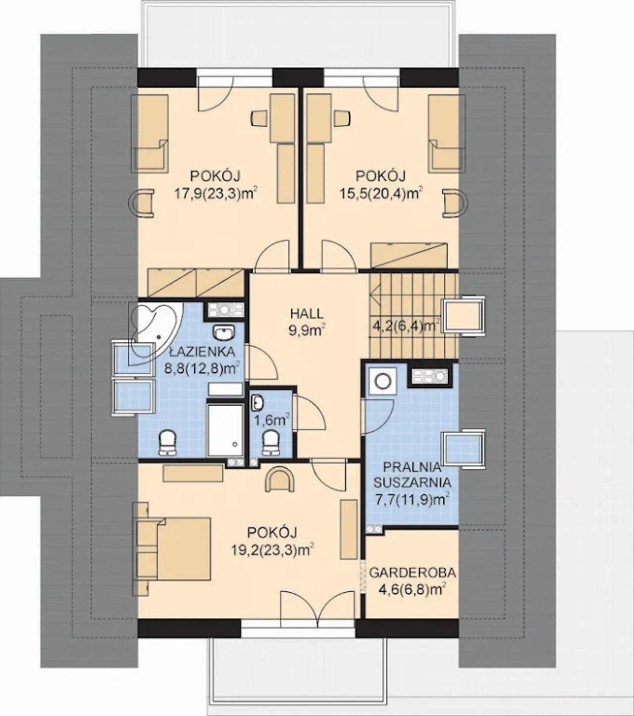
1. Korytarz | 9,30 m² |
2. Pralnia | 4,20 (6,60) m² |
3. Pokój | 14,00 (17,90) m² |
4. Garderoba | 4,10 (6,20) m² |
5. łazienka | 9,10 (12,60) m² |
6. łazienka | 3,50 (5,20) m² |
7. Pokoj | 15,50 (20,40) m² |
8. Schody | 4,70 (7,10) m² |
9. Pokój | 19,50 (23,80) m² |
10. Schody | 4,70 (7,10) m² |
Wypełnij formularz i otrzymaj rysunki w pdf z dokładnymi wymiarami budynku i pomieszczeń (długość, szerokość, wysokość) dla projektu APS 268 wariant 2
Ilość pokoi 5 |
Pow. użytkowa 193.6 m² |
Powierzchnia zabudowy 187.9 m² |
Kondygnacje parterowy+poddasze |
Garaż 2 stanowiska |
Technologia murowany |
Szerokość działki 22.46 m |
Obiekt dom |
Typ domu jednorodzinny całoroczny |
Powierzchnia dachu 226.3 m² |
Kalenica prostopadła do drogi |
Długość działki 23.34 m |
Styl budynku nowoczesny |
Wysokość budynku 8.63 m |
Liczba łazieniek 3 |
Kąt nachylenia dachu 36 ° |
Szerokość budynku 14.46 m |
Rodzaj dachu dwuspadowy |
Taras z tarasem |
Długość budynku 15.34 m |
Piwnica bez podpiwniczenia |
Kubatura 462.8 m³ |
Koszty budowy 450-500 tys., tylko z kosztorysem |
Ilość pokoi 5 |
Powierzchnia zabudowy 187.9 m² |
Garaż 2 stanowiska |
Szerokość działki 22.46 m |
Typ domu jednorodzinny całoroczny |
Kalenica prostopadła do drogi |
Styl budynku nowoczesny |
Liczba łazieniek 3 |
Szerokość budynku 14.46 m |
Taras z tarasem |
Piwnica bez podpiwniczenia |
Koszty budowy 450-500 tys., tylko z kosztorysem |
Pow. użytkowa 193.6 m² |
Kondygnacje parterowy+poddasze |
Technologia murowany |
Obiekt dom |
Powierzchnia dachu 226.3 m² |
Długość działki 23.34 m |
Wysokość budynku 8.63 m |
Kąt nachylenia dachu 36 ° |
Rodzaj dachu dwuspadowy |
Długość budynku 15.34 m |
Kubatura 462.8 m³ |
Kupując projekt w technologii murowanej powinieneś budować dom murowany. Zupełna zmiana technologii na szkieletową wymaga przeprojektowania całego budynku ( zmieniają się obciążenia, fundamenty, konstrukcja dachu). Wydamy zgodę na takie przeprojektowanie jednak wiążę się to z dużymi kosztami. Istnieją firmy wykonawcze, które podejmują się zmiany technologii budowy bezpłatnie przy skorzystaniu z ich usług wykonawczych. Zdarza się, że pracownia architektoniczna przygotowuje warianty konkretnego projektu przewidując także inne technologie. Prosimy o sprawdzenie czy istnieje poszukiwana wersja projektu, w zakładce - warianty projektu.
Zwężenie/poszerzenie budynku* to nic innego jak zmiana w projekcie. Istnieje możliwość wprowadzenia takich zmian, we własnym zakresie (podczas adaptacji). *zwężenie/poszerzenie budynku nie powinno stanowić problemu w przypadku domów o dachu dwuspadowym jeśli wiąże się to z wydłużeniem/skróceniem kalenicy dachu.
Poznaj praktyczne porady ekspertów, które ułatwią Ci każdy etap budowy i od wyboru wymarzonego domu po jego wykończenie. Zyskaj pewność, że podejmujesz najlepsze decyzje dzięki sprawdzonym wskazówkom od specjalistów z planz.pl
Wycena szacunkowa, w kwotach netto, nie zawiera instalacji.
bezpłatnie (0zł)
przelew zwykły / PayNow
przy odbiorze
3-5 dni roboczych
Wybierz wygodny dla Ciebie czas kontaktu z naszym Doradcą Technicznym.