Ajaks



Zawartość projektu
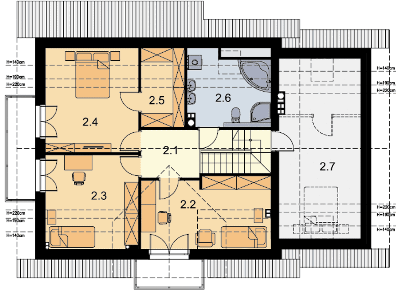
1. Wiatrołap | 2,90 m² |
2. Hol + komunikacja | 9,00 m² |
3. Spiżarnia | 1,48 m² |
4. Kuchnia | 10,00 m² |
5. Salon + jadalnia | 31,90 m² |
6. Pokój / gabinet | 12,15 m² |
7. łazienka | 3,20 m² |
8. Pom. gospodarcze / garderoba | 4,10 m² |
9. Kotłownia | 7,20 m² |
10. Garaż | 19,80 m² |
Wypełnij formularz i otrzymaj rysunki w pdf z dokładnymi wymiarami budynku i pomieszczeń (długość, szerokość, wysokość) dla projektu Ajaks Max
Ilość pokoi 5 |
Pow. użytkowa 138.61 m² |
Powierzchnia zabudowy 137.14 m² |
Kondygnacje parterowy+poddasze |
Garaż 1 stanowisko |
Technologia murowany |
Szerokość działki 21.59 m |
Obiekt dom |
Typ domu jednorodzinny całoroczny |
Kubatura 867.86 m³ |
Strop żelbetowy |
Powierzchnia dachu 257.73 m² |
Funkcje dodatkowe ze strychem |
Rodzaj garażu przyklejony |
Długość działki 18.54 m |
Ogrzewanie gaz, paliwo stałe |
Kalenica równoległa do drogi |
Liczba łazieniek 2 |
Wysokość budynku 8.6 m |
Rodzaj dachu dwuspadowy |
Kominek kominek w projekcie |
Przechowywanie w kuchni spiżarnia |
Bryła budynku prosta bryła |
Kotłownia duża kotłownia |
Szerokość budynku 14.59 m |
Styl budynku nowoczesny |
Taras z tarasem |
Kąt nachylenia dachu 40 ° |
Długość budynku 9.64 m |
Piwnica bez podpiwniczenia |
Koszty budowy 300-350 tys., tylko z kosztorysem |
Ilość pokoi 5 |
Powierzchnia zabudowy 137.14 m² |
Garaż 1 stanowisko |
Szerokość działki 21.59 m |
Typ domu jednorodzinny całoroczny |
Strop żelbetowy |
Funkcje dodatkowe ze strychem |
Długość działki 18.54 m |
Kalenica równoległa do drogi |
Wysokość budynku 8.6 m |
Kominek kominek w projekcie |
Bryła budynku prosta bryła |
Szerokość budynku 14.59 m |
Taras z tarasem |
Długość budynku 9.64 m |
Koszty budowy 300-350 tys., tylko z kosztorysem |
Pow. użytkowa 138.61 m² |
Kondygnacje parterowy+poddasze |
Technologia murowany |
Obiekt dom |
Kubatura 867.86 m³ |
Powierzchnia dachu 257.73 m² |
Rodzaj garażu przyklejony |
Ogrzewanie gaz, paliwo stałe |
Liczba łazieniek 2 |
Rodzaj dachu dwuspadowy |
Przechowywanie w kuchni spiżarnia |
Kotłownia duża kotłownia |
Styl budynku nowoczesny |
Kąt nachylenia dachu 40 ° |
Piwnica bez podpiwniczenia |
Kupując projekt w technologii murowanej powinieneś budować dom murowany. Zupełna zmiana technologii na szkieletową wymaga przeprojektowania całego budynku ( zmieniają się obciążenia, fundamenty, konstrukcja dachu). Wydamy zgodę na takie przeprojektowanie jednak wiążę się to z dużymi kosztami. Istnieją firmy wykonawcze, które podejmują się zmiany technologii budowy bezpłatnie przy skorzystaniu z ich usług wykonawczych. Zdarza się, że pracownia architektoniczna przygotowuje warianty konkretnego projektu przewidując także inne technologie. Prosimy o sprawdzenie czy istnieje poszukiwana wersja projektu, w zakładce - warianty projektu.
Zwężenie/poszerzenie budynku* to nic innego jak zmiana w projekcie. Istnieje możliwość wprowadzenia takich zmian, we własnym zakresie (podczas adaptacji). *zwężenie/poszerzenie budynku nie powinno stanowić problemu w przypadku domów o dachu dwuspadowym jeśli wiąże się to z wydłużeniem/skróceniem kalenicy dachu.
Poznaj praktyczne porady ekspertów, które ułatwią Ci każdy etap budowy i od wyboru wymarzonego domu po jego wykończenie. Zyskaj pewność, że podejmujesz najlepsze decyzje dzięki sprawdzonym wskazówkom od specjalistów z planz.pl
Wycena szacunkowa, w kwotach netto, nie zawiera instalacji.
bezpłatnie (0zł)
przelew zwykły / PayNow
przy odbiorze
1-2 dni roboczych (jeśli projekt nie jest koncepcją)
Ciekawy projekt, łączący nowoczesność z funkcjonalnością. Widać, że koncepcja została dobrze przemyślana.
Wybierz wygodny dla Ciebie czas kontaktu z naszym Doradcą Technicznym.