Pow. użytkowa:
131 m²
Kondygnacje:
piętrowy
Technologia:
murowany
Szerokość działki:
11.3 m
Nachylenie dachu:
25 °
Gotowy projekt domu Iryda Duo (1878)
cena brutto
-
Promocja do 31.03.2024 ➞ sprawdź zasady✓ GRATIS: Wiertarka
✓ GRATIS: 16 projektów (drewutni, altany i wiaty)✓ GRATIS: tablica i dziennik budowy✓ GRATIS: przesyłka kurierska
- Co zawiera projekt: ✓ 3 x projekt architektoniczno-budowlany ➞ szczegóły ✓ 3 x projekt techniczny ➞ szczegóły ✓ charakterystyka energetyczna (do projektów domów) ✓ zgoda na zmiany w projekcie ➞ szczegóły
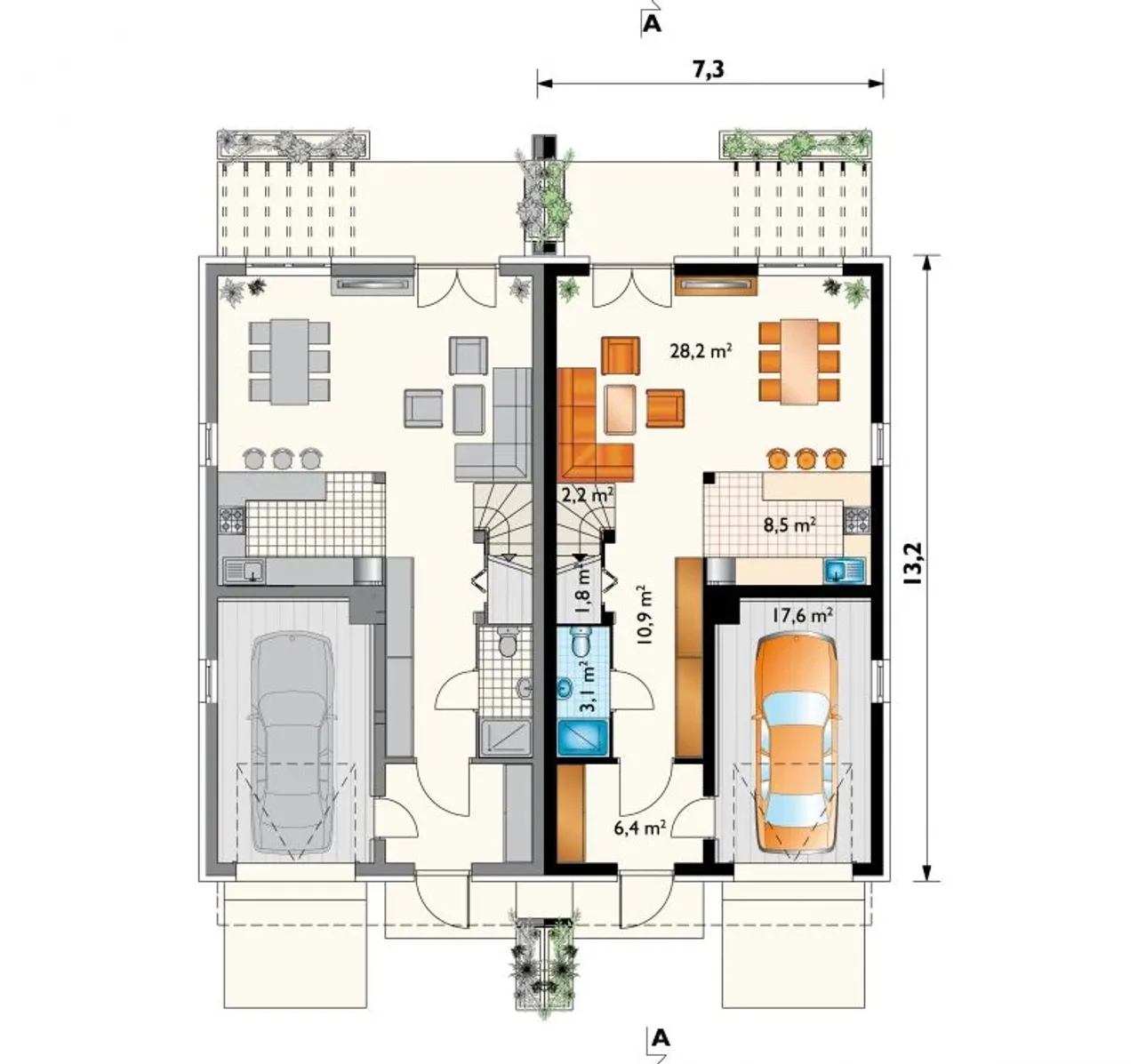
Rzuty gotowego projektu domu Iryda Duo (1878)
| 1. Garaż | 17,60 m² |
| 2. Hol | 11,00 m² |
| 3. Klatka schodowa | 2,20 m² |
| 4. Kuchnia | 8,50 m² |
| 5. Pokój dzienny | 28,20 m² |
| 6. Schowek | 1,80 m² |
| 7. Sień | 6,70 m² |
| 8. Toaleta | 3,10 m² |
| 1. Klatka schodowa | 2,20 m² |
| 2. łazienka | 6,40 m² |
| 3. Pokój | 18,50 m² |
| 4. Pokój | 13,10 m² |
| 5. Pokój | 16,10 m² |
| 6. Pokój | 12,20 m² |
| 7. Przedpokój | 8,70 m² |
| 1. Strych | 50,20 m² |
Zamów BEZPŁATNE rysunki szczegółowe
Czym są rysunki szczegółowe? do projektu Iryda Duo (1878)
Wypełnij formularz i otrzymaj rysunki w pdf z dokładnymi wymiarami budynku i pomieszczeń (długość, szerokość, wysokość)
Opis projektu Iryda Duo (1878)
Technologia i konstrukcja: murowana – ceramika.; Ściany zewnętrzne: dwuwarstwowe z pustaków ceramicznych typu np. Thermopor 25+W gr. 25 cm f. LEIER + docieplenie płyty styropianowe gr. 15 cm.; Ściany wewnętrzne: konstrukcyjne: z pustaków ceramicznych typu U gr. 25 cm działowe: z cegły kratówki gr. 12 cm.; Strop: żelbetowy.; Konstrukcja dachu: drewniana, płatwiowo - krokwiowa.; Rodzaj schodów: żelbetowe.; Typ ogrzewania: kocioł na gaz.; Wykończenie: Pokrycie dachu: dachówka cementowa BRASS.; Elewacja: tynk cienkowarstwowy + deska elewacyjna.Parametry Techniczne gotowego projektu domu Iryda Duo (1878)
| Pow. użytkowa 131 m² |
| Powierzchnia zabudowy 96.4 m² |
| Kondygnacje piętrowy |
| Garaż 1 stanowisko |
| Ilość pokoi 5 |
| Szerokość działki 11.3 m |
| Obiekt dom |
| Powierzchnia dachu 105.4 m² |
| Rodzaj dachu dwuspadowy |
| Długość działki 21.2 m |
| Bryła budynku prosta bryła |
| Styl budynku nowoczesny |
| Liczba łazieniek 2 |
| Strop żelbetowy |
| Szerokość budynku 7.3 m |
| Kąt nachylenia dachu 25 ° |
| Kominek kominek opcjonalnie |
| Technologia murowany |
| Typ domu bliźniak i dwurodzinny |
| Wysokość budynku 10 m |
| Kalenica równoległa do drogi |
| Długość budynku 13.2 m |
| Piwnica bez podpiwniczenia |
| Funkcje dodatkowe ze strychem |
| Kubatura 775 m³ |
| Rodzaj garażu w bryle |
| Koszty budowy 300-350 tys., tylko z kosztorysem |
Zmiany w projekcie Iryda Duo (1878)

Do zakupionej u nas dokumentacji dołączamy automatycznie zgodę na następujące zmiany:
- Rozmieszczenie ścian działowych.
- Zmiany funkcji pomieszczeń.
- Modyfikacje wielkości, ilości i kształtu otworów okiennych i drzwiowych.
- Użycie innych materiałów na elementy konstrukcyjne budynku (ściany, stropy) przy zachowaniu wymagań konstrukcji, parametrów cieplnych budynku i elewacji.
- Wprowadzenie częściowego lub całkowitego podpiwniczenia budynku.
- Zmiana kąta nachylenia, kształtu i konstrukcji dachu.
- Zmiana sposobu ogrzewania i prowadzenia instalacji CO, zmiany instalacji wodno-kanalizacyjnej, gazowej, oraz elektrycznej (zachowując obowiązujące normy, zgodnie z prawem budowlanym).
- Zmiana materiałów wykończeniowych: posadzek, tynków, dachówki, izolacji cieplnej i przeciwwilgociowej (przy zachowaniu niezbędnych parametrów wytrzymałości oraz parametrów przenikania ciepła).
- Zmiany wynikające z dostosowania budynku do warunków gruntowych.
- Zmiany wymiarów fundamentów.
- Zmiany wymiarów przekrojów lub rozstawu elementów więźby dachowej wynikające z dostosowania budynku do strefy śniegowej lub wiatrowej.
- Zmiany szerokości schodów, liczby stopni i wymiarów schodów wewnętrznych oraz zewnętrznych.
- Zmiany pokrycia dachowego (uwzględniając istniejące spadki i ciężar).
- Zmiany kształtu, wielkości, usytuowania elementów takich jak tarasy, wiaty, murki.
- Zmiany wysokości ścianki kolankowej.
- Zmiany usytuowania i ilości kominów.
- Dobudowanie lub usunięcie garażu lub wiaty garażowej.
- Dobudowanie lub usunięcie lukarn.
- Dobudowanie lub usunięcie balkonów.
- Dobudowanie lub usunięcie wykuszy.
- Zabudowanie podcienia.
Zmian w projekcie dokonuje projektant adaptujący. Na podstawie opisanej zgody projektant jest uprawniony do nanoszenia zmian na oryginalnej dokumentacji technicznej w sposób trwały kolorem czerwonym. W przypadku projektów, do których sprzedajemy również wersje elektroniczne - możliwe jest naniesie zmian w formie aneksu podpisanego przez projektanta z uprawnieniami.
Prawa autorskie:
Jeśli planujecie Państwo dokonać zmian, które wykraczają po za te opisane i wyszczególnione wyżej - prosimy o poinormowanie nas o tym podczas składania zamówienia - telefonicznie lub opisać zakres zmian w polu KOMENTARZ w formularzu zamówienia. Również po zakupie jest możliwość uzyskania pisemnej zgody na zmiany od autora projektu, jednak najlepszym rozwiązaniem jest skonsultowanie możliwości ich naniesienia jeszcze przed zakupem. Autor może nie wyrazić zgody na ingerencję w jego autorskie dzieło, w przypadkach skrajnych, kiedy zupełnie zmieniłaby się bryła budynku.
Więcej informacji oraz kontakt z naszym architektem adaptującym:
Kosztorys dla projektu Iryda Duo (1878)
| Stan surowy zamknięty | 259000 zł |
| Razem | 344000 zł |
Stan deweloperski
Wersje gotowego projektu domu Iryda Duo (1878)
Dodatki do projektów kupionych w planz.pl
Ze względu na stale zmieniającą się ofertę dodatków, prosimy o mailowe zapytanie o cenę i dostępność dodatku..
Wysyłka i płatność za projekt Iryda Duo (1878)
Koszty wysyłki
bezpłatnie (0zł)
Formy płatności
przelew zwykły / PayNow
przy odbiorze
Czas oczekiwania
2-5 dni roboczych (jeśli projekt nie wymaga aktualizacji)
Projekt w kategoriach
Zamów rozmowę
Wybierz wygodny dla Ciebie czas kontaktu z naszym Doradcą Technicznym.