Bryza



1. Wiatrołap | 4,10 m² |
2. Hol | 11,14 m² |
3. Kuchnia | 10,13 m² |
4. Salon + jadalnia | 34,76 m² |
5. Pokój | 11,31 m² |
6. łazienka | 4,51 m² |
7. Pralnia/kotłownia | 6,92 m² |
8. Garaż | 34,55 m² |
9. Pom.gospodarcze | 9,29 m² |
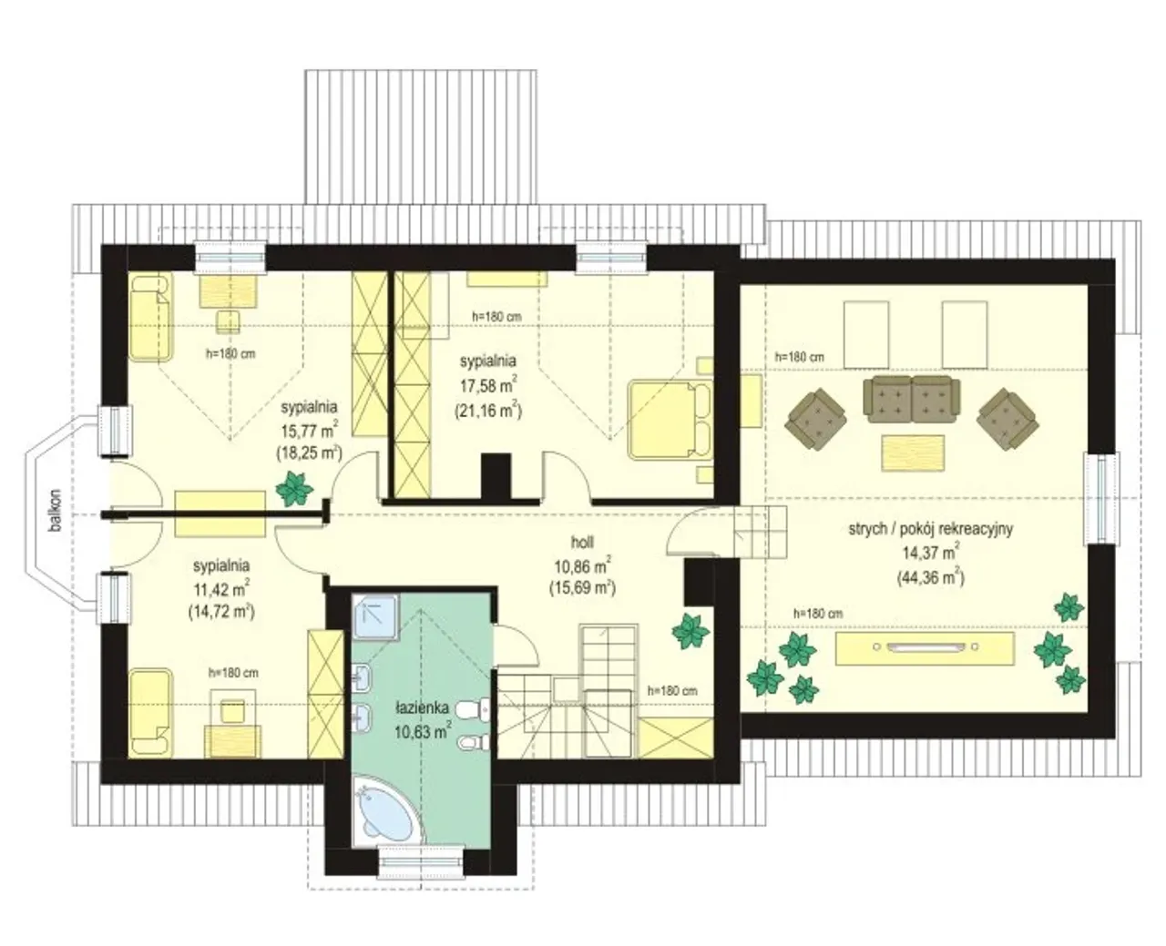
1. Hol | 10,86 (15,69) m² |
2. Sypialnia | 11,42 (14,72) m² |
3. Sypialnia | 15,77 (18,25) m² |
4. Sypialnia | 17,58 (21,16) m² |
5. łazienka | 10,63 m² |
6. Strych / pokój rekreacyjny | 14,37 (44,36) m² |
Wypełnij formularz i otrzymaj rysunki w pdf z dokładnymi wymiarami budynku i pomieszczeń (długość, szerokość, wysokość) dla projektu Zgrabny 5
Pow. użytkowa 142.2 m² |
Ilość pokoi 5 |
Kondygnacje parterowy+poddasze |
Garaż 2 stanowiska |
Technologia murowany |
Szerokość działki 26.75 m |
Obiekt dom |
Typ domu jednorodzinny całoroczny |
Powierzchnia dachu 262 m² |
Rodzaj dachu dwuspadowy |
Wysokość budynku 7.87 m |
Długość działki 18.83 m |
Bryła budynku prosta bryła |
Liczba łazieniek 2 |
Styl budynku tradycyjny |
Kominek kominek w projekcie |
Strop gęstożebrowy |
Szerokość budynku 18.75 m |
Kotłownia duża kotłownia |
Kąt nachylenia dachu 38 ° |
Kalenica równoległa do drogi |
Długość budynku 10.01 m |
Taras z tarasem |
Funkcje dodatkowe ze strychem |
Kubatura 811 m³ |
Rodzaj garażu przyklejony |
Piwnica bez podpiwniczenia |
Koszty budowy 400-450 tys., tylko z kosztorysem |
Pow. użytkowa 142.2 m² |
Kondygnacje parterowy+poddasze |
Technologia murowany |
Obiekt dom |
Powierzchnia dachu 262 m² |
Wysokość budynku 7.87 m |
Bryła budynku prosta bryła |
Styl budynku tradycyjny |
Strop gęstożebrowy |
Kotłownia duża kotłownia |
Kalenica równoległa do drogi |
Taras z tarasem |
Kubatura 811 m³ |
Piwnica bez podpiwniczenia |
Ilość pokoi 5 |
Garaż 2 stanowiska |
Szerokość działki 26.75 m |
Typ domu jednorodzinny całoroczny |
Rodzaj dachu dwuspadowy |
Długość działki 18.83 m |
Liczba łazieniek 2 |
Kominek kominek w projekcie |
Szerokość budynku 18.75 m |
Kąt nachylenia dachu 38 ° |
Długość budynku 10.01 m |
Funkcje dodatkowe ze strychem |
Rodzaj garażu przyklejony |
Koszty budowy 400-450 tys., tylko z kosztorysem |
Kupując projekt w technologii murowanej powinieneś budować dom murowany. Zupełna zmiana technologii na szkieletową wymaga przeprojektowania całego budynku ( zmieniają się obciążenia, fundamenty, konstrukcja dachu). Wydamy zgodę na takie przeprojektowanie jednak wiążę się to z dużymi kosztami. Istnieją firmy wykonawcze, które podejmują się zmiany technologii budowy bezpłatnie przy skorzystaniu z ich usług wykonawczych. Zdarza się, że pracownia architektoniczna przygotowuje warianty konkretnego projektu przewidując także inne technologie. Prosimy o sprawdzenie czy istnieje poszukiwana wersja projektu, w zakładce - warianty projektu.
Zwężenie/poszerzenie budynku* to nic innego jak zmiana w projekcie. Istnieje możliwość wprowadzenia takich zmian, we własnym zakresie (podczas adaptacji). *zwężenie/poszerzenie budynku nie powinno stanowić problemu w przypadku domów o dachu dwuspadowym jeśli wiąże się to z wydłużeniem/skróceniem kalenicy dachu.
Poznaj praktyczne porady ekspertów, które ułatwią Ci każdy etap budowy i od wyboru wymarzonego domu po jego wykończenie. Zyskaj pewność, że podejmujesz najlepsze decyzje dzięki sprawdzonym wskazówkom od specjalistów z planz.pl
Wycena szacunkowa, w kwotach netto, nie zawiera instalacji.
bezpłatnie (0zł)
przelew zwykły / PayNow
przy odbiorze
3-10 dni roboczych
Wybierz wygodny dla Ciebie czas kontaktu z naszym Doradcą Technicznym.