Wymarzony



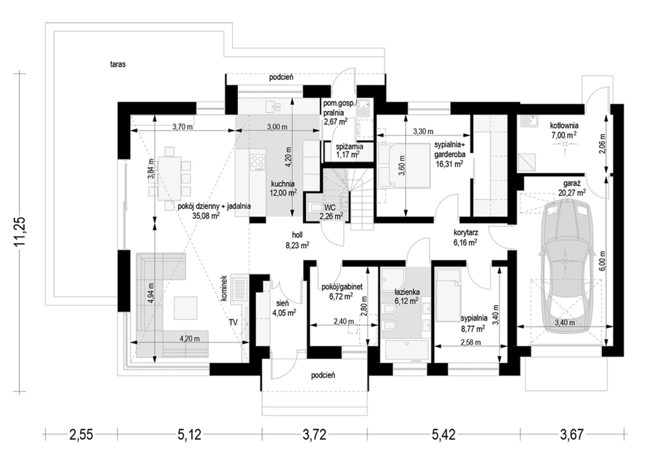
1. Sień | 4,05 m² |
2. Holl | 8,23 m² |
3. Pokój dzienny + jadalnia | 35,08 m² |
4. Kuchnia | 12,00 m² |
5. Spiżarnia | 1,17 m² |
6. Pom. gospodarcze / pralnia | 2,67 m² |
7. Wc | 2,26 m² |
8. Sypialnia + garderoba | 16,31 m² |
9. Korytarz | 6,16 m² |
10. Sypialnia | 8,77 m² |
11. łazienka | 6,12 m² |
12. Pokój / gabinet | 6,72 m² |
13. Kotłownia | 7,00 m² |
14. Garaż | 20,27 m² |
Wypełnij formularz i otrzymaj rysunki w pdf z dokładnymi wymiarami budynku i pomieszczeń (długość, szerokość, wysokość) dla projektu Wymarzony 9 wariant B
Ilość pokoi 4 |
Pow. użytkowa 109.54 m² |
Kondygnacje parterowy |
Garaż 1 stanowisko |
Technologia murowany |
Szerokość działki 24.93 m |
Obiekt dom |
Typ domu jednorodzinny całoroczny |
Szerokość budynku 17.93 m |
Kominek kominek w projekcie |
Kąt nachylenia dachu 35 ° |
Długość budynku 11.25 m |
Kotłownia duża kotłownia |
Strop żelbetowy |
Kubatura 899 m³ |
Rodzaj garażu przyklejony |
Piwnica bez podpiwniczenia |
Kalenica równoległa do drogi |
Powierzchnia dachu 211.51 m² |
Rodzaj dachu dwuspadowy |
Wysokość budynku 7.02 m |
Przechowywanie w kuchni spiżarnia |
Długość działki 19.25 m |
Bryła budynku prosta bryła |
Styl budynku nowoczesny |
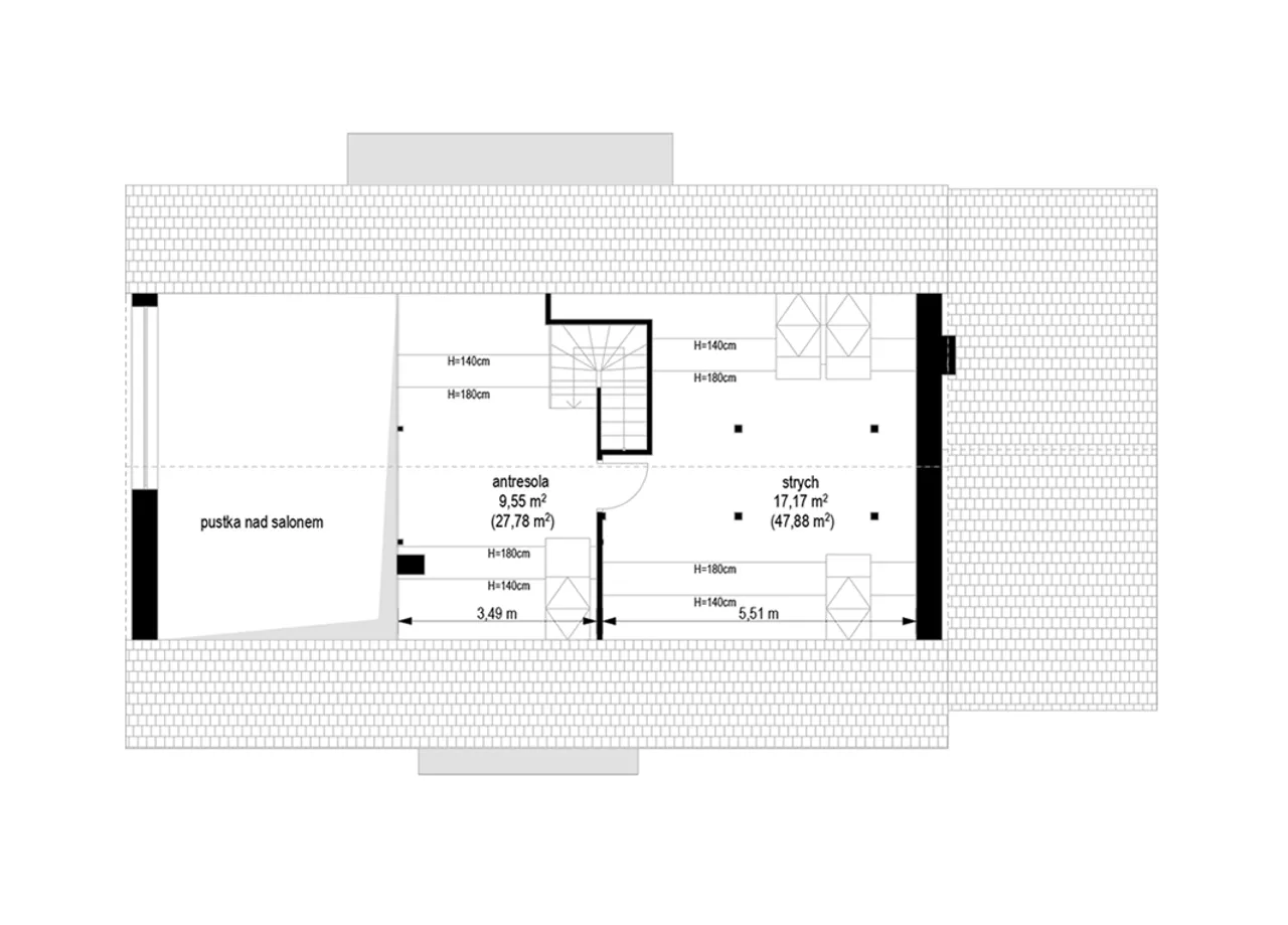
Funkcje dodatkowe z antresolą |
Liczba łazieniek 1 |
Koszty budowy tylko z kosztorysem, 250-300 tys. |
Ilość pokoi 4 |
Kondygnacje parterowy |
Technologia murowany |
Obiekt dom |
Szerokość budynku 17.93 m |
Kąt nachylenia dachu 35 ° |
Kotłownia duża kotłownia |
Kubatura 899 m³ |
Piwnica bez podpiwniczenia |
Powierzchnia dachu 211.51 m² |
Wysokość budynku 7.02 m |
Długość działki 19.25 m |
Styl budynku nowoczesny |
Liczba łazieniek 1 |
Pow. użytkowa 109.54 m² |
Garaż 1 stanowisko |
Szerokość działki 24.93 m |
Typ domu jednorodzinny całoroczny |
Kominek kominek w projekcie |
Długość budynku 11.25 m |
Strop żelbetowy |
Rodzaj garażu przyklejony |
Kalenica równoległa do drogi |
Rodzaj dachu dwuspadowy |
Przechowywanie w kuchni spiżarnia |
Bryła budynku prosta bryła |
Funkcje dodatkowe z antresolą |
Koszty budowy tylko z kosztorysem, 250-300 tys. |
Projekt domu Wymarzony 9 wariant B to propozycja dla osób ceniących prostotę formy, funkcjonalność i nowoczesny styl. Przemyślany układ pomieszczeń, antresola dodająca przestrzeni oraz przyklejony garaż na jedno stanowisko sprawiają, że ten dom jednorodzinny całoroczny spełni oczekiwania nawet najbardziej wymagających inwestorów.
Bryła budynku na planie prostokąta ułatwi realizację budowy na niemal każdej działce. Dom zachwyca połączeniem trwałości, praktyczności i nowoczesnego designu.
Wymarzony 9 wariant B został zaprojektowany w technologii murowanej ze ścianami z bloczków gazobetonowych o grubości 24 cm, ocieplonych styropianem, co przekłada się na świetną izolacyjność termiczną nawet podczas zimy. Trwałe fundamenty powstałe z betonowych ław i ścian z bloczków dają gwarancję solidnego posadowienia na długie lata.
Żelbetowy, monolityczny strop zapewnia stabilność konstrukcji, a dwuspadowy dach wykończony dachówką skutecznie chroni przed niekorzystnymi warunkami atmosferycznymi. Bryła domu została zaplanowana równolegle do drogi, co ułatwia adaptację projektu na działkach z różnym usytuowaniem. Przyklejony garaż wkomponowuje się płynnie w całość, a spiżarnia tuż przy kuchni usprawni codzienne przechowywanie zapasów.
Projekt domu Wymarzony 9 wariant B to idealny wybór dla rodzin szukających kompromisu między praktycznością codziennego użytkowania a elegancją. Antresola staje się tu ciekawym akcentem architektonicznym, który można dowolnie zaaranżować - jako przestrzeń do pracy, rozrywki lub relaksu. Precyzyjny rozkład pokoi, pomieszczenia gospodarcze oraz kominek wprowadzają przytulny klimat i tworzą wygodne warunki do życia przez cały rok.
Zainwestuj w projekt domu Wymarzony 9 wariant B już dziś - zyskaj trwałość, estetykę i funkcjonalność w jednym budynku. Nie zwlekaj - wybierz sprawdzony projekt i rozpocznij budowę swojego wymarzonego domu!
Kupując projekt w technologii murowanej powinieneś budować dom murowany. Zupełna zmiana technologii na szkieletową wymaga przeprojektowania całego budynku ( zmieniają się obciążenia, fundamenty, konstrukcja dachu). Wydamy zgodę na takie przeprojektowanie jednak wiążę się to z dużymi kosztami. Istnieją firmy wykonawcze, które podejmują się zmiany technologii budowy bezpłatnie przy skorzystaniu z ich usług wykonawczych. Zdarza się, że pracownia architektoniczna przygotowuje warianty konkretnego projektu przewidując także inne technologie. Prosimy o sprawdzenie czy istnieje poszukiwana wersja projektu, w zakładce - warianty projektu.
Zwężenie/poszerzenie budynku* to nic innego jak zmiana w projekcie. Istnieje możliwość wprowadzenia takich zmian, we własnym zakresie (podczas adaptacji). *zwężenie/poszerzenie budynku nie powinno stanowić problemu w przypadku domów o dachu dwuspadowym jeśli wiąże się to z wydłużeniem/skróceniem kalenicy dachu.
Poznaj praktyczne porady ekspertów, które ułatwią Ci każdy etap budowy i od wyboru wymarzonego domu po jego wykończenie. Zyskaj pewność, że podejmujesz najlepsze decyzje dzięki sprawdzonym wskazówkom od specjalistów z planz.pl
Wycena szacunkowa, w kwotach netto, nie zawiera instalacji.
bezpłatnie (0zł)
przelew zwykły / PayNow
przy odbiorze
3-10 dni roboczych
Wybierz wygodny dla Ciebie czas kontaktu z naszym Doradcą Technicznym.