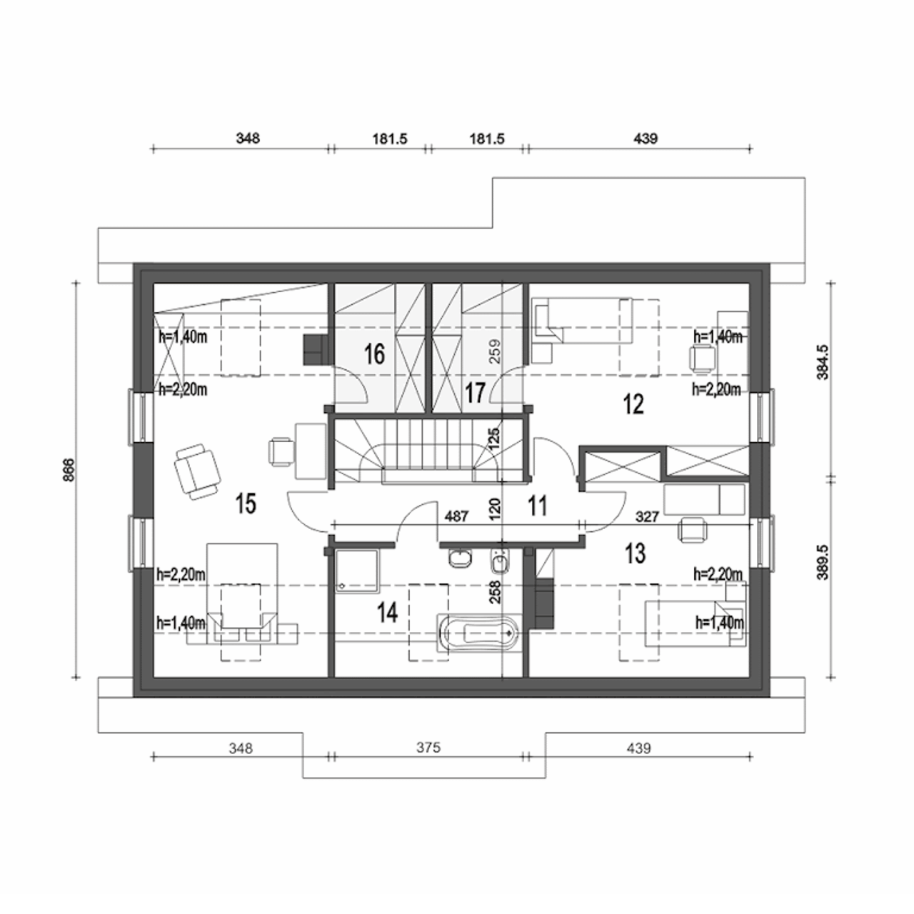
Figa Neo



1. Wiatrołap | 3,90 m² |
2. łazienka | 3,80 m² |
3. Korytarz | 6,20 m² |
4. Schody | 2,80 m² |
5. Pokój | 9,60 m² |
6. Salon | 22,50 m² |
7. Kuchnia | 7,30 m² |
8. Spiżarnia | 2,30 m² |
9. Garaż* | 18,80 m² |
10. Kotłownia* | 6,50 m² |
Wypełnij formularz i otrzymaj rysunki w pdf z dokładnymi wymiarami budynku i pomieszczeń (długość, szerokość, wysokość) dla projektu Westa z garażem 1-st. A
Ilość pokoi 5 |
Pow. użytkowa 107.3 m² |
Powierzchnia zabudowy 110.3 m² |
Kondygnacje parterowy+poddasze |
Garaż 1 stanowisko |
Technologia murowany |
Szerokość działki 20.7 m |
Obiekt dom |
Typ domu jednorodzinny całoroczny |
Kalenica równoległa do drogi |
Szerokość budynku 16.7 m |
Kotłownia duża kotłownia |
Funkcje dodatkowe z dwoma wejściami |
Długość budynku 8.7 m |
Rodzaj garażu w bryle |
Piwnica bez podpiwniczenia |
Kubatura 687.6 m³ |
Rodzaj dachu dwuspadowy |
Powierzchnia dachu 184.6 m² |
Przechowywanie w kuchni spiżarnia |
Długość działki 16.7 m |
Bryła budynku prosta bryła |
Wysokość budynku 8.1 m |
Styl budynku tradycyjny |
Liczba łazieniek 2 |
Kominek kominek w projekcie |
Kąt nachylenia dachu 40 ° |
Koszty budowy tylko z kosztorysem, 250-300 tys. |
Ilość pokoi 5 |
Powierzchnia zabudowy 110.3 m² |
Garaż 1 stanowisko |
Szerokość działki 20.7 m |
Typ domu jednorodzinny całoroczny |
Szerokość budynku 16.7 m |
Funkcje dodatkowe z dwoma wejściami |
Rodzaj garażu w bryle |
Kubatura 687.6 m³ |
Powierzchnia dachu 184.6 m² |
Długość działki 16.7 m |
Wysokość budynku 8.1 m |
Liczba łazieniek 2 |
Kąt nachylenia dachu 40 ° |
Pow. użytkowa 107.3 m² |
Kondygnacje parterowy+poddasze |
Technologia murowany |
Obiekt dom |
Kalenica równoległa do drogi |
Kotłownia duża kotłownia |
Długość budynku 8.7 m |
Piwnica bez podpiwniczenia |
Rodzaj dachu dwuspadowy |
Przechowywanie w kuchni spiżarnia |
Bryła budynku prosta bryła |
Styl budynku tradycyjny |
Kominek kominek w projekcie |
Koszty budowy tylko z kosztorysem, 250-300 tys. |
Kupując projekt w technologii murowanej powinieneś budować dom murowany. Zupełna zmiana technologii na szkieletową wymaga przeprojektowania całego budynku ( zmieniają się obciążenia, fundamenty, konstrukcja dachu). Wydamy zgodę na takie przeprojektowanie jednak wiążę się to z dużymi kosztami. Istnieją firmy wykonawcze, które podejmują się zmiany technologii budowy bezpłatnie przy skorzystaniu z ich usług wykonawczych. Zdarza się, że pracownia architektoniczna przygotowuje warianty konkretnego projektu przewidując także inne technologie. Prosimy o sprawdzenie czy istnieje poszukiwana wersja projektu, w zakładce - warianty projektu.
Zwężenie/poszerzenie budynku* to nic innego jak zmiana w projekcie. Istnieje możliwość wprowadzenia takich zmian, we własnym zakresie (podczas adaptacji). *zwężenie/poszerzenie budynku nie powinno stanowić problemu w przypadku domów o dachu dwuspadowym jeśli wiąże się to z wydłużeniem/skróceniem kalenicy dachu.
Poznaj praktyczne porady ekspertów, które ułatwią Ci każdy etap budowy i od wyboru wymarzonego domu po jego wykończenie. Zyskaj pewność, że podejmujesz najlepsze decyzje dzięki sprawdzonym wskazówkom od specjalistów z planz.pl
Wycena szacunkowa, w kwotach netto, nie zawiera instalacji.
bezpłatnie (0zł)
przelew zwykły / PayNow
przy odbiorze
3-5 dni roboczych (jeśli projekt nie jest koncepcją)
Zachwycający projekt. Niesie ze sobą wyjątkową harmonię i spójność. Unikalna wizja domowego komfortu.
Wybierz wygodny dla Ciebie czas kontaktu z naszym Doradcą Technicznym.