Viking



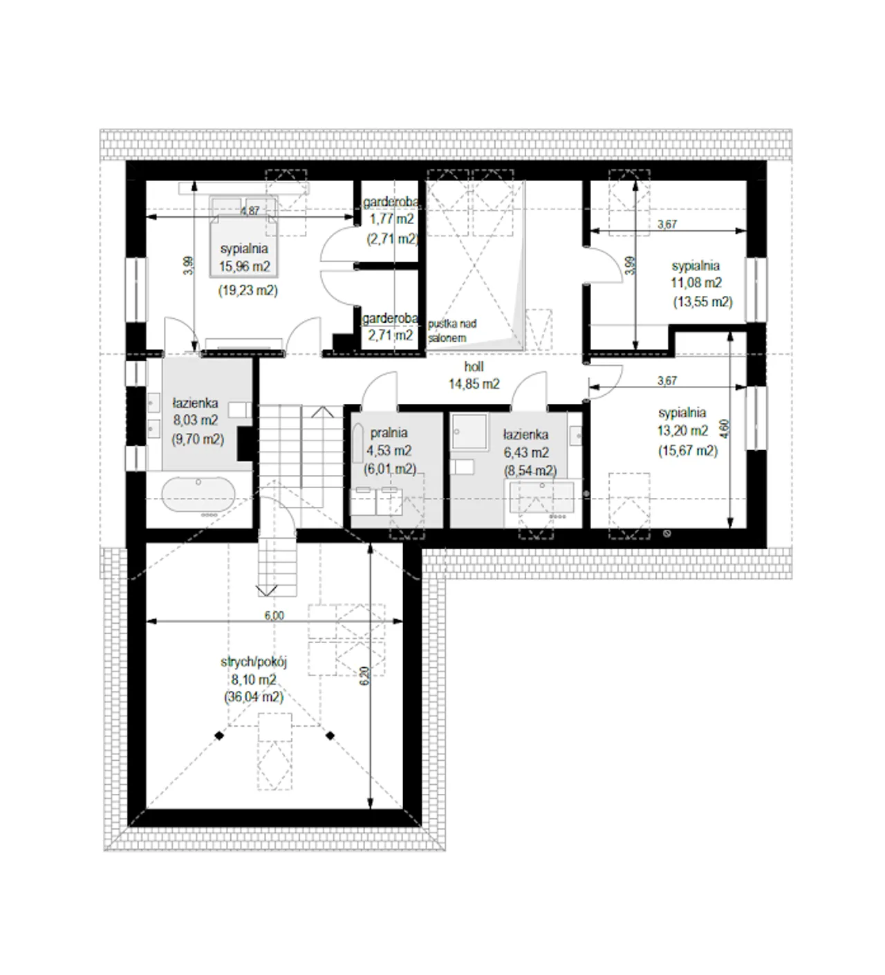
1. Hol | 14,85 m² |
2. Sypialnia | 15,96 (19,23) m² |
3. Garderoba | 1,77 (2,71) m² |
4. Garderoba | 2,71 m² |
5. łazienka | 8,03 (9,70) m² |
6. Sypialnia | 11,08 (13,55) m² |
7. Sypialnia | 13,20 (15,67) m² |
8. łazienka | 6,43 (8,54) m² |
9. Pralnia | 4,53 (6,01) m² |
10. Strych / pokój | 8,10 (36,04) m² |
1. Sień | 3,79 m² |
2. Hol | 13,30 m² |
3. Salon + jadalnia | 42,47 m² |
4. Kuchnia | 11,70 m² |
5. Spiżarnia | 1,75 m² |
6. Pokój | 11,85 m² |
7. łazienka | 2,71 m² |
8. Pom. gospdoarcze | 5,07 m² |
9. Kotłownia | 5,55 m² |
10. Garaż | 37,80 m² |
Wypełnij formularz i otrzymaj rysunki w pdf z dokładnymi wymiarami budynku i pomieszczeń (długość, szerokość, wysokość) dla projektu Viking 5 wariant B
Pow. użytkowa 171.21 m² |
Ilość pokoi 5 |
Kondygnacje parterowy+poddasze |
Garaż 2 stanowiska |
Technologia murowany |
Szerokość działki 22.94 m |
Obiekt dom |
Typ domu jednorodzinny całoroczny |
Kąt nachylenia dachu drugiego 35 |
Styl budynku nowoczesny |
Szerokość budynku 14.94 m |
Liczba łazieniek 3 |
Kąt nachylenia dachu 45 ° |
Długość budynku 15.55 m |
Kominek kominek w projekcie |
Kubatura 980 m³ |
Rodzaj garażu z przodu |
Piwnica bez podpiwniczenia |
Strop żelbetowy |
Powierzchnia dachu 290.88 m² |
Rodzaj dachu wielospadowy |
Kalenica prostopadła do drogi |
Wysokość budynku 9.14 m |
Przechowywanie w kuchni spiżarnia |
Długość działki 23.55 m |
Bryła budynku plan litery L |
Funkcje dodatkowe z pralnią |
Koszty budowy 450-500 tys., tylko z kosztorysem |
Pow. użytkowa 171.21 m² |
Kondygnacje parterowy+poddasze |
Technologia murowany |
Obiekt dom |
Kąt nachylenia dachu drugiego 35 |
Szerokość budynku 14.94 m |
Kąt nachylenia dachu 45 ° |
Kominek kominek w projekcie |
Rodzaj garażu z przodu |
Strop żelbetowy |
Rodzaj dachu wielospadowy |
Wysokość budynku 9.14 m |
Długość działki 23.55 m |
Funkcje dodatkowe z pralnią |
Ilość pokoi 5 |
Garaż 2 stanowiska |
Szerokość działki 22.94 m |
Typ domu jednorodzinny całoroczny |
Styl budynku nowoczesny |
Liczba łazieniek 3 |
Długość budynku 15.55 m |
Kubatura 980 m³ |
Piwnica bez podpiwniczenia |
Powierzchnia dachu 290.88 m² |
Kalenica prostopadła do drogi |
Przechowywanie w kuchni spiżarnia |
Bryła budynku plan litery L |
Koszty budowy 450-500 tys., tylko z kosztorysem |
Odkryj projekt domu Viking 5 wariant B - wyjątkową propozycję nowoczesnego domu jednorodzinnego dla wymagającej rodziny. Funkcjonalny układ przestrzeni, wygodny garaż dwustanowiskowy i praktyczne rozwiązania sprawiają, że ten projekt jest doskonałą bazą pod budowę bezkompromisowego domu całorocznego.
Nowoczesna bryła o planie litery L, poddasze użytkowe oraz wyraziste akcenty architektoniczne podkreślą indywidualny charakter Twojego domu. Dom wybudowany według tego projektu wyróżnia się znakomitą ergonomią oraz dbałością o codzienne potrzeby domowników.
Prosty w budowie, a zarazem nowoczesny projekt domu Viking 5 wariant B to propozycja dla osób poszukujących architektury z charakterem. Dom zaplanowano jako budynek z poddaszem użytkowym na solidnych fundamentach betonowych, bez podpiwniczenia. Ściany zewnętrzne wykonano z wysokiej jakości pustaków Porotherm o grubości 25 cm, ocieplone dodatkowymi 22 centymetrami styropianu. Całość wzbogacona została o wytrzymałe żelbetowe stropy i pokrycie dachu nowoczesną dachówką.
Dwustanowiskowy garaż wkomponowany w bryłę zapewnia nie tylko bezpieczeństwo pojazdów, ale także wygodny dostęp do części mieszkalnej. Praktyczna pralnia pozwala zorganizować codzienną rutynę, a spiżarnia przy kuchni dba o domową logistykę. Wielospadowy dach o nachyleniu 45° łączy walory estetyczne z funkcjonalnością - skutecznie odprowadza wodę i podkreśla nowoczesny styl domu. Prostopadła do drogi kalenica sprawia, że budynek doskonale komponuje się z różnorodnymi działkami.
Zamów projekt domu Viking 5 wariant B i przekonaj się, jak wygodne i nowoczesne może być codzienne życie we własnych czterech ścianach!
Kupując projekt w technologii murowanej powinieneś budować dom murowany. Zupełna zmiana technologii na szkieletową wymaga przeprojektowania całego budynku ( zmieniają się obciążenia, fundamenty, konstrukcja dachu). Wydamy zgodę na takie przeprojektowanie jednak wiążę się to z dużymi kosztami. Istnieją firmy wykonawcze, które podejmują się zmiany technologii budowy bezpłatnie przy skorzystaniu z ich usług wykonawczych. Zdarza się, że pracownia architektoniczna przygotowuje warianty konkretnego projektu przewidując także inne technologie. Prosimy o sprawdzenie czy istnieje poszukiwana wersja projektu, w zakładce - warianty projektu.
Zwężenie/poszerzenie budynku* to nic innego jak zmiana w projekcie. Istnieje możliwość wprowadzenia takich zmian, we własnym zakresie (podczas adaptacji). *zwężenie/poszerzenie budynku nie powinno stanowić problemu w przypadku domów o dachu dwuspadowym jeśli wiąże się to z wydłużeniem/skróceniem kalenicy dachu.
Poznaj praktyczne porady ekspertów, które ułatwią Ci każdy etap budowy i od wyboru wymarzonego domu po jego wykończenie. Zyskaj pewność, że podejmujesz najlepsze decyzje dzięki sprawdzonym wskazówkom od specjalistów z planz.pl
Wycena szacunkowa, w kwotach netto, nie zawiera instalacji.
bezpłatnie (0zł)
przelew zwykły / PayNow
przy odbiorze
3-10 dni roboczych
Wybierz wygodny dla Ciebie czas kontaktu z naszym Doradcą Technicznym.