TK31



Zawartość projektu
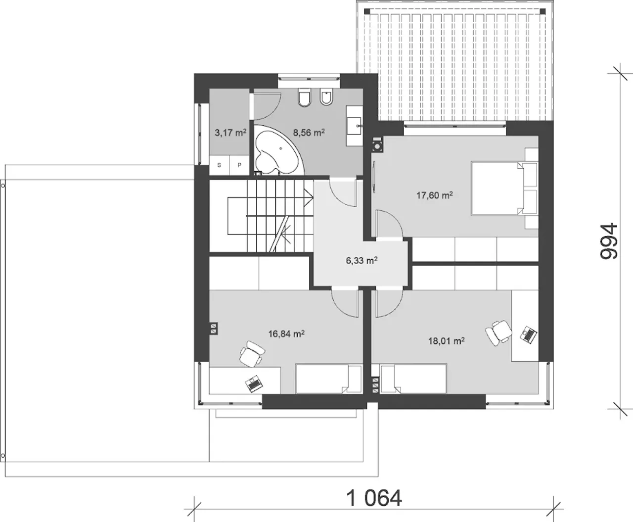
1. Wiatrołap | 9,04 m² |
2. łazienka | 4,61 m² |
3. Gabinet | 11,77 m² |
4. Pokój dzienny + jadalnia | 34,62 m² |
5. Kuchnia | 8,15 m² |
6. Spiżarnia | 1,99 m² |
7. Pom. gospodarcze | 11,58 m² |
8. Garaż | 31,95 m² |
Wypełnij formularz i otrzymaj rysunki w pdf z dokładnymi wymiarami budynku i pomieszczeń (długość, szerokość, wysokość) dla projektu UA85
Ilość pokoi 5 |
Pow. użytkowa 140.7 m² |
Powierzchnia zabudowy 151.54 m² |
Kondygnacje piętrowy |
Garaż 2 stanowiska |
Technologia murowany |
Szerokość działki 24.24 m |
Obiekt dom |
Typ domu jednorodzinny całoroczny |
Kubatura 800 m³ |
Rodzaj garażu przyklejony |
Funkcje dodatkowe z pralnią |
Powierzchnia dachu 158 m² |
Rodzaj dachu wielospadowy |
Długość działki 19.94 m |
Ogrzewanie gaz |
Liczba łazieniek 2 |
Wysokość budynku 8.54 m |
Przechowywanie w kuchni spiżarnia |
Kominek kominek w projekcie |
Styl budynku nowoczesny |
Kotłownia duża kotłownia |
Szerokość budynku 16.24 m |
Taras z tarasem |
Kąt nachylenia dachu 25 ° |
Strop żelbetowy |
Długość budynku 11.94 m |
Piwnica bez podpiwniczenia |
Kalenica równoległa do drogi |
Koszty budowy 350-400 tys., tylko z kosztorysem |
Ilość pokoi 5 |
Powierzchnia zabudowy 151.54 m² |
Garaż 2 stanowiska |
Szerokość działki 24.24 m |
Typ domu jednorodzinny całoroczny |
Rodzaj garażu przyklejony |
Powierzchnia dachu 158 m² |
Długość działki 19.94 m |
Liczba łazieniek 2 |
Przechowywanie w kuchni spiżarnia |
Styl budynku nowoczesny |
Szerokość budynku 16.24 m |
Kąt nachylenia dachu 25 ° |
Długość budynku 11.94 m |
Kalenica równoległa do drogi |
Pow. użytkowa 140.7 m² |
Kondygnacje piętrowy |
Technologia murowany |
Obiekt dom |
Kubatura 800 m³ |
Funkcje dodatkowe z pralnią |
Rodzaj dachu wielospadowy |
Ogrzewanie gaz |
Wysokość budynku 8.54 m |
Kominek kominek w projekcie |
Kotłownia duża kotłownia |
Taras z tarasem |
Strop żelbetowy |
Piwnica bez podpiwniczenia |
Koszty budowy 350-400 tys., tylko z kosztorysem |
Kupując projekt w technologii murowanej powinieneś budować dom murowany. Zupełna zmiana technologii na szkieletową wymaga przeprojektowania całego budynku ( zmieniają się obciążenia, fundamenty, konstrukcja dachu). Wydamy zgodę na takie przeprojektowanie jednak wiążę się to z dużymi kosztami. Istnieją firmy wykonawcze, które podejmują się zmiany technologii budowy bezpłatnie przy skorzystaniu z ich usług wykonawczych. Zdarza się, że pracownia architektoniczna przygotowuje warianty konkretnego projektu przewidując także inne technologie. Prosimy o sprawdzenie czy istnieje poszukiwana wersja projektu, w zakładce - warianty projektu.
Zwężenie/poszerzenie budynku* to nic innego jak zmiana w projekcie. Istnieje możliwość wprowadzenia takich zmian, we własnym zakresie (podczas adaptacji). *zwężenie/poszerzenie budynku nie powinno stanowić problemu w przypadku domów o dachu dwuspadowym jeśli wiąże się to z wydłużeniem/skróceniem kalenicy dachu.
Poznaj praktyczne porady ekspertów, które ułatwią Ci każdy etap budowy i od wyboru wymarzonego domu po jego wykończenie. Zyskaj pewność, że podejmujesz najlepsze decyzje dzięki sprawdzonym wskazówkom od specjalistów z planz.pl
Wycena szacunkowa, w kwotach netto, nie zawiera instalacji.
bezpłatnie (0zł)
przelew zwykły / PayNow
przy odbiorze
2-4 dni robocze (jeśli projekt nie jest koncepcją)
Wybierz wygodny dla Ciebie czas kontaktu z naszym Doradcą Technicznym.