Syntia II wersja B



Zawartość projektu
1. Wiatrołap | 5,36 m² |
2. Garderoba | 3,89 m² |
3. Pom. gospodarcze | 9,59 m² |
4. łazienka | 5,77 m² |
5. Pokój dzienny | 28,46 m² |
6. Jadalnia | 17,46 m² |
7. Kuchnia | 12,68 m² |
8. Gabinet | 16,99 m² |
9. Korytarz | 5,30 m² |
10. Garaż | 40,45 m² |
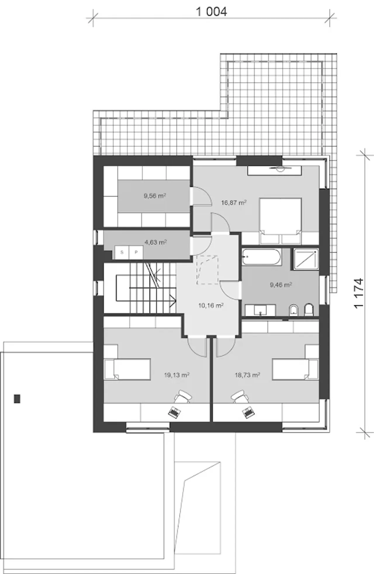
1. Korytarz | 10,16 m² |
2. Pralnia | 4,63 m² |
3. Garderoba | 9,56 m² |
4. Sypialnia | 16,87 m² |
5. łazienka | 9,46 m² |
6. Pokój 1 | 18,73 m² |
7. Pokój 2 | 19,13 m² |
Wypełnij formularz i otrzymaj rysunki w pdf z dokładnymi wymiarami budynku i pomieszczeń (długość, szerokość, wysokość) dla projektu uA68
Pow. użytkowa 182.9 m² |
Ilość pokoi 5 |
Powierzchnia zabudowy 184.36 m² |
Kondygnacje piętrowy |
Garaż 2 stanowiska |
Technologia murowany |
Szerokość działki 20.84 m |
Obiekt dom |
Typ domu jednorodzinny całoroczny |
Kubatura 990 m³ |
Rodzaj garażu z przodu |
Kalenica prostopadła do drogi |
Powierzchnia dachu 177 m² |
Rodzaj dachu wielospadowy |
Długość działki 29.49 m |
Ogrzewanie gaz |
Funkcje dodatkowe z pralnią |
Liczba łazieniek 2 |
Wysokość budynku 8.94 m |
Kąt nachylenia dachu drugiego 4 |
Kominek kominek opcjonalnie |
Styl budynku nowoczesny |
Kotłownia duża kotłownia |
Szerokość budynku 13.84 m |
Taras z tarasem |
Kąt nachylenia dachu 25 ° |
Długość budynku 18.8 m |
Piwnica bez podpiwniczenia |
Strop żelbetowy |
Koszty budowy 450-500 tys., tylko z kosztorysem |
Pow. użytkowa 182.9 m² |
Powierzchnia zabudowy 184.36 m² |
Garaż 2 stanowiska |
Szerokość działki 20.84 m |
Typ domu jednorodzinny całoroczny |
Rodzaj garażu z przodu |
Powierzchnia dachu 177 m² |
Długość działki 29.49 m |
Funkcje dodatkowe z pralnią |
Wysokość budynku 8.94 m |
Kominek kominek opcjonalnie |
Kotłownia duża kotłownia |
Taras z tarasem |
Długość budynku 18.8 m |
Strop żelbetowy |
Ilość pokoi 5 |
Kondygnacje piętrowy |
Technologia murowany |
Obiekt dom |
Kubatura 990 m³ |
Kalenica prostopadła do drogi |
Rodzaj dachu wielospadowy |
Ogrzewanie gaz |
Liczba łazieniek 2 |
Kąt nachylenia dachu drugiego 4 |
Styl budynku nowoczesny |
Szerokość budynku 13.84 m |
Kąt nachylenia dachu 25 ° |
Piwnica bez podpiwniczenia |
Koszty budowy 450-500 tys., tylko z kosztorysem |
Kupując projekt w technologii murowanej powinieneś budować dom murowany. Zupełna zmiana technologii na szkieletową wymaga przeprojektowania całego budynku ( zmieniają się obciążenia, fundamenty, konstrukcja dachu). Wydamy zgodę na takie przeprojektowanie jednak wiążę się to z dużymi kosztami. Istnieją firmy wykonawcze, które podejmują się zmiany technologii budowy bezpłatnie przy skorzystaniu z ich usług wykonawczych. Zdarza się, że pracownia architektoniczna przygotowuje warianty konkretnego projektu przewidując także inne technologie. Prosimy o sprawdzenie czy istnieje poszukiwana wersja projektu, w zakładce - warianty projektu.
Zwężenie/poszerzenie budynku* to nic innego jak zmiana w projekcie. Istnieje możliwość wprowadzenia takich zmian, we własnym zakresie (podczas adaptacji). *zwężenie/poszerzenie budynku nie powinno stanowić problemu w przypadku domów o dachu dwuspadowym jeśli wiąże się to z wydłużeniem/skróceniem kalenicy dachu.
Poznaj praktyczne porady ekspertów, które ułatwią Ci każdy etap budowy i od wyboru wymarzonego domu po jego wykończenie. Zyskaj pewność, że podejmujesz najlepsze decyzje dzięki sprawdzonym wskazówkom od specjalistów z planz.pl
Wycena szacunkowa, w kwotach netto, nie zawiera instalacji.
bezpłatnie (0zł)
przelew zwykły / PayNow
przy odbiorze
2-4 dni robocze (jeśli projekt nie jest koncepcją)
Wybierz wygodny dla Ciebie czas kontaktu z naszym Doradcą Technicznym.