TK35



Zawartość projektu
1. Wiatrołap | 9,34 m² |
2. Korytarz | 10,95 m² |
3. Pokój dzienny | 25,64 m² |
4. Jadalnia | 16,03 m² |
5. Kuchnia | 17,50 m² |
6. Spiżarnia | 4,23 m² |
7. Gabinet | 10,90 m² |
8. łazienka | 4,78 m² |
9. Garderoba | 3,38 m² |
10. Pom. gospodarcze | 9,99 m² |
11. Garaż | 36,72 m² |
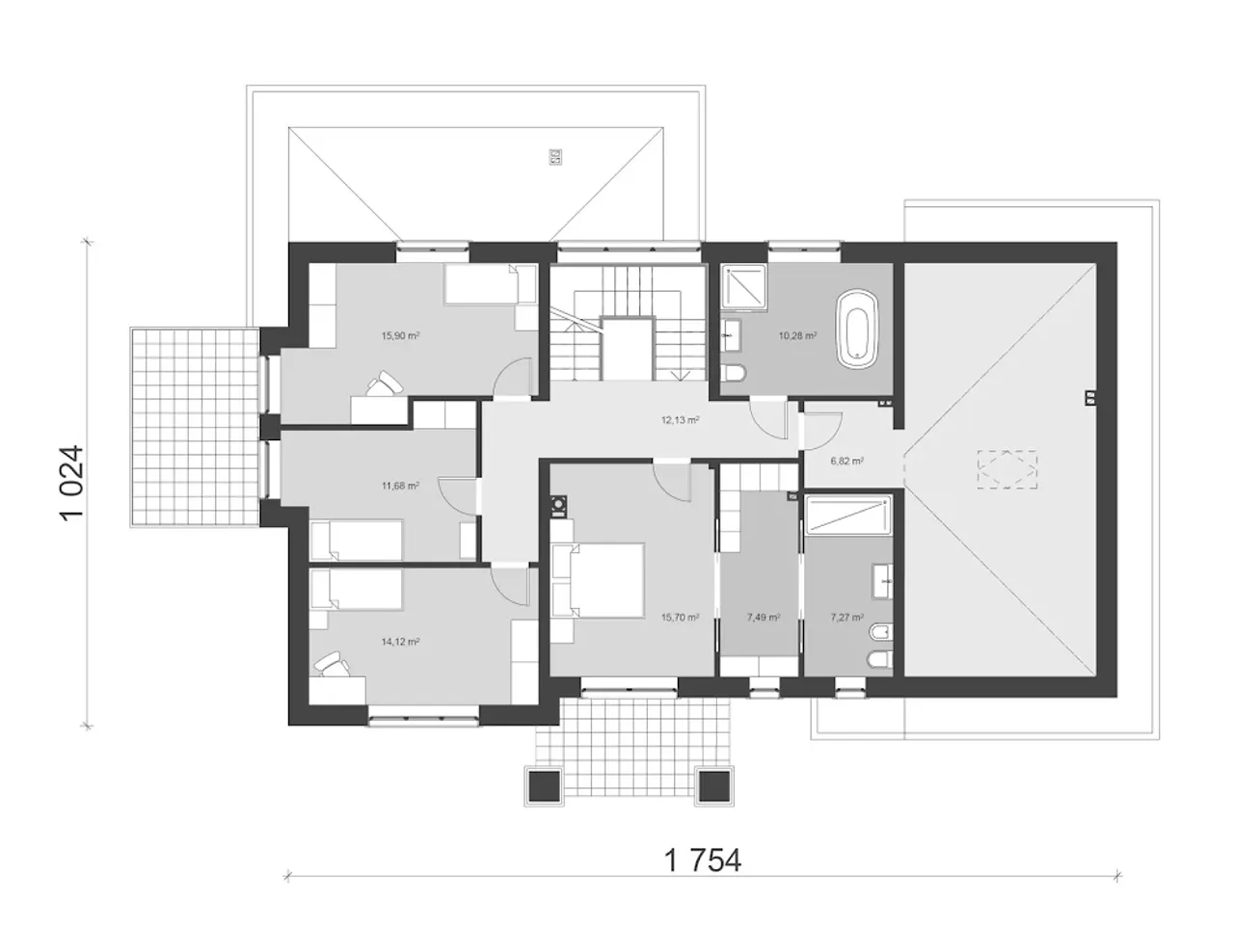
1. Korytarz | 12,13 m² |
2. Sypialnia | 15,70 m² |
3. Pokoj 1 | 14,12 m² |
4. Pokój 2 | 11,68 m² |
5. Pokój 3 | 15,90 m² |
6. łazienka | 10,12 m² |
7. Garderoba | 7,49 m² |
8. łazienka | 7,27 m² |
9. Pom. gospodarcze | 6,82 m² |
Wypełnij formularz i otrzymaj rysunki w pdf z dokładnymi wymiarami budynku i pomieszczeń (długość, szerokość, wysokość) dla projektu UA50
Ilość pokoi 6 |
Pow. użytkowa 204.2 m² |
Powierzchnia zabudowy 194.16 m² |
Kondygnacje piętrowy |
Garaż 2 stanowiska |
Technologia murowany |
Szerokość działki 28.27 m |
Obiekt dom |
Typ domu jednorodzinny całoroczny |
Długość budynku 12.64 m |
Piwnica bez podpiwniczenia |
Strop żelbetowy |
Kubatura 1160 m³ |
Rodzaj garażu przyklejony |
Kalenica równoległa do drogi |
Powierzchnia dachu 234 m² |
Rodzaj dachu wielospadowy |
Długość działki 20.64 m |
Ogrzewanie gaz |
Liczba łazieniek 3 |
Wysokość budynku 9.3 m |
Przechowywanie w kuchni spiżarnia |
Kominek kominek w projekcie |
Funkcje dodatkowe z dwoma wejściami |
Styl budynku wille i rezydencje |
Kotłownia duża kotłownia |
Szerokość budynku 18.14 m |
Taras z tarasem |
Kąt nachylenia dachu 27 ° |
Koszty budowy 500-550 tys., tylko z kosztorysem |
Ilość pokoi 6 |
Powierzchnia zabudowy 194.16 m² |
Garaż 2 stanowiska |
Szerokość działki 28.27 m |
Typ domu jednorodzinny całoroczny |
Piwnica bez podpiwniczenia |
Kubatura 1160 m³ |
Kalenica równoległa do drogi |
Rodzaj dachu wielospadowy |
Ogrzewanie gaz |
Wysokość budynku 9.3 m |
Kominek kominek w projekcie |
Styl budynku wille i rezydencje |
Szerokość budynku 18.14 m |
Kąt nachylenia dachu 27 ° |
Pow. użytkowa 204.2 m² |
Kondygnacje piętrowy |
Technologia murowany |
Obiekt dom |
Długość budynku 12.64 m |
Strop żelbetowy |
Rodzaj garażu przyklejony |
Powierzchnia dachu 234 m² |
Długość działki 20.64 m |
Liczba łazieniek 3 |
Przechowywanie w kuchni spiżarnia |
Funkcje dodatkowe z dwoma wejściami |
Kotłownia duża kotłownia |
Taras z tarasem |
Koszty budowy 500-550 tys., tylko z kosztorysem |
Kupując projekt w technologii murowanej powinieneś budować dom murowany. Zupełna zmiana technologii na szkieletową wymaga przeprojektowania całego budynku ( zmieniają się obciążenia, fundamenty, konstrukcja dachu). Wydamy zgodę na takie przeprojektowanie jednak wiążę się to z dużymi kosztami. Istnieją firmy wykonawcze, które podejmują się zmiany technologii budowy bezpłatnie przy skorzystaniu z ich usług wykonawczych. Zdarza się, że pracownia architektoniczna przygotowuje warianty konkretnego projektu przewidując także inne technologie. Prosimy o sprawdzenie czy istnieje poszukiwana wersja projektu, w zakładce - warianty projektu.
Zwężenie/poszerzenie budynku* to nic innego jak zmiana w projekcie. Istnieje możliwość wprowadzenia takich zmian, we własnym zakresie (podczas adaptacji). *zwężenie/poszerzenie budynku nie powinno stanowić problemu w przypadku domów o dachu dwuspadowym jeśli wiąże się to z wydłużeniem/skróceniem kalenicy dachu.
Poznaj praktyczne porady ekspertów, które ułatwią Ci każdy etap budowy i od wyboru wymarzonego domu po jego wykończenie. Zyskaj pewność, że podejmujesz najlepsze decyzje dzięki sprawdzonym wskazówkom od specjalistów z planz.pl
Wycena szacunkowa, w kwotach netto, nie zawiera instalacji.
bezpłatnie (0zł)
przelew zwykły / PayNow
przy odbiorze
2-4 dni robocze (jeśli projekt nie jest koncepcją)
Wybierz wygodny dla Ciebie czas kontaktu z naszym Doradcą Technicznym.