TK35



Zawartość projektu
1. Wiatrołap | 4,10 m² |
2. Kuchnia | 15,17 m² |
3. Pokój dzienny + jadalnia | 41,50 m² |
4. Spiżarnia | 1,52 m² |
5. Hol | 3,46 m² |
6. Pokój | 13,04 m² |
7. Korytarz | 3,83 m² |
8. Pokój | 16,40 m² |
9. łazienka | 4,77 m² |
10. Pom. gospodarcze | 11,75 m² |
11. Garaż | 39,18 m² |
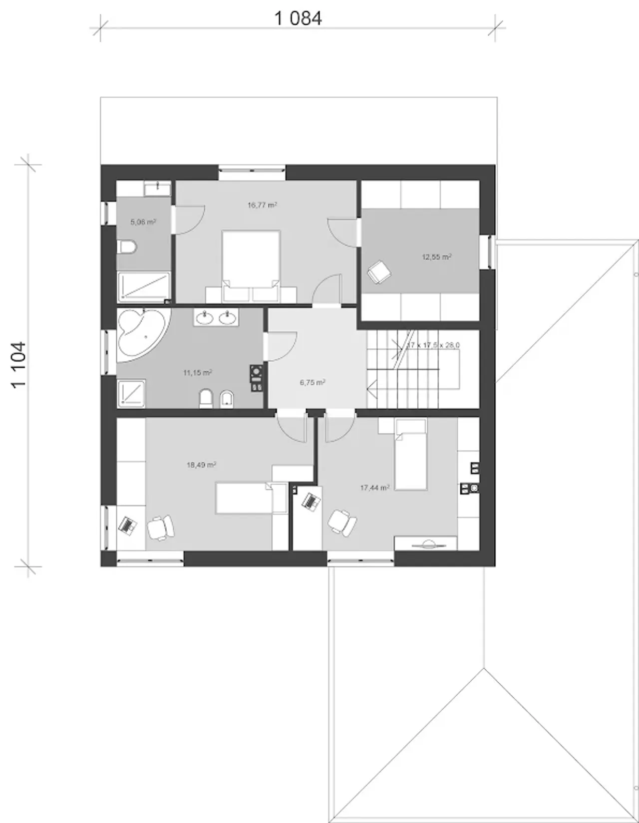
1. Pokój 1 | 17,44 m² |
2. Pokój 2 | 18,49 m² |
3. łazienka | 11,15 m² |
4. łazienka | 5,06 m² |
5. Sypialnia | 16,77 m² |
6. Garderoba | 12,55 m² |
7. Korytarz | 6,75 m² |
Wypełnij formularz i otrzymaj rysunki w pdf z dokładnymi wymiarami budynku i pomieszczeń (długość, szerokość, wysokość) dla projektu uA40
Ilość pokoi 6 |
Pow. użytkowa 192.8 m² |
Powierzchnia zabudowy 200.66 m² |
Kondygnacje piętrowy |
Garaż 2 stanowiska |
Technologia murowany |
Szerokość działki 22.14 m |
Obiekt dom |
Typ domu jednorodzinny całoroczny |
Piwnica bez podpiwniczenia |
Kubatura 1100 m³ |
Rodzaj garażu z przodu |
Powierzchnia dachu 264 m² |
Rodzaj dachu wielospadowy |
Długość działki 27.24 m |
Ogrzewanie gaz |
Wysokość budynku 8.82 m |
Przechowywanie w kuchni spiżarnia |
Liczba łazieniek 2 |
Styl budynku nowoczesny |
Kominek kominek w projekcie |
Szerokość budynku 14.14 m |
Kotłownia duża kotłownia |
Kąt nachylenia dachu 22 ° |
Kalenica prostopadła do drogi |
Długość budynku 19.24 m |
Koszty budowy 500-550 tys., tylko z kosztorysem |
Ilość pokoi 6 |
Powierzchnia zabudowy 200.66 m² |
Garaż 2 stanowiska |
Szerokość działki 22.14 m |
Typ domu jednorodzinny całoroczny |
Kubatura 1100 m³ |
Powierzchnia dachu 264 m² |
Długość działki 27.24 m |
Wysokość budynku 8.82 m |
Liczba łazieniek 2 |
Kominek kominek w projekcie |
Kotłownia duża kotłownia |
Kalenica prostopadła do drogi |
Koszty budowy 500-550 tys., tylko z kosztorysem |
Pow. użytkowa 192.8 m² |
Kondygnacje piętrowy |
Technologia murowany |
Obiekt dom |
Piwnica bez podpiwniczenia |
Rodzaj garażu z przodu |
Rodzaj dachu wielospadowy |
Ogrzewanie gaz |
Przechowywanie w kuchni spiżarnia |
Styl budynku nowoczesny |
Szerokość budynku 14.14 m |
Kąt nachylenia dachu 22 ° |
Długość budynku 19.24 m |
Kupując projekt w technologii murowanej powinieneś budować dom murowany. Zupełna zmiana technologii na szkieletową wymaga przeprojektowania całego budynku ( zmieniają się obciążenia, fundamenty, konstrukcja dachu). Wydamy zgodę na takie przeprojektowanie jednak wiążę się to z dużymi kosztami. Istnieją firmy wykonawcze, które podejmują się zmiany technologii budowy bezpłatnie przy skorzystaniu z ich usług wykonawczych. Zdarza się, że pracownia architektoniczna przygotowuje warianty konkretnego projektu przewidując także inne technologie. Prosimy o sprawdzenie czy istnieje poszukiwana wersja projektu, w zakładce - warianty projektu.
Zwężenie/poszerzenie budynku* to nic innego jak zmiana w projekcie. Istnieje możliwość wprowadzenia takich zmian, we własnym zakresie (podczas adaptacji). *zwężenie/poszerzenie budynku nie powinno stanowić problemu w przypadku domów o dachu dwuspadowym jeśli wiąże się to z wydłużeniem/skróceniem kalenicy dachu.
Poznaj praktyczne porady ekspertów, które ułatwią Ci każdy etap budowy i od wyboru wymarzonego domu po jego wykończenie. Zyskaj pewność, że podejmujesz najlepsze decyzje dzięki sprawdzonym wskazówkom od specjalistów z planz.pl
Wycena szacunkowa, w kwotach netto, nie zawiera instalacji.
bezpłatnie (0zł)
przelew zwykły / PayNow
przy odbiorze
2-4 dni robocze (jeśli projekt nie jest koncepcją)
"Klasyczna elegancja połączona z nowoczesnymi elementami. Idealne połączenie funkcjonalności i estetyki, z przemyślanym podziałem przestrzeni. Projekt zdecydowanie godny uwagi."
Wybierz wygodny dla Ciebie czas kontaktu z naszym Doradcą Technicznym.