Bono 2



Zawartość projektu
Wypełnij formularz i otrzymaj rysunki w pdf z dokładnymi wymiarami budynku i pomieszczeń (długość, szerokość, wysokość) dla projektu UA360
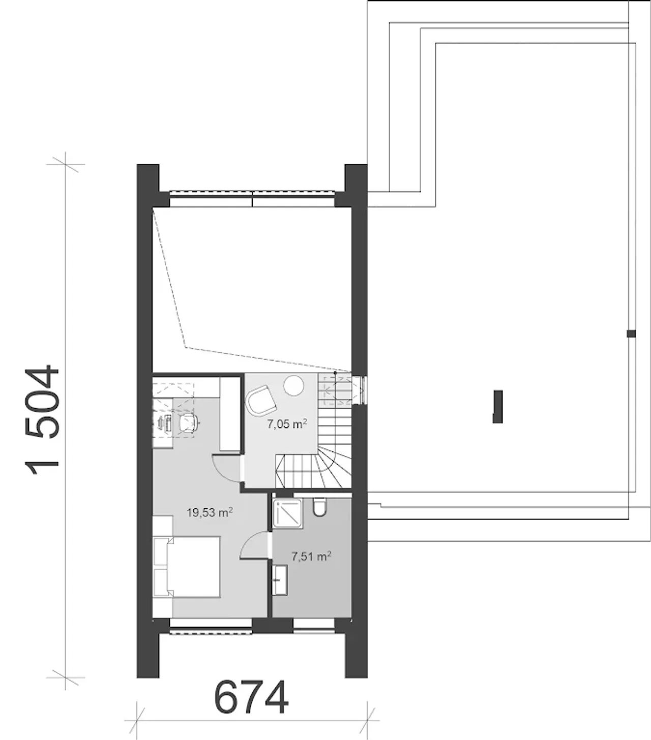
Pow. użytkowa 190.29 m² |
Powierzchnia zabudowy 200.1 m² |
Kondygnacje parterowy+poddasze |
Garaż bez garażu |
Technologia murowany |
Szerokość działki 23.04 m |
Obiekt dom |
Typ domu jednorodzinny całoroczny |
Kubatura 903 m³ |
Kalenica prostopadła do drogi |
Kominek kominek w projekcie |
Styl budynku nowoczesny |
Powierzchnia dachu 237 m² |
Piwnica bez podpiwniczenia |
Wysokość budynku 8.11 m |
Długość działki 57.74 m |
Rodzaj dachu dwuspadowy |
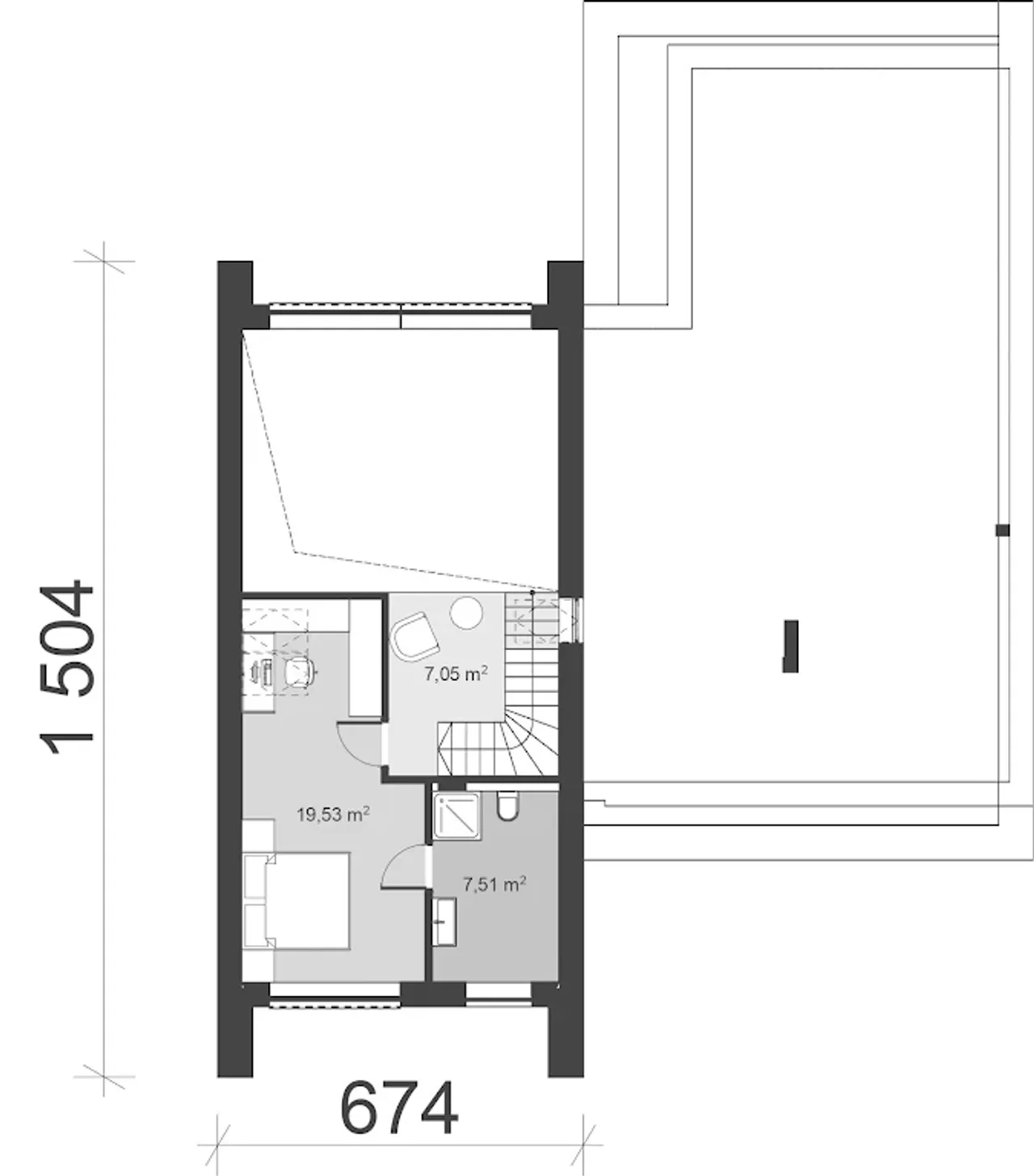
Pow. użytkowa 190.29 m² |
Kondygnacje parterowy+poddasze |
Technologia murowany |
Obiekt dom |
Kubatura 903 m³ |
Kominek kominek w projekcie |
Powierzchnia dachu 237 m² |
Wysokość budynku 8.11 m |
Rodzaj dachu dwuspadowy |
Powierzchnia zabudowy 200.1 m² |
Garaż bez garażu |
Szerokość działki 23.04 m |
Typ domu jednorodzinny całoroczny |
Kalenica prostopadła do drogi |
Styl budynku nowoczesny |
Piwnica bez podpiwniczenia |
Długość działki 57.74 m |
Kupując projekt w technologii murowanej powinieneś budować dom murowany. Zupełna zmiana technologii na szkieletową wymaga przeprojektowania całego budynku ( zmieniają się obciążenia, fundamenty, konstrukcja dachu). Wydamy zgodę na takie przeprojektowanie jednak wiążę się to z dużymi kosztami. Istnieją firmy wykonawcze, które podejmują się zmiany technologii budowy bezpłatnie przy skorzystaniu z ich usług wykonawczych. Zdarza się, że pracownia architektoniczna przygotowuje warianty konkretnego projektu przewidując także inne technologie. Prosimy o sprawdzenie czy istnieje poszukiwana wersja projektu, w zakładce - warianty projektu.
Zwężenie/poszerzenie budynku* to nic innego jak zmiana w projekcie. Istnieje możliwość wprowadzenia takich zmian, we własnym zakresie (podczas adaptacji). *zwężenie/poszerzenie budynku nie powinno stanowić problemu w przypadku domów o dachu dwuspadowym jeśli wiąże się to z wydłużeniem/skróceniem kalenicy dachu.
Poznaj praktyczne porady ekspertów, które ułatwią Ci każdy etap budowy i od wyboru wymarzonego domu po jego wykończenie. Zyskaj pewność, że podejmujesz najlepsze decyzje dzięki sprawdzonym wskazówkom od specjalistów z planz.pl
bezpłatnie (0zł)
przelew zwykły / PayNow
przy odbiorze
2-4 dni robocze (jeśli projekt nie jest koncepcją)
Wybierz wygodny dla Ciebie czas kontaktu z naszym Doradcą Technicznym.