uA32



Zawartość projektu
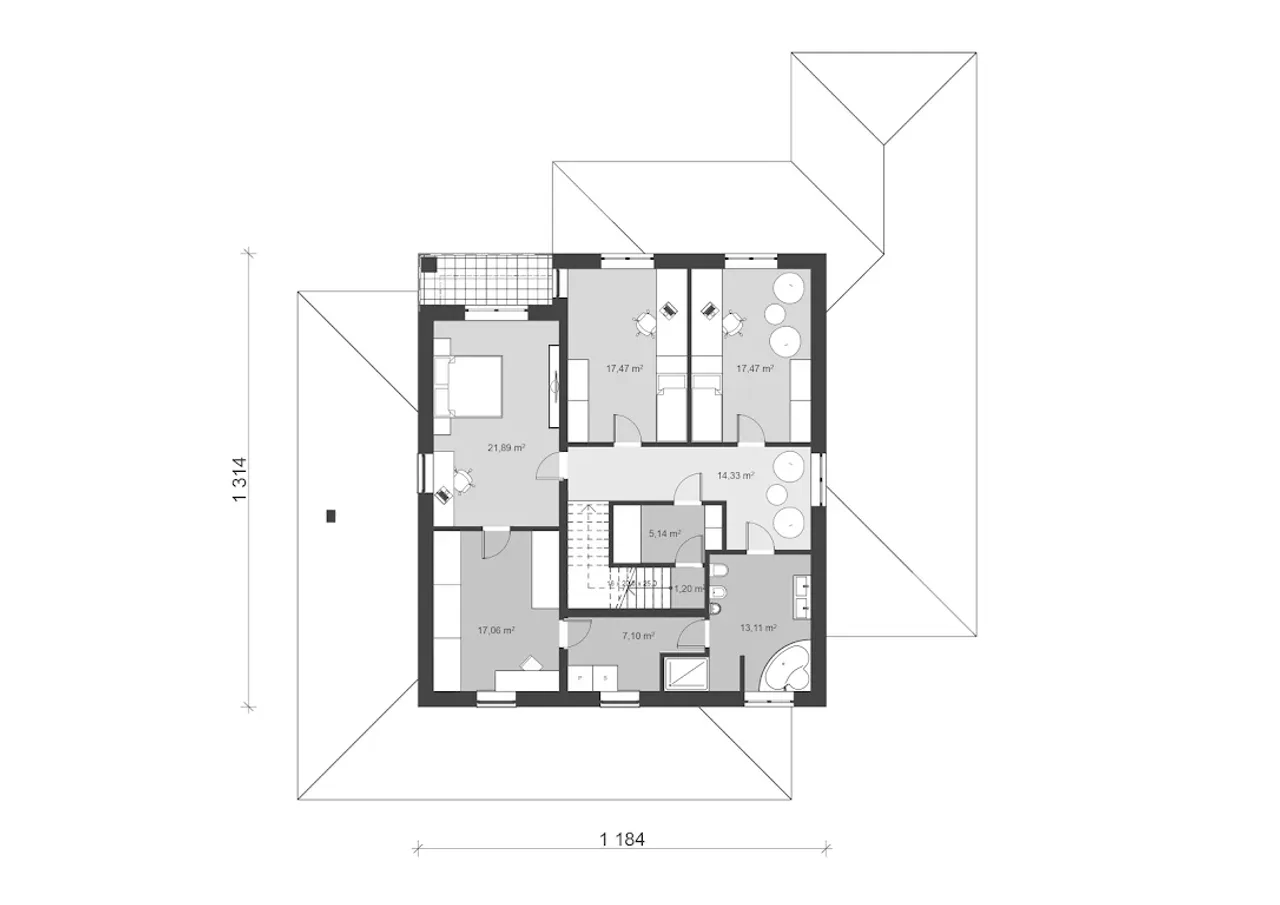
Wypełnij formularz i otrzymaj rysunki w pdf z dokładnymi wymiarami budynku i pomieszczeń (długość, szerokość, wysokość) dla projektu uA32v1
Pow. użytkowa 241.5 m² |
Powierzchnia zabudowy 248.69 m² |
Kondygnacje piętrowy |
Garaż 2 stanowiska |
Technologia murowany |
Szerokość działki 27.18 m |
Obiekt dom |
Typ domu jednorodzinny całoroczny |
Kąt nachylenia dachu 25 ° |
Kominek kominek opcjonalnie |
Kubatura 995 m³ |
Rodzaj dachu wielospadowy |
Taras z tarasem |
Powierzchnia dachu 405 m² |
Kąt nachylenia dachu drugiego 15 |
Piwnica bez podpiwniczenia |
Ogrzewanie gaz |
Wysokość budynku 9.28 m |
Kalenica prostopadła do drogi |
Długość działki 26.81 m |
Styl budynku wille i rezydencje |
Pow. użytkowa 241.5 m² |
Kondygnacje piętrowy |
Technologia murowany |
Obiekt dom |
Kąt nachylenia dachu 25 ° |
Kubatura 995 m³ |
Taras z tarasem |
Kąt nachylenia dachu drugiego 15 |
Ogrzewanie gaz |
Kalenica prostopadła do drogi |
Styl budynku wille i rezydencje |
Powierzchnia zabudowy 248.69 m² |
Garaż 2 stanowiska |
Szerokość działki 27.18 m |
Typ domu jednorodzinny całoroczny |
Kominek kominek opcjonalnie |
Rodzaj dachu wielospadowy |
Powierzchnia dachu 405 m² |
Piwnica bez podpiwniczenia |
Wysokość budynku 9.28 m |
Długość działki 26.81 m |
Kupując projekt w technologii murowanej powinieneś budować dom murowany. Zupełna zmiana technologii na szkieletową wymaga przeprojektowania całego budynku ( zmieniają się obciążenia, fundamenty, konstrukcja dachu). Wydamy zgodę na takie przeprojektowanie jednak wiążę się to z dużymi kosztami. Istnieją firmy wykonawcze, które podejmują się zmiany technologii budowy bezpłatnie przy skorzystaniu z ich usług wykonawczych. Zdarza się, że pracownia architektoniczna przygotowuje warianty konkretnego projektu przewidując także inne technologie. Prosimy o sprawdzenie czy istnieje poszukiwana wersja projektu, w zakładce - warianty projektu.
Zwężenie/poszerzenie budynku* to nic innego jak zmiana w projekcie. Istnieje możliwość wprowadzenia takich zmian, we własnym zakresie (podczas adaptacji). *zwężenie/poszerzenie budynku nie powinno stanowić problemu w przypadku domów o dachu dwuspadowym jeśli wiąże się to z wydłużeniem/skróceniem kalenicy dachu.
Poznaj praktyczne porady ekspertów, które ułatwią Ci każdy etap budowy i od wyboru wymarzonego domu po jego wykończenie. Zyskaj pewność, że podejmujesz najlepsze decyzje dzięki sprawdzonym wskazówkom od specjalistów z planz.pl
bezpłatnie (0zł)
przelew zwykły / PayNow
przy odbiorze
2-4 dni robocze (jeśli projekt nie jest koncepcją)
Wybierz wygodny dla Ciebie czas kontaktu z naszym Doradcą Technicznym.