Morska bryza - M223



Zawartość projektu
Wypełnij formularz i otrzymaj rysunki w pdf z dokładnymi wymiarami budynku i pomieszczeń (długość, szerokość, wysokość) dla projektu UA275
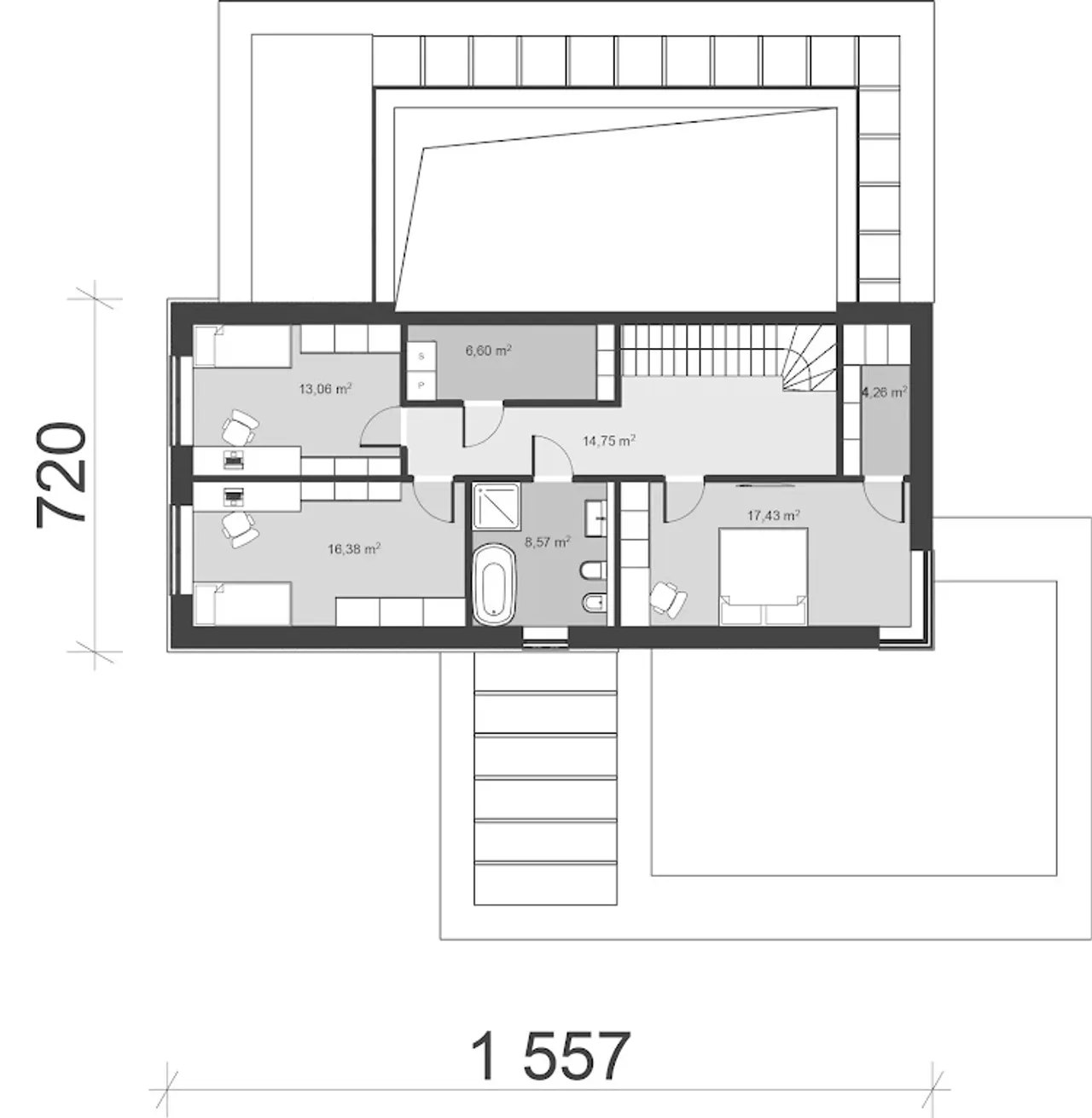
Pow. użytkowa 176 m² |
Powierzchnia zabudowy 186.27 m² |
Kondygnacje piętrowy |
Garaż 2 stanowiska |
Technologia murowany |
Szerokość działki 25.69 m |
Obiekt dom |
Typ domu jednorodzinny całoroczny |
Powierzchnia dachu 190 m² |
Kalenica bez znaczenia |
Piwnica bez podpiwniczenia |
Styl budynku nowoczesny |
Wysokość budynku 7.47 m |
Długość działki 25.59 m |
Kąt nachylenia dachu 1 ° |
Rodzaj dachu płaski |
Kubatura 1150 m³ |
Kominek kominek opcjonalnie |
Pow. użytkowa 176 m² |
Kondygnacje piętrowy |
Technologia murowany |
Obiekt dom |
Powierzchnia dachu 190 m² |
Piwnica bez podpiwniczenia |
Wysokość budynku 7.47 m |
Kąt nachylenia dachu 1 ° |
Kubatura 1150 m³ |
Powierzchnia zabudowy 186.27 m² |
Garaż 2 stanowiska |
Szerokość działki 25.69 m |
Typ domu jednorodzinny całoroczny |
Kalenica bez znaczenia |
Styl budynku nowoczesny |
Długość działki 25.59 m |
Rodzaj dachu płaski |
Kominek kominek opcjonalnie |
Kupując projekt w technologii murowanej powinieneś budować dom murowany. Zupełna zmiana technologii na szkieletową wymaga przeprojektowania całego budynku ( zmieniają się obciążenia, fundamenty, konstrukcja dachu). Wydamy zgodę na takie przeprojektowanie jednak wiążę się to z dużymi kosztami. Istnieją firmy wykonawcze, które podejmują się zmiany technologii budowy bezpłatnie przy skorzystaniu z ich usług wykonawczych. Zdarza się, że pracownia architektoniczna przygotowuje warianty konkretnego projektu przewidując także inne technologie. Prosimy o sprawdzenie czy istnieje poszukiwana wersja projektu, w zakładce - warianty projektu.
Zwężenie/poszerzenie budynku* to nic innego jak zmiana w projekcie. Istnieje możliwość wprowadzenia takich zmian, we własnym zakresie (podczas adaptacji). *zwężenie/poszerzenie budynku nie powinno stanowić problemu w przypadku domów o dachu dwuspadowym jeśli wiąże się to z wydłużeniem/skróceniem kalenicy dachu.
Poznaj praktyczne porady ekspertów, które ułatwią Ci każdy etap budowy i od wyboru wymarzonego domu po jego wykończenie. Zyskaj pewność, że podejmujesz najlepsze decyzje dzięki sprawdzonym wskazówkom od specjalistów z planz.pl
bezpłatnie (0zł)
przelew zwykły / PayNow
przy odbiorze
2-4 dni robocze (jeśli projekt nie jest koncepcją)
Wybierz wygodny dla Ciebie czas kontaktu z naszym Doradcą Technicznym.