uA23



Zawartość projektu
1. Wiatrołap | 8,64 m² |
2. Spiżarnia | 2,96 m² |
3. Kuchnia | 13,10 m² |
4. Jadalnia | 15,56 m² |
5. Pokój dzienny | 30,88 m² |
6. Gabinet | 10,10 m² |
7. łazienka | 4,60 m² |
8. Korytarz | 4,02 m² |
9. Hol | 6,85 m² |
10. Garderoba | 5,02 m² |
11. Pom. gospodarcze | 14,32 m² |
12. Garaż | 42,36 m² |
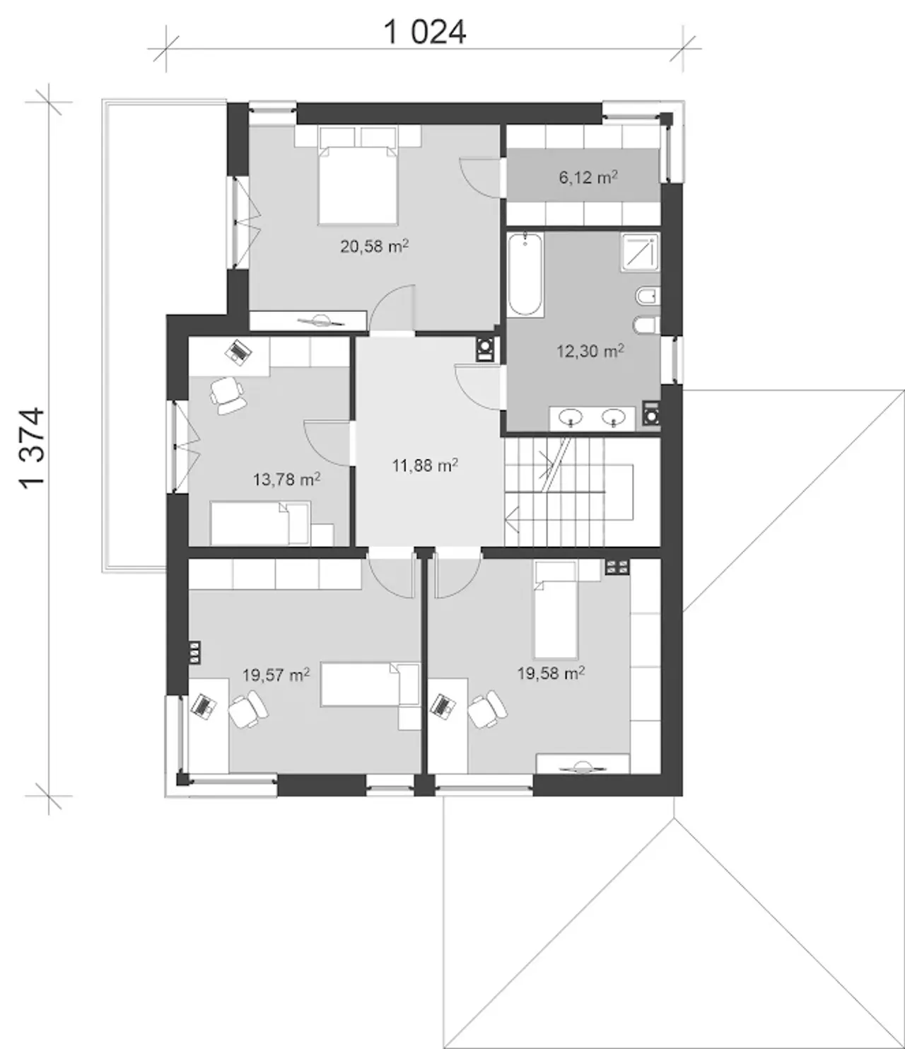
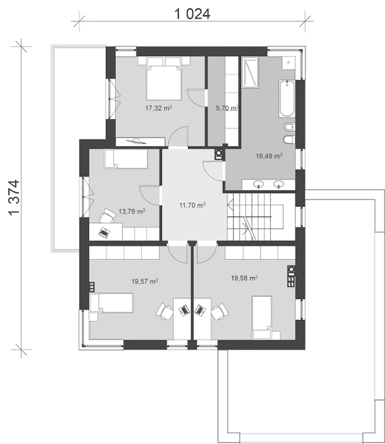
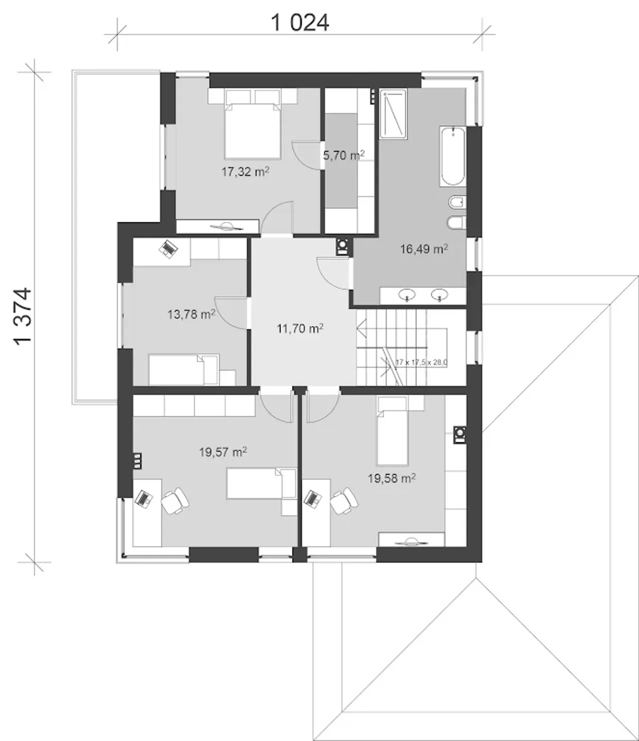
1. Pokój 1 | 19,58 m² |
2. Pokój 2 | 19,57 m² |
3. Pokój 3 | 13,78 m² |
4. Sypialnia | 17,32 m² |
5. Garderoba | 5,70 m² |
6. łazienka | 16,49 m² |
7. Korytarz | 11,70 m² |
Wypełnij formularz i otrzymaj rysunki w pdf z dokładnymi wymiarami budynku i pomieszczeń (długość, szerokość, wysokość) dla projektu uA23v2
Ilość pokoi 6 |
Pow. użytkowa 205.8 m² |
Powierzchnia zabudowy 198.41 m² |
Kondygnacje piętrowy |
Garaż 2 stanowiska |
Technologia murowany |
Szerokość działki 24.59 m |
Obiekt dom |
Typ domu jednorodzinny całoroczny |
Kubatura 1050 m³ |
Rodzaj garażu z przodu |
Powierzchnia dachu 195 m² |
Rodzaj dachu wielospadowy |
Długość działki 25.94 m |
Ogrzewanie gaz |
Liczba łazieniek 2 |
Wysokość budynku 8.98 m |
Przechowywanie w kuchni spiżarnia |
Kominek kominek w projekcie |
Styl budynku wille i rezydencje |
Kotłownia duża kotłownia |
Szerokość budynku 15.04 m |
Taras z tarasem |
Kąt nachylenia dachu 25 ° |
Kalenica równoległa do drogi |
Długość budynku 17.94 m |
Piwnica bez podpiwniczenia |
Funkcje dodatkowe z dwoma wejściami |
Koszty budowy 550-600 tys., tylko z kosztorysem |
Ilość pokoi 6 |
Powierzchnia zabudowy 198.41 m² |
Garaż 2 stanowiska |
Szerokość działki 24.59 m |
Typ domu jednorodzinny całoroczny |
Rodzaj garażu z przodu |
Rodzaj dachu wielospadowy |
Ogrzewanie gaz |
Wysokość budynku 8.98 m |
Kominek kominek w projekcie |
Kotłownia duża kotłownia |
Taras z tarasem |
Kalenica równoległa do drogi |
Piwnica bez podpiwniczenia |
Koszty budowy 550-600 tys., tylko z kosztorysem |
Pow. użytkowa 205.8 m² |
Kondygnacje piętrowy |
Technologia murowany |
Obiekt dom |
Kubatura 1050 m³ |
Powierzchnia dachu 195 m² |
Długość działki 25.94 m |
Liczba łazieniek 2 |
Przechowywanie w kuchni spiżarnia |
Styl budynku wille i rezydencje |
Szerokość budynku 15.04 m |
Kąt nachylenia dachu 25 ° |
Długość budynku 17.94 m |
Funkcje dodatkowe z dwoma wejściami |
Kupując projekt w technologii murowanej powinieneś budować dom murowany. Zupełna zmiana technologii na szkieletową wymaga przeprojektowania całego budynku ( zmieniają się obciążenia, fundamenty, konstrukcja dachu). Wydamy zgodę na takie przeprojektowanie jednak wiążę się to z dużymi kosztami. Istnieją firmy wykonawcze, które podejmują się zmiany technologii budowy bezpłatnie przy skorzystaniu z ich usług wykonawczych. Zdarza się, że pracownia architektoniczna przygotowuje warianty konkretnego projektu przewidując także inne technologie. Prosimy o sprawdzenie czy istnieje poszukiwana wersja projektu, w zakładce - warianty projektu.
Zwężenie/poszerzenie budynku* to nic innego jak zmiana w projekcie. Istnieje możliwość wprowadzenia takich zmian, we własnym zakresie (podczas adaptacji). *zwężenie/poszerzenie budynku nie powinno stanowić problemu w przypadku domów o dachu dwuspadowym jeśli wiąże się to z wydłużeniem/skróceniem kalenicy dachu.
Poznaj praktyczne porady ekspertów, które ułatwią Ci każdy etap budowy i od wyboru wymarzonego domu po jego wykończenie. Zyskaj pewność, że podejmujesz najlepsze decyzje dzięki sprawdzonym wskazówkom od specjalistów z planz.pl
Wycena szacunkowa, w kwotach netto, nie zawiera instalacji.
bezpłatnie (0zł)
przelew zwykły / PayNow
przy odbiorze
2-4 dni robocze (jeśli projekt nie jest koncepcją)
Wybierz wygodny dla Ciebie czas kontaktu z naszym Doradcą Technicznym.