D186 - wersja drewniana



Zawartość projektu
1. Wiatrołap | 4,64 m² |
2. Korytarz | 9,23 m² |
3. Kuchnia | 9,01 m² |
4. Jadalnia | 9,22 m² |
5. Pokój dzienny | 30,78 m² |
6. łazienka | 5,12 m² |
7. Gabinet | 5,12 m² |
8. Spiżarnia | 4,36 m² |
9. Pom. gospodarcze | 3,92 m² |
10. Garaż | 40,45 m² |
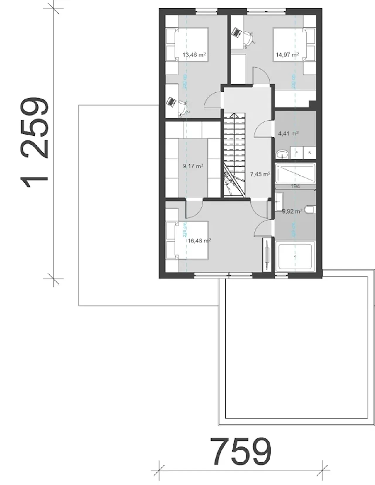
1. Korytarz | 7,45 m² |
2. Pokój 1 | 11,66 m² |
3. Pokój 2 | 13,34 m² |
4. Pralnia | 3,39 m² |
5. łazienka | 7,62 m² |
6. Sypialnia | 14,98 m² |
7. Garderoba | 7,57 m² |
Wypełnij formularz i otrzymaj rysunki w pdf z dokładnymi wymiarami budynku i pomieszczeń (długość, szerokość, wysokość) dla projektu uA164
Pow. użytkowa 149.7 m² |
Ilość pokoi 5 |
Powierzchnia zabudowy 159.38 m² |
Kondygnacje parterowy+poddasze |
Garaż 2 stanowiska |
Technologia szkielet/drewniany |
Szerokość działki 20.44 m |
Obiekt dom |
Typ domu jednorodzinny całoroczny |
Strop drewniany |
Kubatura 735 m³ |
Rodzaj garażu z przodu |
Kalenica prostopadła do drogi |
Powierzchnia dachu 203 m² |
Rodzaj dachu dwuspadowy |
Długość działki 28.24 m |
Ogrzewanie pompa ciepła |
Funkcje dodatkowe z pralnią |
Wysokość budynku 7.86 m |
Kąt nachylenia dachu drugiego 1 |
Liczba łazieniek 3 |
Styl budynku nowoczesny |
Kominek kominek w projekcie |
Szerokość budynku 13.7 m |
Taras z tarasem |
Kąt nachylenia dachu 35 ° |
Długość budynku 19.39 m |
Piwnica bez podpiwniczenia |
Koszty budowy 450-500 tys., tylko z kosztorysem |
Pow. użytkowa 149.7 m² |
Powierzchnia zabudowy 159.38 m² |
Garaż 2 stanowiska |
Szerokość działki 20.44 m |
Typ domu jednorodzinny całoroczny |
Kubatura 735 m³ |
Kalenica prostopadła do drogi |
Rodzaj dachu dwuspadowy |
Ogrzewanie pompa ciepła |
Wysokość budynku 7.86 m |
Liczba łazieniek 3 |
Kominek kominek w projekcie |
Taras z tarasem |
Długość budynku 19.39 m |
Koszty budowy 450-500 tys., tylko z kosztorysem |
Ilość pokoi 5 |
Kondygnacje parterowy+poddasze |
Technologia szkielet/drewniany |
Obiekt dom |
Strop drewniany |
Rodzaj garażu z przodu |
Powierzchnia dachu 203 m² |
Długość działki 28.24 m |
Funkcje dodatkowe z pralnią |
Kąt nachylenia dachu drugiego 1 |
Styl budynku nowoczesny |
Szerokość budynku 13.7 m |
Kąt nachylenia dachu 35 ° |
Piwnica bez podpiwniczenia |
Kupując projekt w technologii murowanej powinieneś budować dom murowany. Zupełna zmiana technologii na szkieletową wymaga przeprojektowania całego budynku ( zmieniają się obciążenia, fundamenty, konstrukcja dachu). Wydamy zgodę na takie przeprojektowanie jednak wiążę się to z dużymi kosztami. Istnieją firmy wykonawcze, które podejmują się zmiany technologii budowy bezpłatnie przy skorzystaniu z ich usług wykonawczych. Zdarza się, że pracownia architektoniczna przygotowuje warianty konkretnego projektu przewidując także inne technologie. Prosimy o sprawdzenie czy istnieje poszukiwana wersja projektu, w zakładce - warianty projektu.
Zwężenie/poszerzenie budynku* to nic innego jak zmiana w projekcie. Istnieje możliwość wprowadzenia takich zmian, we własnym zakresie (podczas adaptacji). *zwężenie/poszerzenie budynku nie powinno stanowić problemu w przypadku domów o dachu dwuspadowym jeśli wiąże się to z wydłużeniem/skróceniem kalenicy dachu.
Poznaj praktyczne porady ekspertów, które ułatwią Ci każdy etap budowy i od wyboru wymarzonego domu po jego wykończenie. Zyskaj pewność, że podejmujesz najlepsze decyzje dzięki sprawdzonym wskazówkom od specjalistów z planz.pl
Wycena szacunkowa, w kwotach netto, nie zawiera instalacji.
bezpłatnie (0zł)
przelew zwykły / PayNow
przy odbiorze
2-4 dni robocze (jeśli projekt nie jest koncepcją)
Wybierz wygodny dla Ciebie czas kontaktu z naszym Doradcą Technicznym.