TK35



Zawartość projektu
Wypełnij formularz i otrzymaj rysunki w pdf z dokładnymi wymiarami budynku i pomieszczeń (długość, szerokość, wysokość) dla projektu UA161
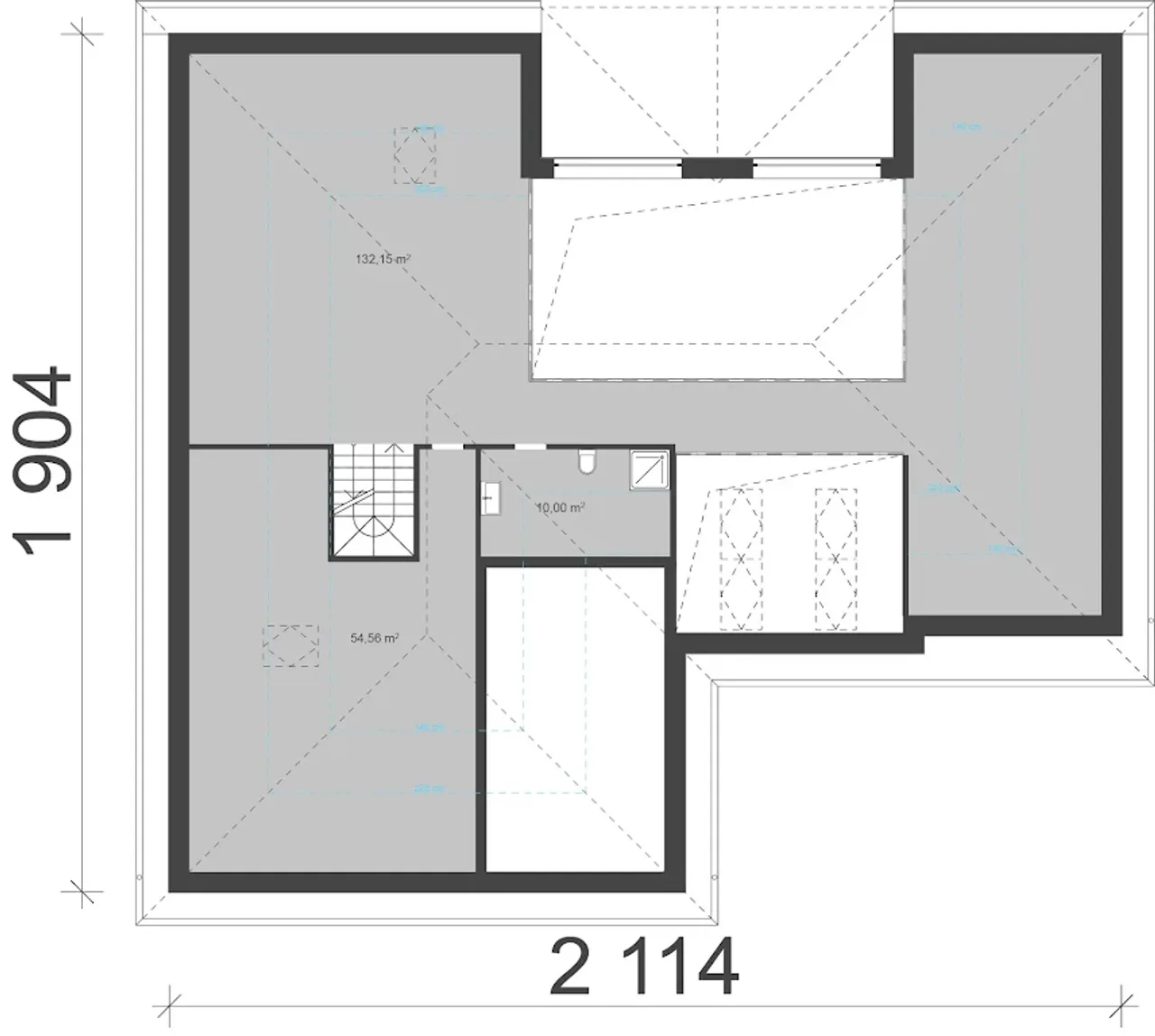
Pow. użytkowa 202.28 m² |
Powierzchnia zabudowy 299.37 m² |
Kondygnacje parterowy |
Garaż 2 stanowiska |
Technologia murowany |
Szerokość działki 29.14 m |
Obiekt dom |
Typ domu jednorodzinny całoroczny |
Rodzaj dachu wielospadowy |
Kominek kominek opcjonalnie |
Kubatura 882 m³ |
Taras z tarasem |
Ogrzewanie elektryczne |
Powierzchnia dachu 454 m² |
Strop żelbetowy |
Piwnica bez podpiwniczenia |
Wysokość budynku 7.82 m |
Kalenica równoległa do drogi |
Styl budynku wille i rezydencje |
Długość działki 27.04 m |
Pow. użytkowa 202.28 m² |
Kondygnacje parterowy |
Technologia murowany |
Obiekt dom |
Rodzaj dachu wielospadowy |
Kubatura 882 m³ |
Ogrzewanie elektryczne |
Strop żelbetowy |
Wysokość budynku 7.82 m |
Styl budynku wille i rezydencje |
Powierzchnia zabudowy 299.37 m² |
Garaż 2 stanowiska |
Szerokość działki 29.14 m |
Typ domu jednorodzinny całoroczny |
Kominek kominek opcjonalnie |
Taras z tarasem |
Powierzchnia dachu 454 m² |
Piwnica bez podpiwniczenia |
Kalenica równoległa do drogi |
Długość działki 27.04 m |
Kupując projekt w technologii murowanej powinieneś budować dom murowany. Zupełna zmiana technologii na szkieletową wymaga przeprojektowania całego budynku ( zmieniają się obciążenia, fundamenty, konstrukcja dachu). Wydamy zgodę na takie przeprojektowanie jednak wiążę się to z dużymi kosztami. Istnieją firmy wykonawcze, które podejmują się zmiany technologii budowy bezpłatnie przy skorzystaniu z ich usług wykonawczych. Zdarza się, że pracownia architektoniczna przygotowuje warianty konkretnego projektu przewidując także inne technologie. Prosimy o sprawdzenie czy istnieje poszukiwana wersja projektu, w zakładce - warianty projektu.
Zwężenie/poszerzenie budynku* to nic innego jak zmiana w projekcie. Istnieje możliwość wprowadzenia takich zmian, we własnym zakresie (podczas adaptacji). *zwężenie/poszerzenie budynku nie powinno stanowić problemu w przypadku domów o dachu dwuspadowym jeśli wiąże się to z wydłużeniem/skróceniem kalenicy dachu.
Poznaj praktyczne porady ekspertów, które ułatwią Ci każdy etap budowy i od wyboru wymarzonego domu po jego wykończenie. Zyskaj pewność, że podejmujesz najlepsze decyzje dzięki sprawdzonym wskazówkom od specjalistów z planz.pl
bezpłatnie (0zł)
przelew zwykły / PayNow
przy odbiorze
2-4 dni robocze (jeśli projekt nie jest koncepcją)
Wybierz wygodny dla Ciebie czas kontaktu z naszym Doradcą Technicznym.