uA159



Zawartość projektu
1. Wiatrołap | 7,26 m² |
2. Spiżarnia | 2,73 m² |
3. Kuchnia | 11,82 m² |
4. Pokój dzienny + jadalnia | 42,60 m² |
5. Korytarz 1 | 3,25 m² |
6. łazienka | 3,79 m² |
7. Korytarz 2 | 1,81 m² |
8. Pom. gospodarcze 1 | 1,81 m² |
9. Pom. gospodarcze 2 | 21,08 m² |
10. Gabinet | 11,49 m² |
11. Garaż | 48,28 m² |
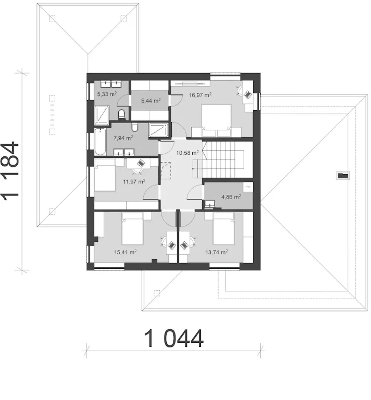
1. Korytarz | 10,58 m² |
2. Pralnia | 4,86 m² |
3. Pokój 3 | 13,74 m² |
4. Pokój 2 | 15,41 m² |
5. Pokój 1 | 11,97 m² |
6. łazienka 1 | 7,94 m² |
7. łazienka 2 | 5,33 m² |
8. Garderoba | 5,44 m² |
9. Sypialnia | 16,97 m² |
Wypełnij formularz i otrzymaj rysunki w pdf z dokładnymi wymiarami budynku i pomieszczeń (długość, szerokość, wysokość) dla projektu UA159v4
Ilość pokoi 6 |
Pow. użytkowa 176.99 m² |
Powierzchnia zabudowy 193.71 m² |
Kondygnacje piętrowy |
Garaż 2 stanowiska |
Technologia murowany |
Szerokość działki 24.14 m |
Obiekt dom |
Typ domu jednorodzinny całoroczny |
Kalenica prostopadła do drogi |
Kubatura 1134 m³ |
Rodzaj garażu w bryle |
Funkcje dodatkowe z pralnią |
Powierzchnia dachu 340 m² |
Rodzaj dachu wielospadowy |
Długość działki 22.95 m |
Ogrzewanie pompa ciepła |
Wysokość budynku 9.02 m |
Przechowywanie w kuchni spiżarnia |
Liczba łazieniek 3 |
Styl budynku nowoczesny |
Kominek kominek opcjonalnie |
Szerokość budynku 16.14 m |
Taras z tarasem |
Kąt nachylenia dachu 22 ° |
Długość budynku 13.54 m |
Piwnica bez podpiwniczenia |
Koszty budowy 450-500 tys., tylko z kosztorysem |
Ilość pokoi 6 |
Powierzchnia zabudowy 193.71 m² |
Garaż 2 stanowiska |
Szerokość działki 24.14 m |
Typ domu jednorodzinny całoroczny |
Kubatura 1134 m³ |
Funkcje dodatkowe z pralnią |
Rodzaj dachu wielospadowy |
Ogrzewanie pompa ciepła |
Przechowywanie w kuchni spiżarnia |
Styl budynku nowoczesny |
Szerokość budynku 16.14 m |
Kąt nachylenia dachu 22 ° |
Piwnica bez podpiwniczenia |
Pow. użytkowa 176.99 m² |
Kondygnacje piętrowy |
Technologia murowany |
Obiekt dom |
Kalenica prostopadła do drogi |
Rodzaj garażu w bryle |
Powierzchnia dachu 340 m² |
Długość działki 22.95 m |
Wysokość budynku 9.02 m |
Liczba łazieniek 3 |
Kominek kominek opcjonalnie |
Taras z tarasem |
Długość budynku 13.54 m |
Koszty budowy 450-500 tys., tylko z kosztorysem |
Kupując projekt w technologii murowanej powinieneś budować dom murowany. Zupełna zmiana technologii na szkieletową wymaga przeprojektowania całego budynku ( zmieniają się obciążenia, fundamenty, konstrukcja dachu). Wydamy zgodę na takie przeprojektowanie jednak wiążę się to z dużymi kosztami. Istnieją firmy wykonawcze, które podejmują się zmiany technologii budowy bezpłatnie przy skorzystaniu z ich usług wykonawczych. Zdarza się, że pracownia architektoniczna przygotowuje warianty konkretnego projektu przewidując także inne technologie. Prosimy o sprawdzenie czy istnieje poszukiwana wersja projektu, w zakładce - warianty projektu.
Zwężenie/poszerzenie budynku* to nic innego jak zmiana w projekcie. Istnieje możliwość wprowadzenia takich zmian, we własnym zakresie (podczas adaptacji). *zwężenie/poszerzenie budynku nie powinno stanowić problemu w przypadku domów o dachu dwuspadowym jeśli wiąże się to z wydłużeniem/skróceniem kalenicy dachu.
Poznaj praktyczne porady ekspertów, które ułatwią Ci każdy etap budowy i od wyboru wymarzonego domu po jego wykończenie. Zyskaj pewność, że podejmujesz najlepsze decyzje dzięki sprawdzonym wskazówkom od specjalistów z planz.pl
Wycena szacunkowa, w kwotach netto, nie zawiera instalacji.
bezpłatnie (0zł)
przelew zwykły / PayNow
przy odbiorze
2-4 dni robocze (jeśli projekt nie jest koncepcją)
Wybierz wygodny dla Ciebie czas kontaktu z naszym Doradcą Technicznym.