L-37 szkieletowy



Zawartość projektu
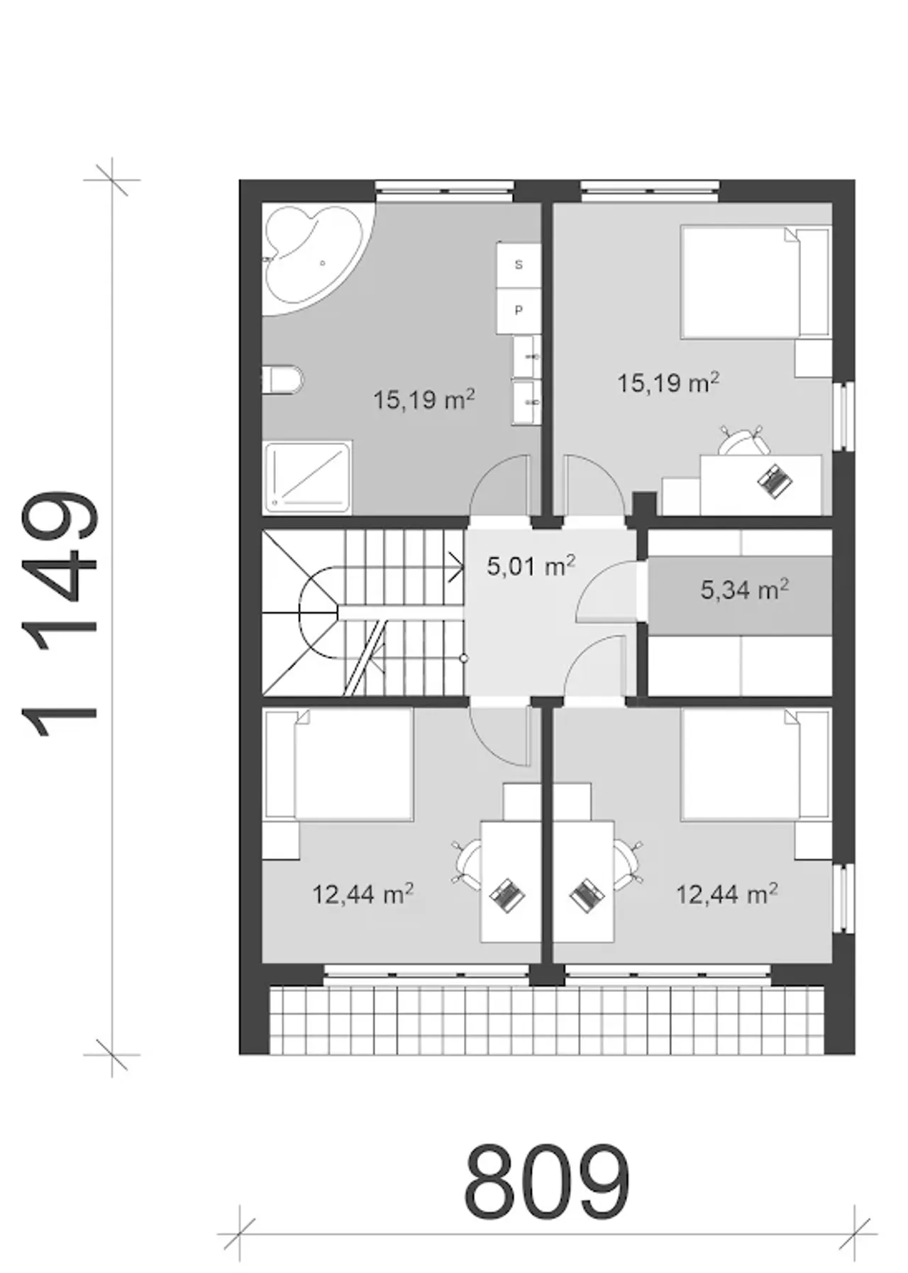
Wypełnij formularz i otrzymaj rysunki w pdf z dokładnymi wymiarami budynku i pomieszczeń (długość, szerokość, wysokość) dla projektu UA112
Ilość pokoi 5 |
Pow. użytkowa 126.17 m² |
Powierzchnia zabudowy 86.46 m² |
Kondygnacje piętrowy |
Garaż bez garażu |
Technologia szkielet/drewniany |
Szerokość działki 15.09 m |
Obiekt dom |
Typ domu jednorodzinny całoroczny |
Powierzchnia dachu 110 m² |
Rodzaj dachu dwuspadowy |
Długość działki 19.49 m |
Ogrzewanie pompa ciepła |
Wysokość budynku 8.42 m |
Bryła budynku prosta bryła |
Liczba łazieniek 2 |
Szerokość budynku 8.09 m |
Styl budynku nowoczesny |
Kominek kominek w projekcie |
Kąt nachylenia dachu 25 ° |
Strop drewniany |
Długość budynku 11.49 m |
Piwnica bez podpiwniczenia |
Kalenica prostopadła do drogi |
Kubatura 780 m³ |
Koszty budowy 300-350 tys., tylko z kosztorysem |
Ilość pokoi 5 |
Powierzchnia zabudowy 86.46 m² |
Garaż bez garażu |
Szerokość działki 15.09 m |
Typ domu jednorodzinny całoroczny |
Rodzaj dachu dwuspadowy |
Ogrzewanie pompa ciepła |
Bryła budynku prosta bryła |
Szerokość budynku 8.09 m |
Kominek kominek w projekcie |
Strop drewniany |
Piwnica bez podpiwniczenia |
Kubatura 780 m³ |
Pow. użytkowa 126.17 m² |
Kondygnacje piętrowy |
Technologia szkielet/drewniany |
Obiekt dom |
Powierzchnia dachu 110 m² |
Długość działki 19.49 m |
Wysokość budynku 8.42 m |
Liczba łazieniek 2 |
Styl budynku nowoczesny |
Kąt nachylenia dachu 25 ° |
Długość budynku 11.49 m |
Kalenica prostopadła do drogi |
Koszty budowy 300-350 tys., tylko z kosztorysem |
Kupując projekt w technologii murowanej powinieneś budować dom murowany. Zupełna zmiana technologii na szkieletową wymaga przeprojektowania całego budynku ( zmieniają się obciążenia, fundamenty, konstrukcja dachu). Wydamy zgodę na takie przeprojektowanie jednak wiążę się to z dużymi kosztami. Istnieją firmy wykonawcze, które podejmują się zmiany technologii budowy bezpłatnie przy skorzystaniu z ich usług wykonawczych. Zdarza się, że pracownia architektoniczna przygotowuje warianty konkretnego projektu przewidując także inne technologie. Prosimy o sprawdzenie czy istnieje poszukiwana wersja projektu, w zakładce - warianty projektu.
Zwężenie/poszerzenie budynku* to nic innego jak zmiana w projekcie. Istnieje możliwość wprowadzenia takich zmian, we własnym zakresie (podczas adaptacji). *zwężenie/poszerzenie budynku nie powinno stanowić problemu w przypadku domów o dachu dwuspadowym jeśli wiąże się to z wydłużeniem/skróceniem kalenicy dachu.
Poznaj praktyczne porady ekspertów, które ułatwią Ci każdy etap budowy i od wyboru wymarzonego domu po jego wykończenie. Zyskaj pewność, że podejmujesz najlepsze decyzje dzięki sprawdzonym wskazówkom od specjalistów z planz.pl
Wycena szacunkowa, w kwotach netto, nie zawiera instalacji.
bezpłatnie (0zł)
przelew zwykły / PayNow
przy odbiorze
2-4 dni robocze (jeśli projekt nie jest koncepcją)
Wybierz wygodny dla Ciebie czas kontaktu z naszym Doradcą Technicznym.