22 299 20 00 (pn-nd 9.30 do 19.30)

Gotowy projekt domu UA104v1 (ID: 26832)

5538 2026-01-18
UA104v1 - 202.33m²
Dostawa w ciągu 3-10 dni
Gwarantujemy najniższą cenę
5538 zł
(5830 zł brutto)
TANIEJ 292 zł do 12.01.2026
Najniższa cena z 30 dni przed obniżką: 5538 zł
5538 2026-01-18
W cenie projektu:
📣 GRATIS: WIERTARKA UDAROWA
  • Tablica + dziennik budowy
  • 16 projektów ogrodowych
  • Darmowa wysyłka (kurier, paczkomat, pobranie)
  • 30 dni na zwrot
  • Pozwolenie na zmiany z podpisem i pieczęcią autora
  • GRATIS: Wiertarka Udarowa
22 299 20 00 (pn-nd 9.30 do 19.30)


Zawartość projektu

3 egzemplarze projektu archtektoniczno budowlanego + 3 egzemplarze projektu technicznego.
 
Dokumentacja projektowa zgodnie z nowymi przepisami WT2021 dostarczana jest w formie: 3+3 egzemplarze.
Czyli w dwóch częściach zawierających:
I - projekt architektoniczno-budowlany złożony z opisu technicznego oraz rysunków;
II - projekt techniczny, obejmujący: konstrukcję, instalacje (wodno-kanalizacyjną, elektryczną, sanitarną) ze szczegółowym opisem i rysunkami oraz charakterystykę energetyczną.
 
W części architektonicznej znajdują się:
- opisy
- rysunki techniczne
 
W częsci technicznej znajdują się:
- część konstrukcyjna
- część instalacyjna (instalacje elektryczne, sanitarne)
- charakterystyka energetyczna
 
Zawartość projektu nie dotyczy budynków gospodarczych, garaży oraz obiektów malej architektury.
Zawartość projektów bez rozrysowanej na rzucie kotłowni/łazienki/kuchni może nie obejmować schematów c.o. i wodno-kanalizacyjnych. W przypadku obiektów małej architektury - również może nie zawierać schematów instalacji elektrycznej.

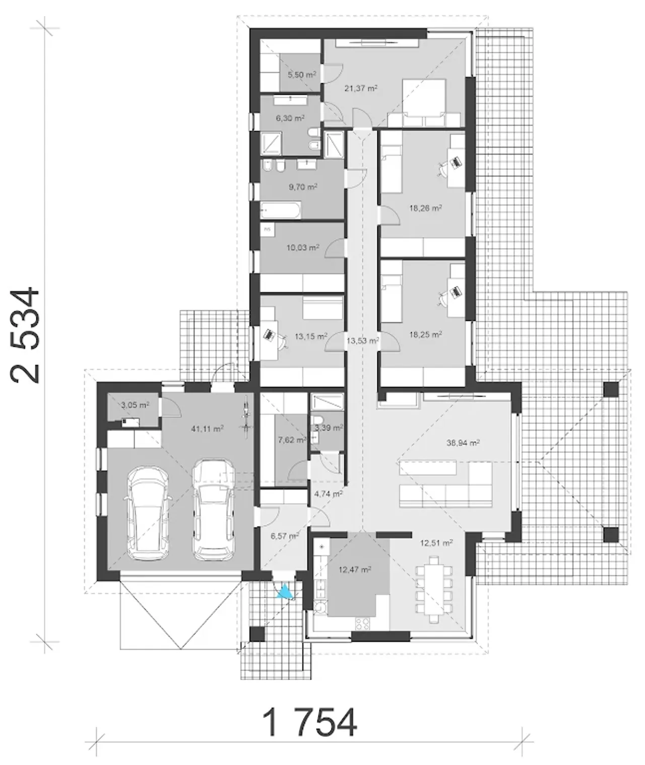
Rzuty gotowego projektu domu UA104v1

1. Wiatrołap 6,57 m²
2. Korytarz 1 4,74 m²
3. Kuchnia 12,47 m²
4. Jadalnia 12,51 m²
5. Pokój dzienny 38,94 m²
6. Pokój 1 18,25 m²
7. Pokój 2 18,26 m²
8. Sypialnia 21,37 m²
9. Garderoba 1 5,50 m²
10. łazienka 1 6,30 m²
11. łazienka 2 9,70 m²
12. Pralnia 10,03 m²
13. Gabinet 13,15 m²
14. Korytarz 2 13,53 m²
15. Wc 3,39 m²
16. Garderoba 2 7,62 m²
17. Pom. gospodarcze 3,05 m²
18. Garaż 41,11 m²

Zapoznaj się ze szczegółami projektu - zamów bezpłatne rysunki do: UA104v1

Wypełnij formularz i otrzymaj na podany adres e-mail rysunki w pdf z dokładnymi wymiarami budynku i pomieszczeń (długość, szerokość, wysokość) dla projektu UA104v1

Parametry Techniczne gotowego projektu domu UA104v1

Pow. użytkowa 202.33 m²
Ilość pokoi 5
Powierzchnia zabudowy 295.75 m²
Kondygnacje parterowy
Garaż 2 stanowiska
Technologia murowany
Szerokość działki 28.54 m
Obiekt dom
Typ domu jednorodzinny całoroczny
Piwnica bez podpiwniczenia
Kalenica bez znaczenia
Kubatura 998 m³
Rodzaj garażu przyklejony
Powierzchnia dachu 415 m²
Rodzaj dachu wielospadowy
Długość działki 33.34 m
Ogrzewanie gaz
Funkcje dodatkowe z pralnią
Wysokość budynku 5.72 m
Liczba łazieniek 2
Styl budynku wille i rezydencje
Kominek kominek w projekcie
Szerokość budynku 17.54 m
Taras z tarasem
Kąt nachylenia dachu 25 °
Strop żelbetowy
Długość budynku 25.34 m
Koszty budowy 550-600 tys., tylko z kosztorysem

Energia i ogrzewanie gotowego projektu domu UA104v1

Źródło ogrzewania:
gaz
Możliwość dokupienia dodatku zmieniającego źródło ciepła:
- Aneks na paliwo stałe
- Pompa ciepła
Dodatek dostępny w formularzu zamówienia
Wentylacja: Mechaniczna nawiewno-wywiewna z rekuperacją
Do projektu dostaniesz BONUS:
Ogrzewanie podłogowe w całym domu lub wybranych pomieszczeniach (tzw. zimnych). Szczegóły rozwiązania ustalisz z nami telefonicznie lub mailowo.

Nasze prawdziwe opinie z Google

Opis projektu domu UA104v1

Technologia wykonania:

  • Fundamenty: bloczki betonowe, lany beton.
  • Ściany: gazobeton, silikaty, ceramika.
  • Strop: żelbetowy.
  • Dach: tradycyjna więźba, dachówka, blacha.
  • Ogrzewanie: gaz, podłogówka.
  • Wentylacja: mechaniczna.

Częste pytania

Czy projekty z Planz.pl są kompletne?

Tak. Projekty dostępne na Planz.pl zawierają pełną dokumentację potrzebną do uzyskania pozwolenia na budowę i stanowią gwarancję sprawnej realizacji budowy.

Jesteśmy oficjalnym partnerem ponad 50 pracowni architektonicznych z całej Polski - dlatego każdy projekt pochodzi wyłącznie od autorów zrzeszonych w Izbie Architektów RP. 

Planz.pl to polska firma działającą na rynku od 15 lat. Mamy tysiące zadowolonych klientów, doskonałe opinie i oferujemy wsparcie również po zakupie, doradzamy, pomagamy w adaptacji i pozostajemy w kontakcie na każdym etapie inwestycji.

Dodatkowo do każdego projektu dodajemy tablicę informacyjną, dziennik budowy oraz 16 projektów elektronicznych drewnianej architektury ogrodowej. A dzięki naszej współpracy z producentami sprzętu elektrycznego, oferujemy możliwość otrzymania np. Wiertarki udarowej w formie atrakcyjnego gratisu.

Wybierając Planz.pl, otrzymujesz ten sam oryginalny projekt od autora, wzbogacony o realne dodatki, które ułatwiają rozpoczęcie budowy.

Czy mogę wprowadzić zmiany w projekcie?

Co zrobić gdy wybrany dom nie mieści się na działce?

Jakie zmiany można wprowadzić w projekcie?

Porady ekspertów

Poznaj praktyczne porady ekspertów, które ułatwią Ci każdy etap budowy i od wyboru wymarzonego domu po jego wykończenie. Zyskaj pewność, że podejmujesz najlepsze decyzje dzięki sprawdzonym wskazówkom od specjalistów z planz.pl

Co zawiera projekt

  • ✓ 3 x projekt architektoniczno-budowlany ➞ szczegóły
  • ✓ Projekty techniczne ➞ szczegóły
  • ✓ charakterystyka energetyczna (do projektów domów)
  • ✓ zgoda na zmiany w projekcie ➞ szczegóły
  • ✓ GRATIS: Wiertarka (do projektów w cenie od 3000 zł)
  • ✓ GRATIS: 16 projektów (drewutni, altany i wiaty)
  • ✓ GRATIS: tablica i dziennik budowy
  • ✓ GRATIS: przesyłka kurierska

Dodatki do projektu UA104v1

Dodatki możesz kupić razem z projektem lub dokupić po czasie

[U Architekta] Kosztorys szacunkowy z projektem uA (700 zł)

[U Architekta] Projektowana charakterystyka energetyczna (1000 zł)

[U Architekta] Dodatkowy egzemplarz projektu (1000 zł)

[U Architekta] Analiza dokumentów MPZP lub DoWZ (250 zł)

[U Architekta] Elektroniczna wersja projektu DWG (500 zł)

[U Architekta] Elektroniczna wersja projektu PDF (300 zł)

[U Architekta] Paliwo stałe, kocioł w kotłowni (600 zł)

[U Architekta] Wentylacja mechaniczna z rekuperatorem (1000 zł)

[U Architekta] Projekt Instalacji solarnej (700 zł)

[U Architekta] Pompa ciepła (650 zł)

[U Architekta] Ogrzewanie podłogowe (650 zł)

[U Architekta] Panele fotowoltaiczne (600 zł)

[U Architekta] Projekt instalacji gazowej (600 zł)

[U Architekta] Nawadnianie z wód opadowych (900 zł)

[Planz] Tablica budowlana (0 zł)

[Planz] Dziennik budowy (0 zł)

[Planz] Wiertarka udarowa (0 zł)

[Planz] Zgoda na zmiany w projekcie (0 zł)

[Planz] Projekty architektury ogrodowej (0 zł)

[Planz] Charakterystyka energetyczna, tylko dla domów całorocznych (0 zł)

Wysyłka i płatność za projekt UA104v1

Koszty wysyłki

bezpłatnie (0zł)

Formy płatności

przelew zwykły / PayNow
przy odbiorze

Czas oczekiwania

2-4 dni robocze (jeśli projekt nie jest koncepcją)

 

Wersje gotowego projektu domu UA104v1

Podobne projekty do domu UA104v1

TANIEJ O 248 zł
4950 zł 4702 zł

TK35

powierzchnia 201.76 m²
technologia murowany
stanowisk w garażu 2 stanowiska
kondygnacja parterowy+poddasze
Zobacz projekt

Szacunkowy kosztorys dla projektu UA104v1

Stan surowy zamknięty 424000 zł
Stan surowy zamknięty
Stan deweloperski 556000 zł
Stan deweloperski

Wycena szacunkowa, w kwotach netto, nie zawiera instalacji.

PRACOWNIA: U Architekta