Torina 2M



1. Wiatrołap | 5,75 m² |
2. Hol | 6,18 m² |
3. Kuchnia + spiżarka | 10,65 m² |
4. Salon + jadalnia | 30,19 m² |
5. łazienka | 3,14 m² |
6. Schowek | 1,65 m² |
7. Pokój / gabinet | 11,46 m² |
8. Pom. gospodarcze | 6,51 m² |
9. Garaż | 34,46 m² |
1. Komunikacja | 5,51 m² |
2. Pokój | 11,21 (15,26) m² |
3. Pokój | 11,49 (15,53) m² |
4. Pokój | 14,60 (20,73) m² |
5. łazienka | 9,65 (14,06) m² |
6. Strych | 28,01 (42,37) m² |
Wypełnij formularz i otrzymaj rysunki w pdf z dokładnymi wymiarami budynku i pomieszczeń (długość, szerokość, wysokość) dla projektu Torina Mała 2M
Ilość pokoi 5 |
Pow. użytkowa 127.99 m² |
Powierzchnia zabudowy 145.64 m² |
Kondygnacje parterowy+poddasze |
Garaż 2 stanowiska |
Technologia murowany |
Szerokość działki 22.64 m |
Obiekt dom |
Typ domu jednorodzinny całoroczny |
Długość budynku 9.64 m |
Piwnica bez podpiwniczenia |
Funkcje dodatkowe ze strychem |
Kubatura 536.73 m³ |
Rodzaj garażu przyklejony |
Powierzchnia dachu 257.51 m² |
Rodzaj dachu dwuspadowy |
Długość działki 17.64 m |
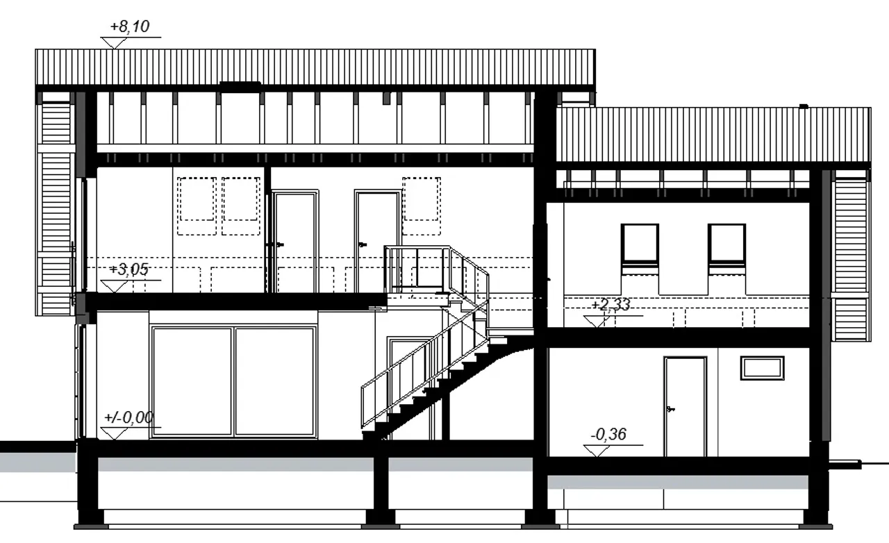
Wysokość budynku 8.57 m |
Bryła budynku prosta bryła |
Liczba łazieniek 2 |
Styl budynku nowoczesny |
Kominek kominek w projekcie |
Strop gęstożebrowy |
Szerokość budynku 15.64 m |
Kotłownia duża kotłownia |
Kąt nachylenia dachu 40 ° |
Kalenica równoległa do drogi |
Koszty budowy 300-350 tys., tylko z kosztorysem |
Ilość pokoi 5 |
Powierzchnia zabudowy 145.64 m² |
Garaż 2 stanowiska |
Szerokość działki 22.64 m |
Typ domu jednorodzinny całoroczny |
Piwnica bez podpiwniczenia |
Kubatura 536.73 m³ |
Powierzchnia dachu 257.51 m² |
Długość działki 17.64 m |
Bryła budynku prosta bryła |
Styl budynku nowoczesny |
Strop gęstożebrowy |
Kotłownia duża kotłownia |
Kalenica równoległa do drogi |
Pow. użytkowa 127.99 m² |
Kondygnacje parterowy+poddasze |
Technologia murowany |
Obiekt dom |
Długość budynku 9.64 m |
Funkcje dodatkowe ze strychem |
Rodzaj garażu przyklejony |
Rodzaj dachu dwuspadowy |
Wysokość budynku 8.57 m |
Liczba łazieniek 2 |
Kominek kominek w projekcie |
Szerokość budynku 15.64 m |
Kąt nachylenia dachu 40 ° |
Koszty budowy 300-350 tys., tylko z kosztorysem |
Kupując projekt w technologii murowanej powinieneś budować dom murowany. Zupełna zmiana technologii na szkieletową wymaga przeprojektowania całego budynku ( zmieniają się obciążenia, fundamenty, konstrukcja dachu). Wydamy zgodę na takie przeprojektowanie jednak wiążę się to z dużymi kosztami. Istnieją firmy wykonawcze, które podejmują się zmiany technologii budowy bezpłatnie przy skorzystaniu z ich usług wykonawczych. Zdarza się, że pracownia architektoniczna przygotowuje warianty konkretnego projektu przewidując także inne technologie. Prosimy o sprawdzenie czy istnieje poszukiwana wersja projektu, w zakładce - warianty projektu.
Zwężenie/poszerzenie budynku* to nic innego jak zmiana w projekcie. Istnieje możliwość wprowadzenia takich zmian, we własnym zakresie (podczas adaptacji). *zwężenie/poszerzenie budynku nie powinno stanowić problemu w przypadku domów o dachu dwuspadowym jeśli wiąże się to z wydłużeniem/skróceniem kalenicy dachu.
Poznaj praktyczne porady ekspertów, które ułatwią Ci każdy etap budowy i od wyboru wymarzonego domu po jego wykończenie. Zyskaj pewność, że podejmujesz najlepsze decyzje dzięki sprawdzonym wskazówkom od specjalistów z planz.pl
Wycena szacunkowa, w kwotach netto, nie zawiera instalacji.
bezpłatnie (0zł)
przelew zwykły / PayNow
przy odbiorze
2-5 dni roboczych
Wybierz wygodny dla Ciebie czas kontaktu z naszym Doradcą Technicznym.