22 299 20 00 (pn-nd 9.30 do 19.30)

Gotowy projekt domu TK 102g2 (ID: 26848)

3847 2026-01-16
TK 102g2 - 133.58m²
Dostawa w ciągu 3-10 dni
Gwarantujemy najniższą cenę
3847 zł
(4050 zł brutto)
TANIEJ 203 zł do 12.01.2026
Najniższa cena z 30 dni przed obniżką: 3847 zł
3847 2026-01-16
W cenie projektu:
📣 GRATIS: WIERTARKA UDAROWA
  • Tablica + dziennik budowy
  • 16 projektów ogrodowych
  • Darmowa wysyłka (kurier, paczkomat, pobranie)
  • 30 dni na zwrot
  • Pozwolenie na zmiany z podpisem i pieczęcią autora
  • GRATIS: Wiertarka Udarowa
22 299 20 00 (pn-nd 9.30 do 19.30)

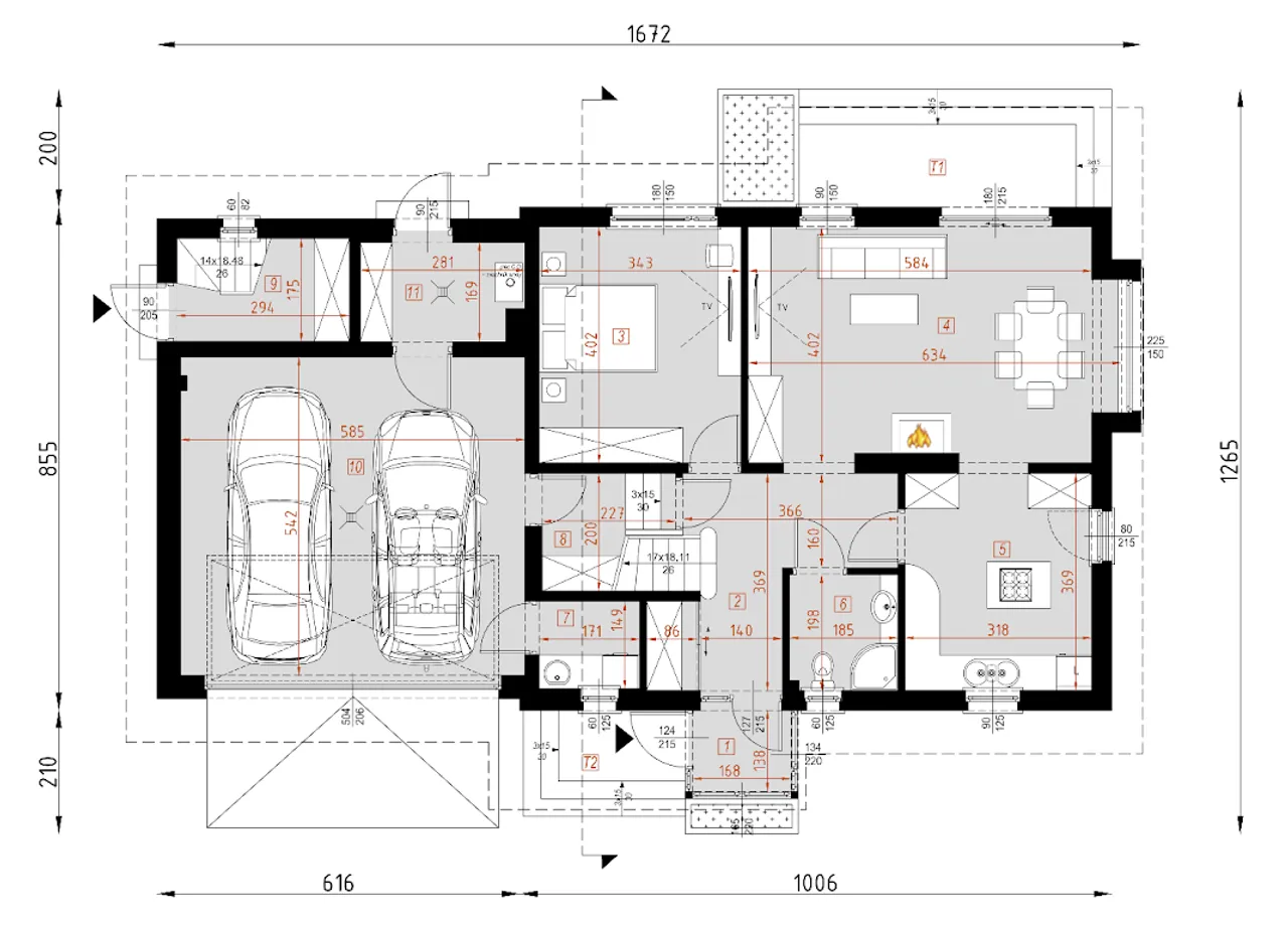
Rzuty gotowego projektu domu TK 102g2

1. Sień 5,11 m²
2. Korytarz 7,57 m²
3. Salon + kuchnia 34,62 m²
4. Wc 3,43 m²
5. Sypialnia 13,10 m²
6. Garderoba 4,32 m²
7. łazienka 5,12 m²
8. Pokój 2 10,34 m²
9. Pokój 1 10,50 m²
10. Pom. techniczne 4,60 m²
11. Garaż 34,86 m²
12. Taras 29,90 m²
13. Taras 28,73 m²
14. Weranda 11,43 m²

Zapoznaj się ze szczegółami projektu - zamów bezpłatne rysunki do: TK 102g2

Wypełnij formularz i otrzymaj na podany adres e-mail rysunki w pdf z dokładnymi wymiarami budynku i pomieszczeń (długość, szerokość, wysokość) dla projektu TK 102g2

Parametry Techniczne gotowego projektu domu TK 102g2

Pow. użytkowa 133.58 m²
Ilość pokoi 4
Powierzchnia zabudowy 166.46 m²
Kondygnacje parterowy
Garaż 2 stanowiska
Technologia szkielet/drewniany
Szerokość działki 18.14 m
Obiekt dom
Typ domu jednorodzinny całoroczny
Wysokość budynku 6.56 m
Styl budynku nowoczesny
Liczba łazieniek 2
Kominek kominek w projekcie
Strop drewniany
Szerokość budynku 10.14 m
Taras z tarasem
Kąt nachylenia dachu 30 °
Kalenica prostopadła do drogi
Długość budynku 19.54 m
Rodzaj garażu z przodu
Piwnica bez podpiwniczenia
Kubatura 343.3 m³
Rodzaj dachu dwuspadowy
Powierzchnia dachu 251.27 m²
Długość działki 27.54 m
Koszty budowy tylko z kosztorysem, 250-300 tys.

Nasze prawdziwe opinie z Google

Opis projektu domu TK 102g2

Technologia wykonania:

  • Elewacje: okładzina drewniana.
  • Strop: drewniany – wiązary dachowe.
  • Ściany wewnetrzne: szkielet drewniany.
  • Ściany zewnętrzne: szkielet drewniany + ocieplenie.
  • Pokrycie dachu: dachówka ceramiczna lub blachodachówka.

Częste pytania

Czy projekty z Planz.pl są kompletne?

Tak. Projekty dostępne na Planz.pl zawierają pełną dokumentację potrzebną do uzyskania pozwolenia na budowę i stanowią gwarancję sprawnej realizacji budowy.

Jesteśmy oficjalnym partnerem ponad 50 pracowni architektonicznych z całej Polski - dlatego każdy projekt pochodzi wyłącznie od autorów zrzeszonych w Izbie Architektów RP. 

Planz.pl to polska firma działającą na rynku od 15 lat. Mamy tysiące zadowolonych klientów, doskonałe opinie i oferujemy wsparcie również po zakupie, doradzamy, pomagamy w adaptacji i pozostajemy w kontakcie na każdym etapie inwestycji.

Dodatkowo do każdego projektu dodajemy tablicę informacyjną, dziennik budowy oraz 16 projektów elektronicznych drewnianej architektury ogrodowej. A dzięki naszej współpracy z producentami sprzętu elektrycznego, oferujemy możliwość otrzymania np. Wiertarki udarowej w formie atrakcyjnego gratisu.

Wybierając Planz.pl, otrzymujesz ten sam oryginalny projekt od autora, wzbogacony o realne dodatki, które ułatwiają rozpoczęcie budowy.

Czy mogę wprowadzić zmiany w projekcie?

Co zrobić gdy wybrany dom nie mieści się na działce?

Jakie zmiany można wprowadzić w projekcie?

Porady ekspertów

Poznaj praktyczne porady ekspertów, które ułatwią Ci każdy etap budowy i od wyboru wymarzonego domu po jego wykończenie. Zyskaj pewność, że podejmujesz najlepsze decyzje dzięki sprawdzonym wskazówkom od specjalistów z planz.pl

Co zawiera projekt

  • ✓ 3 x projekt architektoniczno-budowlany ➞ szczegóły
  • ✓ Projekty techniczne ➞ szczegóły
  • ✓ charakterystyka energetyczna (do projektów domów)
  • ✓ zgoda na zmiany w projekcie ➞ szczegóły
  • ✓ GRATIS: Wiertarka (do projektów w cenie od 3000 zł)
  • ✓ GRATIS: 16 projektów (drewutni, altany i wiaty)
  • ✓ GRATIS: tablica i dziennik budowy
  • ✓ GRATIS: przesyłka kurierska

Dodatki do projektu TK 102g2

Dodatki możesz kupić razem z projektem lub dokupić po czasie

[Architeka] Dodatkowy egzemplarz projektu (650 zł)

[Architeka] Kosztorys aktualny (850 zł)

[Architeka] Alternatywny projekt ogrzewania (850 zł)

[Architeka] Projekt szamba (660 zł)

[Planz] Tablica budowlana (0 zł)

[Planz] Dziennik budowy (0 zł)

[Planz] Wiertarka udarowa (0 zł)

[Planz] Zgoda na zmiany w projekcie (0 zł)

[Planz] Projekty architektury ogrodowej (0 zł)

[Planz] Charakterystyka energetyczna, tylko dla domów całorocznych (0 zł)

Wysyłka i płatność za projekt TK 102g2

Koszty wysyłki

bezpłatnie (0zł)

Formy płatności

przelew zwykły / PayNow
przy odbiorze

Czas oczekiwania

3-5 dni roboczych (jeśli projekt nie wymaga aktualizacji)

Wersje gotowego projektu domu TK 102g2

TANIEJ O 198 zł
3950 zł 3752 zł

TK 102

powierzchnia 98.9 m²
technologia szkielet/drewniany
stanowisk w garażu bez garażu
kondygnacja parterowy
Zobacz projekt

Podobne projekty do domu TK 102g2

TANIEJ O 409 zł
4999 zł 4590 zł

D186 - wersja drewniana

powierzchnia 146.1 m²
technologia szkielet/drewniany
stanowisk w garażu 2 stanowiska
kondygnacja parterowy+poddasze
Zobacz projekt
TANIEJ O 400 zł
4999 zł 4599 zł

D186A - wersja drewniana

powierzchnia 146.96 m²
technologia szkielet/drewniany
stanowisk w garażu 2 stanowiska
kondygnacja parterowy+poddasze
Zobacz projekt

Szacunkowy kosztorys dla projektu TK 102g2

Stan surowy zamknięty 220000 zł
Stan surowy zamknięty
Stan deweloperski 266000 zł
Stan deweloperski

Wycena szacunkowa, w kwotach netto, nie zawiera instalacji.

PRACOWNIA: Architeka