Tamara



Zawartość projektu
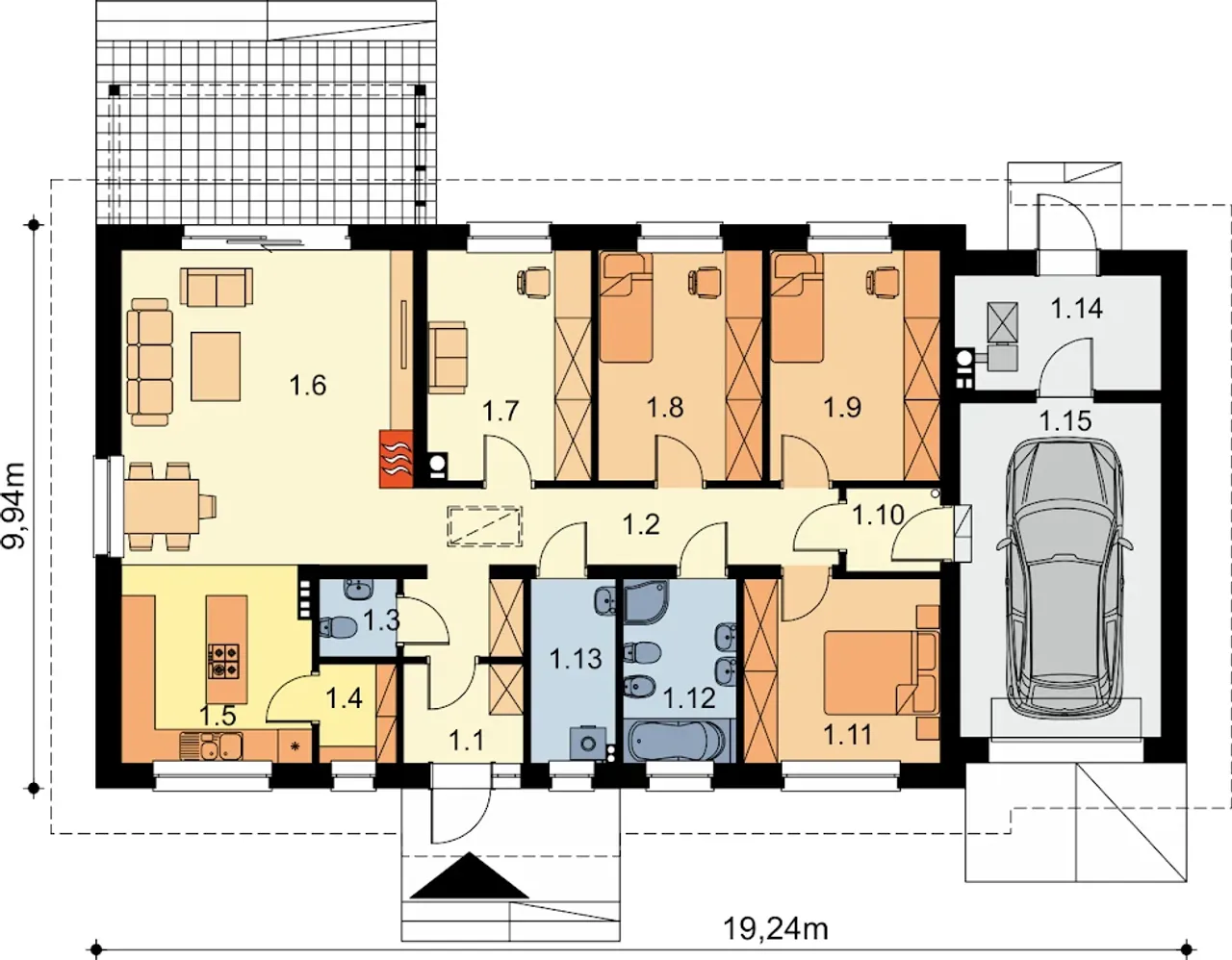
1. Wiatrołap | 3,60 m² |
2. Hol + komunikacja | 12,70 m² |
3. Wc | 1,80 m² |
4. Spiżarnia | 2,30 m² |
5. Kuchnia | 10,60 m² |
6. Salon + jadalnia | 29,10 m² |
7. Pokój | 11,44 m² |
8. Pokój | 11,62 m² |
9. Pokój | 12,10 m² |
10. Korytarz | 2,37 m² |
11. Pokój | 11,14 m² |
12. łazienka | 6,39 m² |
13. Pralnia | 4,78 m² |
14. Kotłownia | 7,00 m² |
15. Garaż | 20,75 m² |
Wypełnij formularz i otrzymaj rysunki w pdf z dokładnymi wymiarami budynku i pomieszczeń (długość, szerokość, wysokość) dla projektu Tamara 3
Ilość pokoi 5 |
Pow. użytkowa 126.94 m² |
Powierzchnia zabudowy 187.73 m² |
Kondygnacje parterowy |
Garaż 1 stanowisko |
Technologia murowany |
Szerokość działki 26.24 m |
Obiekt dom |
Typ domu jednorodzinny całoroczny |
Kubatura 1065.29 m³ |
Kalenica równoległa do drogi |
Powierzchnia dachu 301.58 m² |
Rodzaj garażu przyklejony |
Długość działki 19.56 m |
Ogrzewanie gaz, paliwo stałe |
Liczba łazieniek 1 |
Wysokość budynku 7.69 m |
Rodzaj dachu dwuspadowy |
Kominek kominek w projekcie |
Funkcje dodatkowe z pralnią |
Przechowywanie w kuchni spiżarnia |
Bryła budynku prosta bryła |
Kotłownia duża kotłownia |
Szerokość budynku 19.24 m |
Styl budynku nowoczesny |
Taras z tarasem |
Kąt nachylenia dachu 35 ° |
Długość budynku 9.94 m |
Piwnica bez podpiwniczenia |
Strop żelbetowy |
Koszty budowy 300-350 tys., tylko z kosztorysem |
Ilość pokoi 5 |
Powierzchnia zabudowy 187.73 m² |
Garaż 1 stanowisko |
Szerokość działki 26.24 m |
Typ domu jednorodzinny całoroczny |
Kalenica równoległa do drogi |
Rodzaj garażu przyklejony |
Ogrzewanie gaz, paliwo stałe |
Wysokość budynku 7.69 m |
Kominek kominek w projekcie |
Przechowywanie w kuchni spiżarnia |
Kotłownia duża kotłownia |
Styl budynku nowoczesny |
Kąt nachylenia dachu 35 ° |
Piwnica bez podpiwniczenia |
Koszty budowy 300-350 tys., tylko z kosztorysem |
Pow. użytkowa 126.94 m² |
Kondygnacje parterowy |
Technologia murowany |
Obiekt dom |
Kubatura 1065.29 m³ |
Powierzchnia dachu 301.58 m² |
Długość działki 19.56 m |
Liczba łazieniek 1 |
Rodzaj dachu dwuspadowy |
Funkcje dodatkowe z pralnią |
Bryła budynku prosta bryła |
Szerokość budynku 19.24 m |
Taras z tarasem |
Długość budynku 9.94 m |
Strop żelbetowy |
Odkryj przestronny, funkcjonalny dom jednorodzinny, który zachwyca prostą formą i starannie przemyślanym układem wnętrza. Projekt domu Tamara 3 łączy nowoczesną estetykę z solidnymi rozwiązaniami technicznymi, oferując komfortowe warunki do życia dla całej rodziny przez cały rok. Przemyślany rozkład pomieszczeń, duża kotłownia oraz praktyczna pralnia znacznie ułatwią codzienne funkcjonowanie, gwarantując wygodę na każdym kroku.
Ten dom powstał z myślą o osobach poszukujących nowoczesnych, trwałych rozwiązań i swobody użytkowania. Dzięki zastosowanym technologiom oraz dwuwarstwowym ścianom z betonu komórkowego dom wybudowany na podstawie projektu Tamara 3 osiąga bardzo dobrą izolacyjność i stabilność konstrukcji.
Projekt Tamara 3 to funkcjonalność podana w nowoczesnej oprawie. Parterowy układ eliminuje bariery architektoniczne, sprawdzając się świetnie zarówno dla rodzin z dziećmi, jak i osób starszych. Centralnie zlokalizowany salon z kominkiem tworzy serce domu - to świetne miejsce do wypoczynku oraz wspólnego spędzania czasu. Przylegająca do kuchni spiżarnia znacznie ułatwia przechowywanie produktów i porządkowanie przestrzeni podczas przygotowywania posiłków.
Dom jest posadowiony na solidnych fundamentach betonowych. Ściany zewnętrzne wykonane są z warstwy betonu komórkowego i styropianu o imponującej grubości 20 cm, co przekłada się na niskie zapotrzebowanie na energię. Wentylacja grawitacyjna z opcją montażu systemu mechanicznego z rekuperacją pozwala dopasować dom do preferencji mieszkańców, a dwuspadowy dach pokryty dachówką cementową bądź ceramiczną nadajetrwałość na lata.
Zainwestuj w sprawdzony projekt domu jednorodzinnego Tamara 3 - dołącz do grona zadowolonych inwestorów i rozpocznij budowę swoich nowych czterech kątów już teraz!
Kupując projekt w technologii murowanej powinieneś budować dom murowany. Zupełna zmiana technologii na szkieletową wymaga przeprojektowania całego budynku ( zmieniają się obciążenia, fundamenty, konstrukcja dachu). Wydamy zgodę na takie przeprojektowanie jednak wiążę się to z dużymi kosztami. Istnieją firmy wykonawcze, które podejmują się zmiany technologii budowy bezpłatnie przy skorzystaniu z ich usług wykonawczych. Zdarza się, że pracownia architektoniczna przygotowuje warianty konkretnego projektu przewidując także inne technologie. Prosimy o sprawdzenie czy istnieje poszukiwana wersja projektu, w zakładce - warianty projektu.
Zwężenie/poszerzenie budynku* to nic innego jak zmiana w projekcie. Istnieje możliwość wprowadzenia takich zmian, we własnym zakresie (podczas adaptacji). *zwężenie/poszerzenie budynku nie powinno stanowić problemu w przypadku domów o dachu dwuspadowym jeśli wiąże się to z wydłużeniem/skróceniem kalenicy dachu.
Poznaj praktyczne porady ekspertów, które ułatwią Ci każdy etap budowy i od wyboru wymarzonego domu po jego wykończenie. Zyskaj pewność, że podejmujesz najlepsze decyzje dzięki sprawdzonym wskazówkom od specjalistów z planz.pl
Wycena szacunkowa, w kwotach netto, nie zawiera instalacji.
bezpłatnie (0zł)
przelew zwykły / PayNow
przy odbiorze
1-2 dni roboczych (jeśli projekt nie jest koncepcją)
Wybierz wygodny dla Ciebie czas kontaktu z naszym Doradcą Technicznym.