Jaworki 9



1. Wiatrołap | 5,33 (8,67) m² |
2. Komunikacja | 6,55 m² |
3. Wc | 0,56 (1,06) m² |
4. Pokój | 12,35 m² |
5. łazienka | 3,08 m² |
6. Sypialnia | 13,57 m² |
7. Salon z jadalnią i kuchnią | 30,16 m² |
8. Garaż | 20,42 m² |
9. Pom. gospodarcze | 6,70 m² |
1. Komunikacja | 9,59 (14,60) m² |
2. Pokój | 10,10 (14,52) m² |
3. łazienka | 9,55 (13,35) m² |
4. Sypialnia | 8,75 (12,56) m² |
5. Pokój | 9,83 (13,63) m² |
6. Pokój | 10,25 (14,96) m² |
Wypełnij formularz i otrzymaj rysunki w pdf z dokładnymi wymiarami budynku i pomieszczeń (długość, szerokość, wysokość) dla projektu Spiralis I G1
Pow. użytkowa 129.65 m² |
Ilość pokoi 7 |
Powierzchnia zabudowy 135.22 m² |
Kondygnacje parterowy+poddasze |
Garaż 1 stanowisko |
Technologia murowany |
Szerokość działki 22.9 m |
Obiekt dom |
Typ domu jednorodzinny całoroczny |
Bryła budynku prosta bryła |
Styl budynku nowoczesny |
Strop żelbetowy |
Liczba łazieniek 2 |
Kąt nachylenia dachu 42 ° |
Kalenica równoległa do drogi |
Szerokość budynku 14.9 m |
Kominek kominek w projekcie |
Funkcje dodatkowe z wykuszem |
Długość budynku 9.65 m |
Rodzaj garażu przyklejony |
Piwnica bez podpiwniczenia |
Kubatura 738.6 m³ |
Rodzaj dachu dwuspadowy |
Wysokość budynku 8.53 m |
Długość działki 17.65 m |
Koszty budowy 300-350 tys., tylko z kosztorysem |
Pow. użytkowa 129.65 m² |
Powierzchnia zabudowy 135.22 m² |
Garaż 1 stanowisko |
Szerokość działki 22.9 m |
Typ domu jednorodzinny całoroczny |
Styl budynku nowoczesny |
Liczba łazieniek 2 |
Kalenica równoległa do drogi |
Kominek kominek w projekcie |
Długość budynku 9.65 m |
Piwnica bez podpiwniczenia |
Rodzaj dachu dwuspadowy |
Długość działki 17.65 m |
Ilość pokoi 7 |
Kondygnacje parterowy+poddasze |
Technologia murowany |
Obiekt dom |
Bryła budynku prosta bryła |
Strop żelbetowy |
Kąt nachylenia dachu 42 ° |
Szerokość budynku 14.9 m |
Funkcje dodatkowe z wykuszem |
Rodzaj garażu przyklejony |
Kubatura 738.6 m³ |
Wysokość budynku 8.53 m |
Koszty budowy 300-350 tys., tylko z kosztorysem |
Odkryj nowoczesny projekt domu parterowego z poddaszem Spiralis I G1 - przemyślaną propozycję dla rodzin ceniących wygodę, styl i funkcjonalność. Przestrzeń tego domu zachwyca prostą bryłą, efektownym wykuszem i garażem wkomponowanym w bryłę budynku, gwarantując wygodne codzienne użytkowanie.
Twój nowy dom może być idealnym miejscem do życia przez cały rok. Nowoczesne rozwiązania konstrukcyjne, solidna technologia murowana oraz atrakcyjny design podkreślają jego unikalny charakter i stanowią świetną inwestycję na lata.
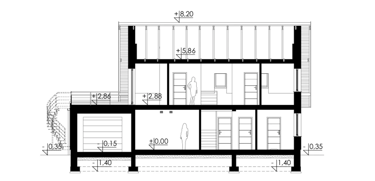
Dom jednorodzinny Spiralis I G1 to połączenie nowoczesnej technologii z praktycznymi rozwiązaniami dla wymagających rodzin. Konstrukcja murowana z pustaków ceramicznych marki LEIER oraz ocieplenie styropianem Termo Organika pozwala ograniczyć straty ciepła i podnieść standard energooszczędności. Żelbetowy strop oraz zabiegowe schody gwarantują stabilność każdego poziomu. Okna i drzwi PVC, rolety zewnętrzne oraz segmentowa brama garażowa zabezpieczają wnętrze oraz podnoszą komfort mieszkańców.
Poddasze użytkowe umożliwia zorganizowanie nawet siedmiu funkcjonalnych pokoi. Kalenica równoległa do drogi ułatwia usytuowanie domu na różnych działkach. Dzięki wykuszowi główny salon zyskuje efektowną, jasną przestrzeń, a kominek stwarza przyjemną atmosferę w chłodne wieczory. Jednostanowiskowy garaż przyklejony do domu to gwarancja wygody dla kierowców niezależnie od pogody.
Projekt Spiralis I G1 pozwala elastycznie zaaranżować wnętrze zgodnie z Twoimi potrzebami. Nawet większa rodzina zyska tu optymalny układ pomieszczeń, dużą strefę dzienną z kominkiem, praktyczny garaż oraz przestrzeń do przechowywania. Dzięki zastosowaniu mocnych stropów i wysokiej ściany kolankowej poddasze jest w pełni funkcjonalne i wygodne do aranżacji pokoi czy domowego biura.
Wybierając ten nowoczesny dom z dachem dwuspadowym oraz murowaną konstrukcją, zyskasz nie tylko pewność trwałości, ale też ponadczasową estetykę budynku. To inwestycja, która spełni oczekiwania nawet najbardziej wymagających inwestorów.
Nie zwlekaj - zamów projekt domu Spiralis I G1 i postaw swój wymarzony, wyjątkowy dom szybciej niż myślisz!
Kupując projekt w technologii murowanej powinieneś budować dom murowany. Zupełna zmiana technologii na szkieletową wymaga przeprojektowania całego budynku ( zmieniają się obciążenia, fundamenty, konstrukcja dachu). Wydamy zgodę na takie przeprojektowanie jednak wiążę się to z dużymi kosztami. Istnieją firmy wykonawcze, które podejmują się zmiany technologii budowy bezpłatnie przy skorzystaniu z ich usług wykonawczych. Zdarza się, że pracownia architektoniczna przygotowuje warianty konkretnego projektu przewidując także inne technologie. Prosimy o sprawdzenie czy istnieje poszukiwana wersja projektu, w zakładce - warianty projektu.
Zwężenie/poszerzenie budynku* to nic innego jak zmiana w projekcie. Istnieje możliwość wprowadzenia takich zmian, we własnym zakresie (podczas adaptacji). *zwężenie/poszerzenie budynku nie powinno stanowić problemu w przypadku domów o dachu dwuspadowym jeśli wiąże się to z wydłużeniem/skróceniem kalenicy dachu.
Poznaj praktyczne porady ekspertów, które ułatwią Ci każdy etap budowy i od wyboru wymarzonego domu po jego wykończenie. Zyskaj pewność, że podejmujesz najlepsze decyzje dzięki sprawdzonym wskazówkom od specjalistów z planz.pl
Wycena szacunkowa, w kwotach netto, nie zawiera instalacji.
bezpłatnie (0zł)
przelew zwykły / PayNow
przy odbiorze
3-5 dni roboczych
Wybierz wygodny dla Ciebie czas kontaktu z naszym Doradcą Technicznym.