Sosenka



Wypełnij formularz i otrzymaj rysunki w pdf z dokładnymi wymiarami budynku i pomieszczeń (długość, szerokość, wysokość) dla projektu Sosenka wariant E
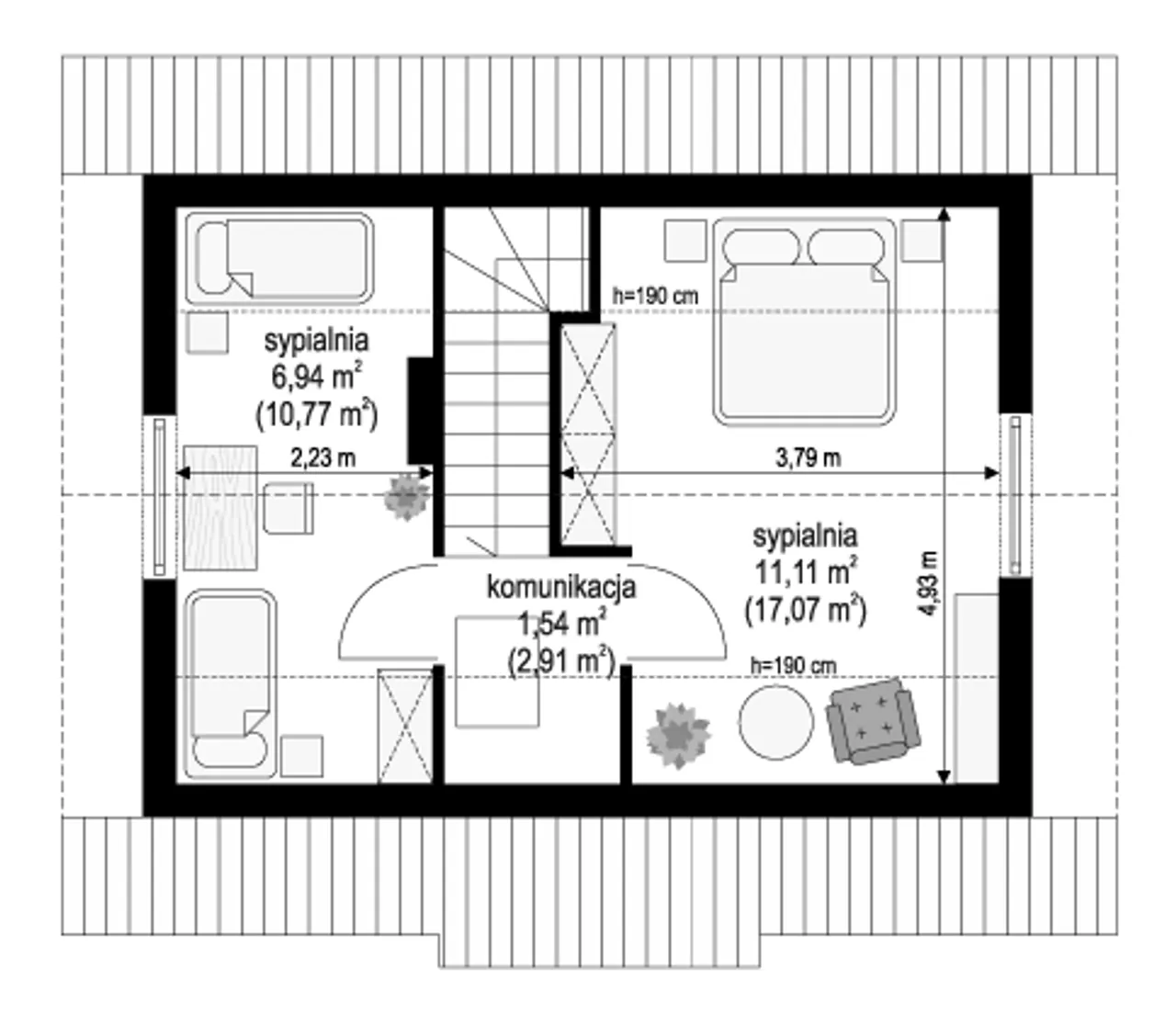
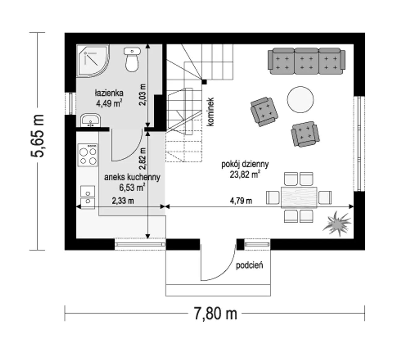
Pow. użytkowa 53.67 m² |
Ilość pokoi 3 |
Kondygnacje parterowy+poddasze |
Garaż bez garażu |
Technologia murowany |
Szerokość działki 15.8 m |
Obiekt dom |
Typ domu letniskowy |
Strop drewniany |
Styl budynku tradycyjny |
Kalenica równoległa do drogi |
Szerokość budynku 7.8 m |
Liczba łazieniek 1 |
Kąt nachylenia dachu 45 ° |
Długość budynku 5.65 m |
Kominek kominek w projekcie |
Kubatura 193 m³ |
Rodzaj dachu dwuspadowy |
Piwnica bez podpiwniczenia |
Powierzchnia dachu 96.96 m² |
Wysokość budynku 7 m |
Długość działki 13.65 m |
Bryła budynku prosta bryła |
Koszty budowy tylko z kosztorysem, 100-150 tys. |
Pow. użytkowa 53.67 m² |
Kondygnacje parterowy+poddasze |
Technologia murowany |
Obiekt dom |
Strop drewniany |
Kalenica równoległa do drogi |
Liczba łazieniek 1 |
Długość budynku 5.65 m |
Kubatura 193 m³ |
Piwnica bez podpiwniczenia |
Wysokość budynku 7 m |
Bryła budynku prosta bryła |
Ilość pokoi 3 |
Garaż bez garażu |
Szerokość działki 15.8 m |
Typ domu letniskowy |
Styl budynku tradycyjny |
Szerokość budynku 7.8 m |
Kąt nachylenia dachu 45 ° |
Kominek kominek w projekcie |
Rodzaj dachu dwuspadowy |
Powierzchnia dachu 96.96 m² |
Długość działki 13.65 m |
Koszty budowy tylko z kosztorysem, 100-150 tys. |
Kupując projekt w technologii murowanej powinieneś budować dom murowany. Zupełna zmiana technologii na szkieletową wymaga przeprojektowania całego budynku ( zmieniają się obciążenia, fundamenty, konstrukcja dachu). Wydamy zgodę na takie przeprojektowanie jednak wiążę się to z dużymi kosztami. Istnieją firmy wykonawcze, które podejmują się zmiany technologii budowy bezpłatnie przy skorzystaniu z ich usług wykonawczych. Zdarza się, że pracownia architektoniczna przygotowuje warianty konkretnego projektu przewidując także inne technologie. Prosimy o sprawdzenie czy istnieje poszukiwana wersja projektu, w zakładce - warianty projektu.
Zwężenie/poszerzenie budynku* to nic innego jak zmiana w projekcie. Istnieje możliwość wprowadzenia takich zmian, we własnym zakresie (podczas adaptacji). *zwężenie/poszerzenie budynku nie powinno stanowić problemu w przypadku domów o dachu dwuspadowym jeśli wiąże się to z wydłużeniem/skróceniem kalenicy dachu.
Poznaj praktyczne porady ekspertów, które ułatwią Ci każdy etap budowy i od wyboru wymarzonego domu po jego wykończenie. Zyskaj pewność, że podejmujesz najlepsze decyzje dzięki sprawdzonym wskazówkom od specjalistów z planz.pl
Wycena szacunkowa, w kwotach netto, nie zawiera instalacji.
bezpłatnie (0zł)
przelew zwykły / PayNow
przy odbiorze
3-10 dni roboczych
Wybierz wygodny dla Ciebie czas kontaktu z naszym Doradcą Technicznym.