Sosenka 5



Wypełnij formularz i otrzymaj rysunki w pdf z dokładnymi wymiarami budynku i pomieszczeń (długość, szerokość, wysokość) dla projektu Sosenka 5 wariant D
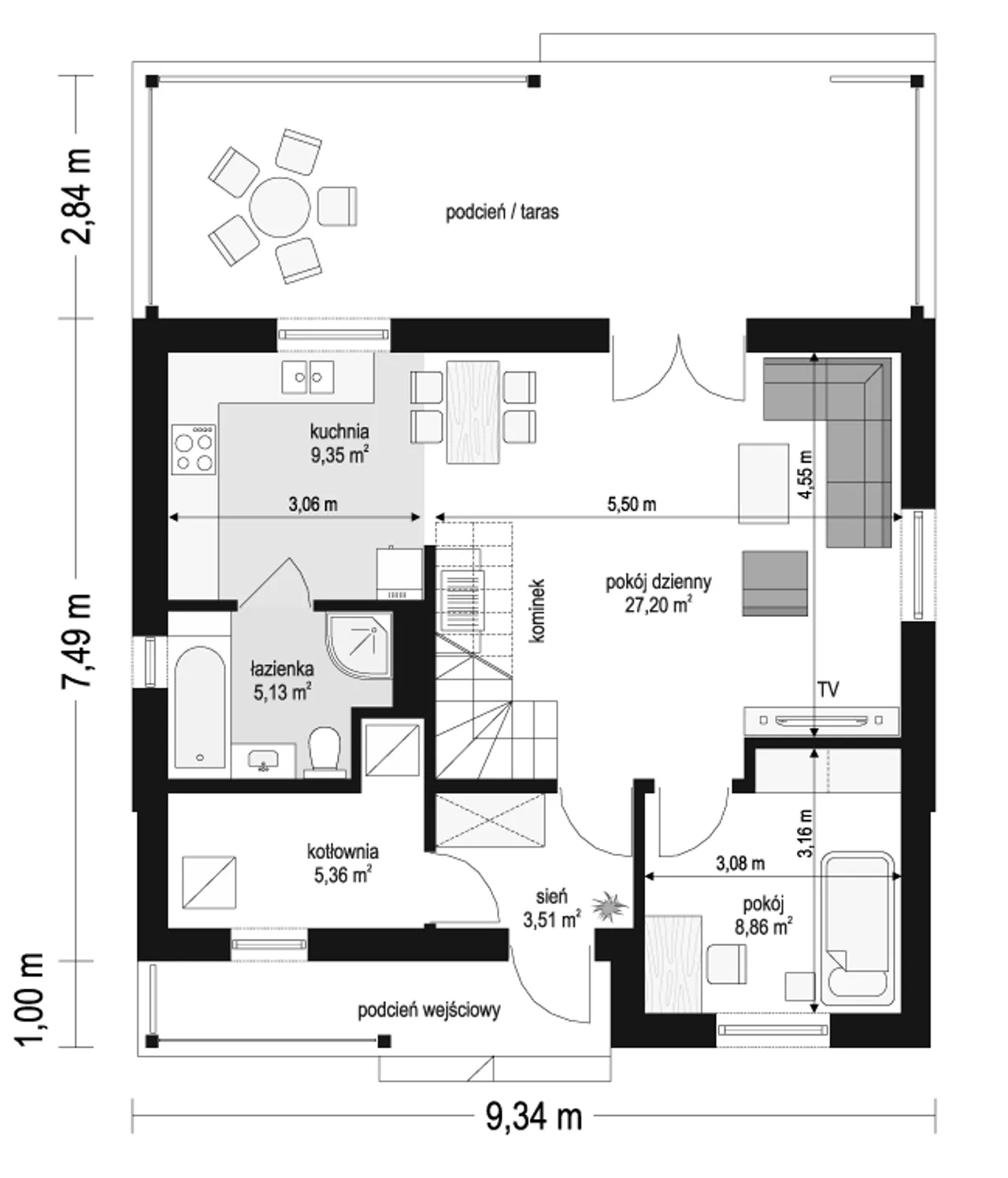
Pow. użytkowa 84.29 m² |
Ilość pokoi 4 |
Kondygnacje parterowy+poddasze |
Garaż bez garażu |
Technologia szkielet/drewniany |
Szerokość działki 17.34 m |
Obiekt dom |
Typ domu jednorodzinny całoroczny |
Styl budynku tradycyjny |
Strop drewniany |
Szerokość budynku 9.34 m |
Liczba łazieniek 2 |
Kąt nachylenia dachu 45 ° |
Kalenica równoległa do drogi |
Długość budynku 8.49 m |
Kominek kominek w projekcie |
Funkcje dodatkowe z lukarnami |
Kubatura 369 m³ |
Rodzaj dachu dwuspadowy |
Piwnica bez podpiwniczenia |
Powierzchnia dachu 171.2 m² |
Kąt nachylenia dachu drugiego 25 |
Wysokość budynku 7.39 m |
Długość działki 18.33 m |
Bryła budynku prosta bryła |
Koszty budowy tylko z kosztorysem, 200-250 tys. |
Pow. użytkowa 84.29 m² |
Kondygnacje parterowy+poddasze |
Technologia szkielet/drewniany |
Obiekt dom |
Styl budynku tradycyjny |
Szerokość budynku 9.34 m |
Kąt nachylenia dachu 45 ° |
Długość budynku 8.49 m |
Funkcje dodatkowe z lukarnami |
Rodzaj dachu dwuspadowy |
Powierzchnia dachu 171.2 m² |
Wysokość budynku 7.39 m |
Bryła budynku prosta bryła |
Ilość pokoi 4 |
Garaż bez garażu |
Szerokość działki 17.34 m |
Typ domu jednorodzinny całoroczny |
Strop drewniany |
Liczba łazieniek 2 |
Kalenica równoległa do drogi |
Kominek kominek w projekcie |
Kubatura 369 m³ |
Piwnica bez podpiwniczenia |
Kąt nachylenia dachu drugiego 25 |
Długość działki 18.33 m |
Koszty budowy tylko z kosztorysem, 200-250 tys. |
Wybierz projekt domu jednorodzinnego Sosenka 5 wariant D i postaw na sprawdzone rozwiązania w ciepłym, tradycyjnym stylu. Prosta bryła, funkcjonalne wnętrze z czterema pokojami oraz klasyczny dwuspadowy dach - to doskonała baza dla wygodnego i rodzinnego życia. Ten projekt domu to propozycja dla tych, którzy chcą mieszkać nowocześnie, a jednocześnie przytulnie.
Dom Sosenka 5 wariant D świetnie wpisuje się w potrzeby rodziny, poszukującej komfortowej przestrzeni do życia przez cały rok. Projekt doskonale sprawdzi się zarówno na podmiejskiej, jak i niewielkiej działce, a układ pomieszczeń pozwala na wygodne zaaranżowanie strefy dziennej i prywatnej.
Projekt domu jednorodzinnego Sosenka 5 wariant D to synonim tradycyjnej estetyki i efektywnej organizacji przestrzeni. Prosta bryła i dwuspadowy dach o kącie 45° nadają mu ponadczasowy charakter, który odnajdzie się w każdym krajobrazie. Konstrukcja oparta na drewnianym szkielecie pozwala szybko osiągnąć solidną i energooszczędną budowlę.
Dom posiada cztery wygodne pokoje, rozłożone na parterze i poddaszu, a także przestronny salon z miejscem na klimatyczny kominek. Lukarny nie tylko urozmaicają linię dachu, ale też doświetlają pokoje na piętrze naturalnym światłem. Brak garażu sprawia, że możesz lepiej wykorzystać przestrzeń ogrodu lub dopasować dom nawet na węższą parcelę. Przemyślane fundamenty z betonowych ław i ścian oraz wytrzymały drewniany strop gwarantują solidność przez lata.
Nie czekaj — zamów projekt domu Sosenka 5 wariant D już teraz i ciesz się niezawodną konstrukcją oraz wyjątkowym stylem swojego przyszłego domu!
Kupując projekt w technologii murowanej powinieneś budować dom murowany. Zupełna zmiana technologii na szkieletową wymaga przeprojektowania całego budynku ( zmieniają się obciążenia, fundamenty, konstrukcja dachu). Wydamy zgodę na takie przeprojektowanie jednak wiążę się to z dużymi kosztami. Istnieją firmy wykonawcze, które podejmują się zmiany technologii budowy bezpłatnie przy skorzystaniu z ich usług wykonawczych. Zdarza się, że pracownia architektoniczna przygotowuje warianty konkretnego projektu przewidując także inne technologie. Prosimy o sprawdzenie czy istnieje poszukiwana wersja projektu, w zakładce - warianty projektu.
Zwężenie/poszerzenie budynku* to nic innego jak zmiana w projekcie. Istnieje możliwość wprowadzenia takich zmian, we własnym zakresie (podczas adaptacji). *zwężenie/poszerzenie budynku nie powinno stanowić problemu w przypadku domów o dachu dwuspadowym jeśli wiąże się to z wydłużeniem/skróceniem kalenicy dachu.
Poznaj praktyczne porady ekspertów, które ułatwią Ci każdy etap budowy i od wyboru wymarzonego domu po jego wykończenie. Zyskaj pewność, że podejmujesz najlepsze decyzje dzięki sprawdzonym wskazówkom od specjalistów z planz.pl
Wycena szacunkowa, w kwotach netto, nie zawiera instalacji.
bezpłatnie (0zł)
przelew zwykły / PayNow
przy odbiorze
3-10 dni roboczych
Wybierz wygodny dla Ciebie czas kontaktu z naszym Doradcą Technicznym.