Sosenka 5



Wypełnij formularz i otrzymaj rysunki w pdf z dokładnymi wymiarami budynku i pomieszczeń (długość, szerokość, wysokość) dla projektu Sosenka 5 wariant C
Pow. użytkowa 85.16 m² |
Ilość pokoi 4 |
Powierzchnia zabudowy 106.53 m² |
Kondygnacje parterowy+poddasze |
Garaż bez garażu |
Technologia szkielet/drewniany |
Szerokość działki 17.34 m |
Obiekt dom |
Typ domu letniskowy |
Wysokość budynku 7.39 m |
Bryła budynku prosta bryła |
Styl budynku tradycyjny |
Liczba łazieniek 2 |
Strop drewniany |
Szerokość budynku 9.34 m |
Kominek kominek w projekcie |
Kąt nachylenia dachu 45 ° |
Kalenica równoległa do drogi |
Długość budynku 8.49 m |
Piwnica bez podpiwniczenia |
Funkcje dodatkowe z lukarnami |
Kubatura 369 m³ |
Rodzaj dachu dwuspadowy |
Powierzchnia dachu 171.2 m² |
Kąt nachylenia dachu drugiego 25 |
Długość działki 18.33 m |
Koszty budowy tylko z kosztorysem, 200-250 tys. |
Pow. użytkowa 85.16 m² |
Powierzchnia zabudowy 106.53 m² |
Garaż bez garażu |
Szerokość działki 17.34 m |
Typ domu letniskowy |
Bryła budynku prosta bryła |
Liczba łazieniek 2 |
Szerokość budynku 9.34 m |
Kąt nachylenia dachu 45 ° |
Długość budynku 8.49 m |
Funkcje dodatkowe z lukarnami |
Rodzaj dachu dwuspadowy |
Kąt nachylenia dachu drugiego 25 |
Koszty budowy tylko z kosztorysem, 200-250 tys. |
Ilość pokoi 4 |
Kondygnacje parterowy+poddasze |
Technologia szkielet/drewniany |
Obiekt dom |
Wysokość budynku 7.39 m |
Styl budynku tradycyjny |
Strop drewniany |
Kominek kominek w projekcie |
Kalenica równoległa do drogi |
Piwnica bez podpiwniczenia |
Kubatura 369 m³ |
Powierzchnia dachu 171.2 m² |
Długość działki 18.33 m |
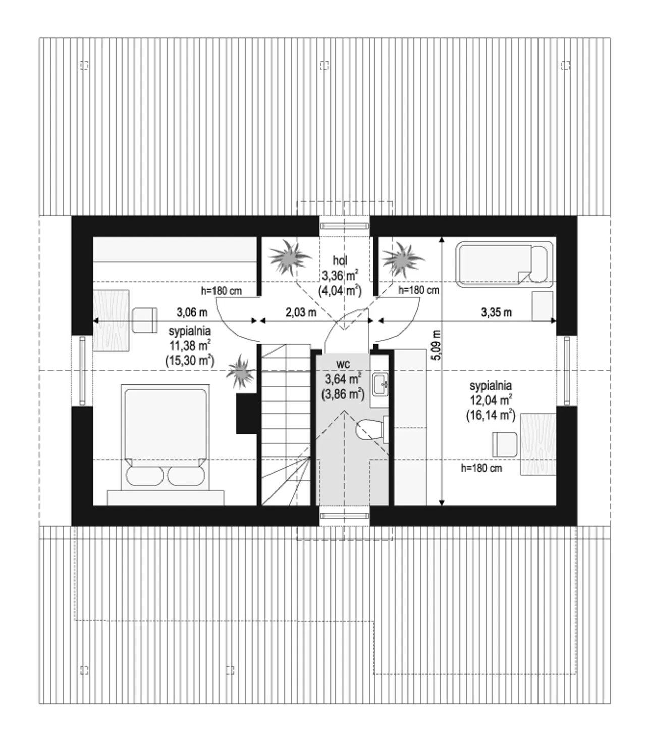
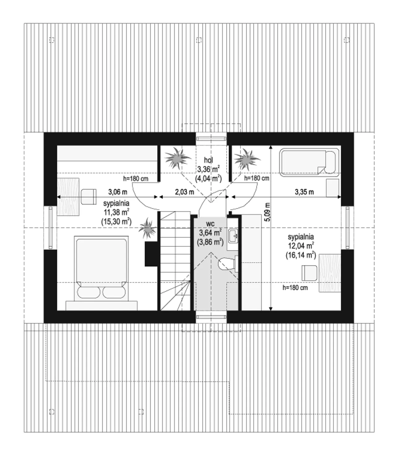
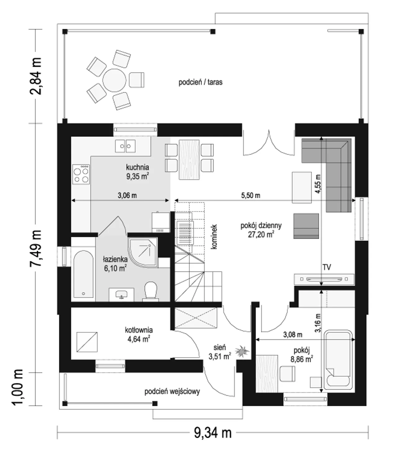
Projekt domu Sosenka 5 wariant C to propozycja dla osób ceniących funkcjonalność i klasyczną, piękną architekturę. Prosta bryła budynku i wyraźnie zaakcentowany dach dwuspadowy doskonale wpisują się w sielski klimat działki rekreacyjnej lub wiejskiej. Dom parterowy z użytkowym poddaszem znakomicie sprawdza się nie tylko jako dom letniskowy, ale również całoroczny - jeśli szukasz niezawodności oraz prostoty, ten projekt będzie świetnym wyborem.
Zaprojektowany bez garażu, lecz z dużą ilością przestrzeni użytkowej, projekt Sosenka 5 wariant C oferuje wszystko, czego potrzeba do odpoczynku z rodziną z dala od miejskiego zgiełku. Cztery ustawne pokoje, wygodny salon z miejscem na kominek i efektowną lukarną pozwalają cieszyć się zarówno kameralnym klimatem, jak i nieograniczoną swobodą aranżacji.
Dom na bazie projektu Sosenka 5 wariant C został zaprojektowany z myślą o wygodnym wypoczynku - zarówno indywidualnym, jak i w gronie przyjaciół. Subtelne lukarny na poddaszu nie tylko zwiększają powierzchnię użytkową, ale też efektownie doświetlają wnętrza naturalnym światłem. Klasyczny, drewniany strop opiera się na solidnych wiązarach, a ściany zewnętrzne powstają w technologii ekologicznych, drewnianych prefabrykatów.
Projekt przewiduje cztery pokoje, dzięki czemu z łatwością zaplanujesz wygodną przestrzeń do snu, pracy lub rozrywki. Kalenica ustawiona równolegle do drogi oraz kąt dachu wynoszący 45° umożliwiają wybudowanie domu praktycznie na każdej działce, zarówno w górach, jak i na nizinnym terenie. Stabilna podstawa - betonowe ławy i ściany fundamentowe z bloczków betonowych - dają solidną bazę dla lekkiej, a zarazem trwałej konstrukcji.
Nie zwlekaj - postaw na sprawdzony projekt domu letniskowego Sosenka 5 wariant C i rozpocznij budowę własnego miejsca wypoczynku już dziś!
Kupując projekt w technologii murowanej powinieneś budować dom murowany. Zupełna zmiana technologii na szkieletową wymaga przeprojektowania całego budynku ( zmieniają się obciążenia, fundamenty, konstrukcja dachu). Wydamy zgodę na takie przeprojektowanie jednak wiążę się to z dużymi kosztami. Istnieją firmy wykonawcze, które podejmują się zmiany technologii budowy bezpłatnie przy skorzystaniu z ich usług wykonawczych. Zdarza się, że pracownia architektoniczna przygotowuje warianty konkretnego projektu przewidując także inne technologie. Prosimy o sprawdzenie czy istnieje poszukiwana wersja projektu, w zakładce - warianty projektu.
Zwężenie/poszerzenie budynku* to nic innego jak zmiana w projekcie. Istnieje możliwość wprowadzenia takich zmian, we własnym zakresie (podczas adaptacji). *zwężenie/poszerzenie budynku nie powinno stanowić problemu w przypadku domów o dachu dwuspadowym jeśli wiąże się to z wydłużeniem/skróceniem kalenicy dachu.
Poznaj praktyczne porady ekspertów, które ułatwią Ci każdy etap budowy i od wyboru wymarzonego domu po jego wykończenie. Zyskaj pewność, że podejmujesz najlepsze decyzje dzięki sprawdzonym wskazówkom od specjalistów z planz.pl
Wycena szacunkowa, w kwotach netto, nie zawiera instalacji.
bezpłatnie (0zł)
przelew zwykły / PayNow
przy odbiorze
3-10 dni roboczych
Projekt domu "Sosenka 5 Wariant C" jest niezwykle przemyślany. Funkcjonalnością i nowoczesnością zapiera dech w piersiach. Wszystko zostało zaplanowane tak, aby maksymalnie wykorzystać dostępną przestrzeń i stworzyć komfortowe warunki dla całej rodziny.
Wybierz wygodny dla Ciebie czas kontaktu z naszym Doradcą Technicznym.