Koralgol 2G



Zawartość projektu
3 egzemplarze projektu archtektoniczno budowlanego + 3 egzemplarze projektu technicznego.
- Opis architektoniczno - budowlany
- Część rysunkowa (elewacje, rzuty, przekroje, zestawienie stolarki)
Projekt techniczny zawiera:
- Projekt konstrukcji
- Instalacje sanitarne + gazowe/ sanitarne + paliwo stałe
- instalacje elektryczne
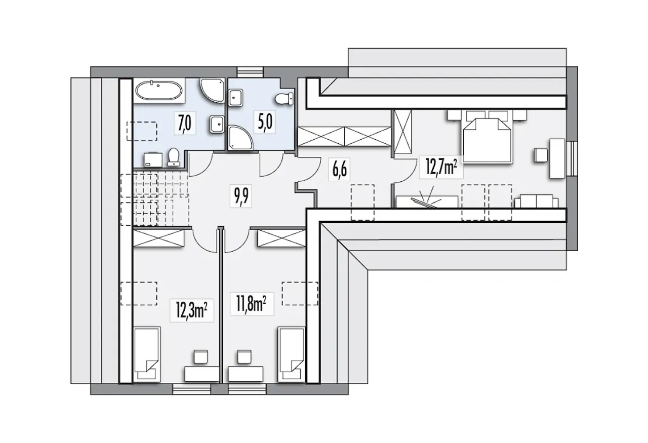
Wypełnij formularz i otrzymaj rysunki w pdf z dokładnymi wymiarami budynku i pomieszczeń (długość, szerokość, wysokość) dla projektu Sosenka 3
Ilość pokoi 5 |
Pow. użytkowa 140.4 m² |
Powierzchnia zabudowy 150 m² |
Kondygnacje parterowy+poddasze |
Garaż 2 stanowiska |
Technologia murowany |
Szerokość działki 24.7 m |
Obiekt dom |
Typ domu jednorodzinny całoroczny |
Kąt nachylenia dachu 45 ° |
Kalenica prostopadła do drogi |
Szerokość budynku 16.7 m |
Liczba łazieniek 3 |
Długość budynku 11.3 m |
Rodzaj garażu przyklejony |
Piwnica bez podpiwniczenia |
Powierzchnia dachu 210 m² |
Rodzaj dachu dwuspadowy |
Wysokość budynku 7.85 m |
Długość działki 19.3 m |
Bryła budynku plan litery L |
Styl budynku nowoczesny |
Strop gęstożebrowy |
Koszty budowy 350-400 tys., tylko z kosztorysem |
Ilość pokoi 5 |
Powierzchnia zabudowy 150 m² |
Garaż 2 stanowiska |
Szerokość działki 24.7 m |
Typ domu jednorodzinny całoroczny |
Kalenica prostopadła do drogi |
Liczba łazieniek 3 |
Rodzaj garażu przyklejony |
Powierzchnia dachu 210 m² |
Wysokość budynku 7.85 m |
Bryła budynku plan litery L |
Strop gęstożebrowy |
Pow. użytkowa 140.4 m² |
Kondygnacje parterowy+poddasze |
Technologia murowany |
Obiekt dom |
Kąt nachylenia dachu 45 ° |
Szerokość budynku 16.7 m |
Długość budynku 11.3 m |
Piwnica bez podpiwniczenia |
Rodzaj dachu dwuspadowy |
Długość działki 19.3 m |
Styl budynku nowoczesny |
Koszty budowy 350-400 tys., tylko z kosztorysem |
Kupując projekt w technologii murowanej powinieneś budować dom murowany. Zupełna zmiana technologii na szkieletową wymaga przeprojektowania całego budynku ( zmieniają się obciążenia, fundamenty, konstrukcja dachu). Wydamy zgodę na takie przeprojektowanie jednak wiążę się to z dużymi kosztami. Istnieją firmy wykonawcze, które podejmują się zmiany technologii budowy bezpłatnie przy skorzystaniu z ich usług wykonawczych. Zdarza się, że pracownia architektoniczna przygotowuje warianty konkretnego projektu przewidując także inne technologie. Prosimy o sprawdzenie czy istnieje poszukiwana wersja projektu, w zakładce - warianty projektu.
Zwężenie/poszerzenie budynku* to nic innego jak zmiana w projekcie. Istnieje możliwość wprowadzenia takich zmian, we własnym zakresie (podczas adaptacji). *zwężenie/poszerzenie budynku nie powinno stanowić problemu w przypadku domów o dachu dwuspadowym jeśli wiąże się to z wydłużeniem/skróceniem kalenicy dachu.
Poznaj praktyczne porady ekspertów, które ułatwią Ci każdy etap budowy i od wyboru wymarzonego domu po jego wykończenie. Zyskaj pewność, że podejmujesz najlepsze decyzje dzięki sprawdzonym wskazówkom od specjalistów z planz.pl
Wycena szacunkowa, w kwotach netto, nie zawiera instalacji.
bezpłatnie (0zł)
przelew zwykły / PayNow
przy odbiorze
4-8 dni roboczych (jeśli projekt nie wymaga aktualizacji)
Ciekawy projekt domu z nowoczesnym podejściem do klasyki. Wygląda na bardzo przestronny i komfortowy.
Wybierz wygodny dla Ciebie czas kontaktu z naszym Doradcą Technicznym.