Santia



Wypełnij formularz i otrzymaj rysunki w pdf z dokładnymi wymiarami budynku i pomieszczeń (długość, szerokość, wysokość) dla projektu Santia Bis 2M
Pow. użytkowa 100.61 m² |
Ilość pokoi 4 |
Powierzchnia zabudowy 173.09 m² |
Kondygnacje parterowy |
Garaż 2 stanowiska |
Technologia murowany |
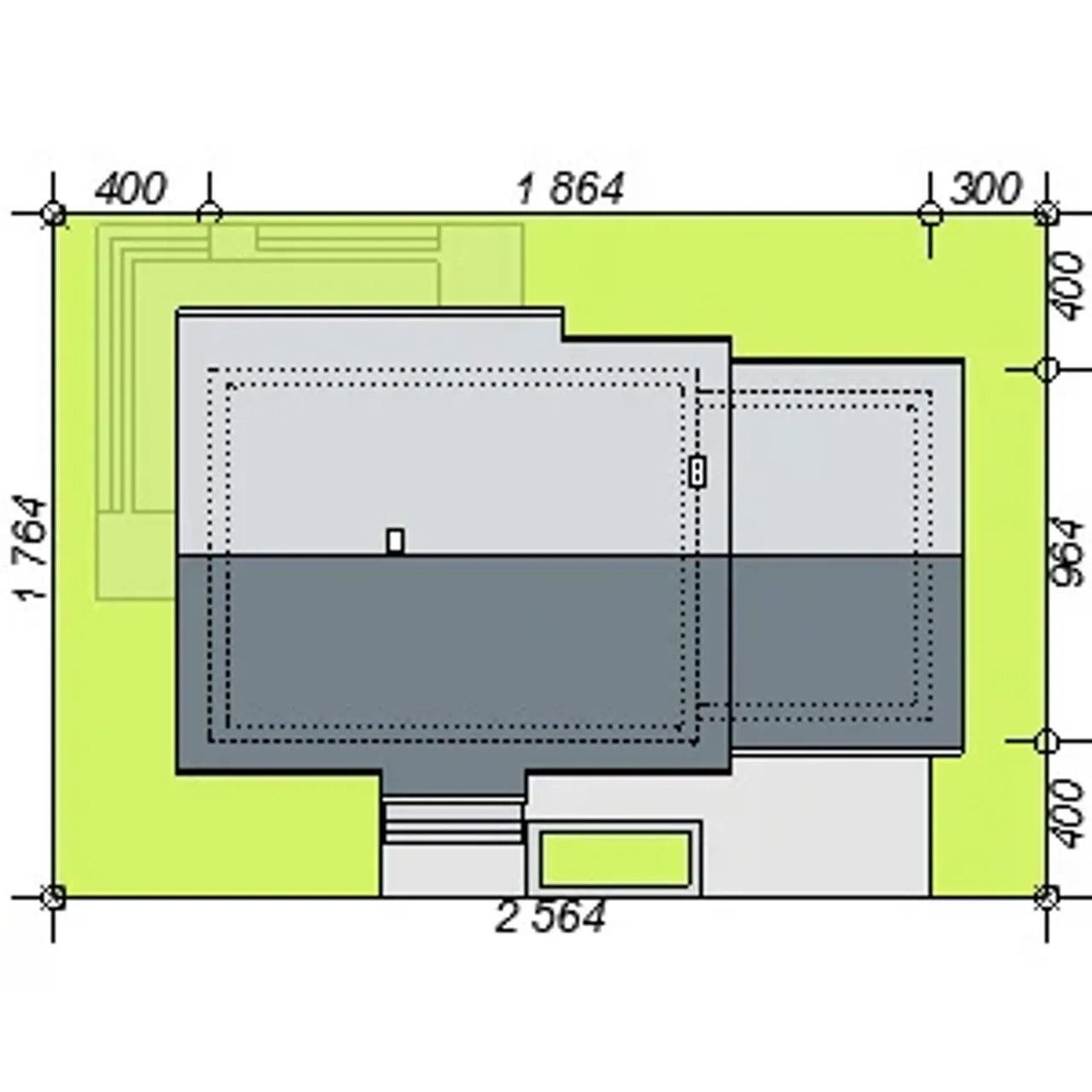
Szerokość działki 25.64 m |
Obiekt dom |
Typ domu jednorodzinny całoroczny |
Powierzchnia dachu 286.01 m² |
Rodzaj dachu dwuspadowy |
Długość działki 17.64 m |
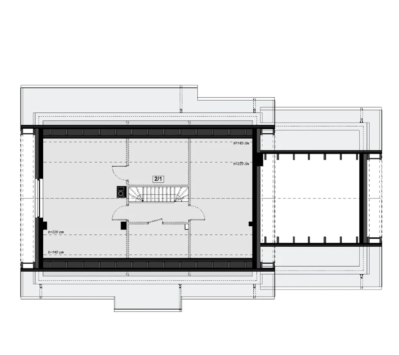
Funkcje dodatkowe ze strychem |
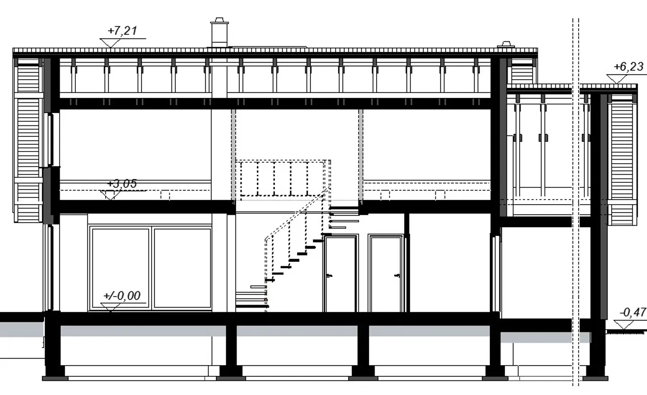
Wysokość budynku 7.68 m |
Przechowywanie w kuchni spiżarnia |
Bryła budynku prosta bryła |
Liczba łazieniek 1 |
Styl budynku nowoczesny |
Kominek kominek w projekcie |
Szerokość budynku 18.64 m |
Kotłownia duża kotłownia |
Kąt nachylenia dachu 35 ° |
Strop gęstożebrowy |
Długość budynku 9.64 m |
Piwnica bez podpiwniczenia |
Kalenica równoległa do drogi |
Kubatura 553.74 m³ |
Rodzaj garażu przyklejony |
Koszty budowy tylko z kosztorysem, 200-250 tys. |
Pow. użytkowa 100.61 m² |
Powierzchnia zabudowy 173.09 m² |
Garaż 2 stanowiska |
Szerokość działki 25.64 m |
Typ domu jednorodzinny całoroczny |
Rodzaj dachu dwuspadowy |
Funkcje dodatkowe ze strychem |
Przechowywanie w kuchni spiżarnia |
Liczba łazieniek 1 |
Kominek kominek w projekcie |
Kotłownia duża kotłownia |
Strop gęstożebrowy |
Piwnica bez podpiwniczenia |
Kubatura 553.74 m³ |
Koszty budowy tylko z kosztorysem, 200-250 tys. |
Ilość pokoi 4 |
Kondygnacje parterowy |
Technologia murowany |
Obiekt dom |
Powierzchnia dachu 286.01 m² |
Długość działki 17.64 m |
Wysokość budynku 7.68 m |
Bryła budynku prosta bryła |
Styl budynku nowoczesny |
Szerokość budynku 18.64 m |
Kąt nachylenia dachu 35 ° |
Długość budynku 9.64 m |
Kalenica równoległa do drogi |
Rodzaj garażu przyklejony |
Kupując projekt w technologii murowanej powinieneś budować dom murowany. Zupełna zmiana technologii na szkieletową wymaga przeprojektowania całego budynku ( zmieniają się obciążenia, fundamenty, konstrukcja dachu). Wydamy zgodę na takie przeprojektowanie jednak wiążę się to z dużymi kosztami. Istnieją firmy wykonawcze, które podejmują się zmiany technologii budowy bezpłatnie przy skorzystaniu z ich usług wykonawczych. Zdarza się, że pracownia architektoniczna przygotowuje warianty konkretnego projektu przewidując także inne technologie. Prosimy o sprawdzenie czy istnieje poszukiwana wersja projektu, w zakładce - warianty projektu.
Zwężenie/poszerzenie budynku* to nic innego jak zmiana w projekcie. Istnieje możliwość wprowadzenia takich zmian, we własnym zakresie (podczas adaptacji). *zwężenie/poszerzenie budynku nie powinno stanowić problemu w przypadku domów o dachu dwuspadowym jeśli wiąże się to z wydłużeniem/skróceniem kalenicy dachu.
Poznaj praktyczne porady ekspertów, które ułatwią Ci każdy etap budowy i od wyboru wymarzonego domu po jego wykończenie. Zyskaj pewność, że podejmujesz najlepsze decyzje dzięki sprawdzonym wskazówkom od specjalistów z planz.pl
Wycena szacunkowa, w kwotach netto, nie zawiera instalacji.
bezpłatnie (0zł)
przelew zwykły / PayNow
przy odbiorze
2-5 dni roboczych
Wybierz wygodny dla Ciebie czas kontaktu z naszym Doradcą Technicznym.