Rodrigo II G2



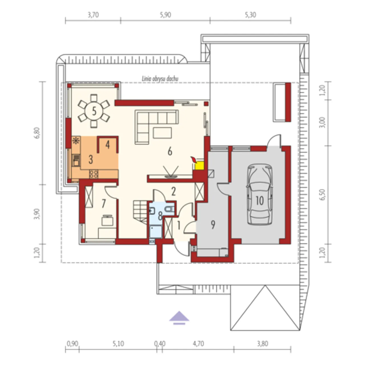
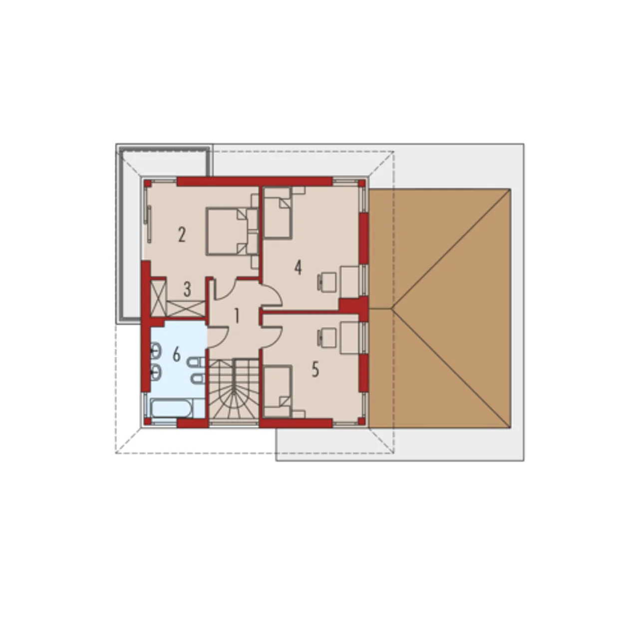
1. Korytarz | 5,61 m² |
2. Sypialnia | 13,84 m² |
3. Garderoba | 2,75 m² |
4. Sypialnia | 16,80 m² |
5. Sypialnia | 13,25 m² |
6. łazienka | 7,45 m² |
Wypełnij formularz i otrzymaj rysunki w pdf z dokładnymi wymiarami budynku i pomieszczeń (długość, szerokość, wysokość) dla projektu Rodrigo III G1
Pow. użytkowa 130.37 m² |
Ilość pokoi 4 |
Powierzchnia zabudowy 160.13 m² |
Kondygnacje piętrowy |
Garaż 1 stanowisko |
Technologia murowany |
Szerokość działki 22 m |
Obiekt dom |
Typ domu jednorodzinny całoroczny |
Długość działki 22 m |
Wysokość budynku 8.75 m |
Styl budynku nowoczesny |
Liczba łazieniek 1 |
Kominek kominek w projekcie |
Szerokość budynku 15 m |
Kotłownia duża kotłownia |
Kąt nachylenia dachu 22 ° |
Strop gęstożebrowy |
Długość budynku 12.5 m |
Rodzaj garażu przyklejony |
Piwnica bez podpiwniczenia |
Kalenica prostopadła do drogi |
Kubatura 522.18 m³ |
Rodzaj dachu wielospadowy |
Powierzchnia dachu 181 m² |
Przechowywanie w kuchni spiżarnia |
Koszty budowy 300-350 tys., tylko z kosztorysem |
Pow. użytkowa 130.37 m² |
Powierzchnia zabudowy 160.13 m² |
Garaż 1 stanowisko |
Szerokość działki 22 m |
Typ domu jednorodzinny całoroczny |
Wysokość budynku 8.75 m |
Liczba łazieniek 1 |
Szerokość budynku 15 m |
Kąt nachylenia dachu 22 ° |
Długość budynku 12.5 m |
Piwnica bez podpiwniczenia |
Kubatura 522.18 m³ |
Powierzchnia dachu 181 m² |
Koszty budowy 300-350 tys., tylko z kosztorysem |
Ilość pokoi 4 |
Kondygnacje piętrowy |
Technologia murowany |
Obiekt dom |
Długość działki 22 m |
Styl budynku nowoczesny |
Kominek kominek w projekcie |
Kotłownia duża kotłownia |
Strop gęstożebrowy |
Rodzaj garażu przyklejony |
Kalenica prostopadła do drogi |
Rodzaj dachu wielospadowy |
Przechowywanie w kuchni spiżarnia |
Kupując projekt w technologii murowanej powinieneś budować dom murowany. Zupełna zmiana technologii na szkieletową wymaga przeprojektowania całego budynku ( zmieniają się obciążenia, fundamenty, konstrukcja dachu). Wydamy zgodę na takie przeprojektowanie jednak wiążę się to z dużymi kosztami. Istnieją firmy wykonawcze, które podejmują się zmiany technologii budowy bezpłatnie przy skorzystaniu z ich usług wykonawczych. Zdarza się, że pracownia architektoniczna przygotowuje warianty konkretnego projektu przewidując także inne technologie. Prosimy o sprawdzenie czy istnieje poszukiwana wersja projektu, w zakładce - warianty projektu.
Zwężenie/poszerzenie budynku* to nic innego jak zmiana w projekcie. Istnieje możliwość wprowadzenia takich zmian, we własnym zakresie (podczas adaptacji). *zwężenie/poszerzenie budynku nie powinno stanowić problemu w przypadku domów o dachu dwuspadowym jeśli wiąże się to z wydłużeniem/skróceniem kalenicy dachu.
Poznaj praktyczne porady ekspertów, które ułatwią Ci każdy etap budowy i od wyboru wymarzonego domu po jego wykończenie. Zyskaj pewność, że podejmujesz najlepsze decyzje dzięki sprawdzonym wskazówkom od specjalistów z planz.pl
Wycena szacunkowa, w kwotach netto, nie zawiera instalacji.
bezpłatnie (0zł)
przelew zwykły / PayNow
przy odbiorze
3-5 dni roboczych (jeśli projekt nie wymaga aktualizacji)
Witam. Jaki byłby koszt takiego budynku w stanie surowym zamkniętym z dachem?
Wybierz wygodny dla Ciebie czas kontaktu z naszym Doradcą Technicznym.