Rodrigo G2 MULTI-COMFORT



1. Wiatrołap | 2,75 m² |
2. Hol + schody | 10,25 m² |
3. Kuchnia | 7,58 m² |
4. Spiżarnia | 2,21 m² |
5. Pokój dzienny | 37,87 m² |
6. łazienka | 2,72 m² |
7. Kotłownia | 11,76 m² |
8. Garaż | 32,67 m² |
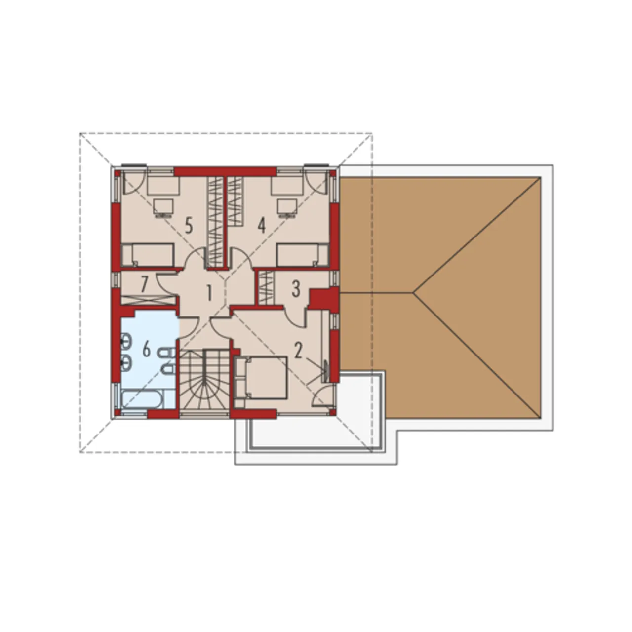
1. Korytarz | 6,80 m² |
2. Sypialnia | 13,36 m² |
3. Garderoba | 2,86 m² |
4. Sypialnia | 13,06 m² |
5. Sypialnia | 13,06 m² |
6. łazienka | 7,49 m² |
7. Pom. gospodarcze | 2,62 m² |
Wypełnij formularz i otrzymaj rysunki w pdf z dokładnymi wymiarami budynku i pomieszczeń (długość, szerokość, wysokość) dla projektu Rodrigo IV G2
Ilość pokoi 3 |
Pow. użytkowa 122.63 m² |
Powierzchnia zabudowy 165.53 m² |
Kondygnacje piętrowy |
Garaż 2 stanowiska |
Technologia murowany |
Szerokość działki 23.3 m |
Obiekt dom |
Typ domu jednorodzinny całoroczny |
Kubatura 537.71 m³ |
Rodzaj dachu wielospadowy |
Ogrzewanie gaz, paliwo stałe, pompa ciepła |
Powierzchnia dachu 202 m² |
Przechowywanie w kuchni spiżarnia |
Długość działki 17.9 m |
Liczba łazieniek 2 |
Wysokość budynku 8.72 m |
Styl budynku nowoczesny |
Kominek kominek w projekcie |
Kotłownia duża kotłownia |
Kąt nachylenia dachu 22 ° |
Strop gęstożebrowy |
Szerokość budynku 16.3 m |
Taras z tarasem |
Kalenica prostopadła do drogi |
Długość budynku 10.9 m |
Rodzaj garażu przyklejony |
Piwnica bez podpiwniczenia |
Funkcje dodatkowe z dwoma wejściami |
Koszty budowy 300-350 tys., tylko z kosztorysem |
Ilość pokoi 3 |
Powierzchnia zabudowy 165.53 m² |
Garaż 2 stanowiska |
Szerokość działki 23.3 m |
Typ domu jednorodzinny całoroczny |
Rodzaj dachu wielospadowy |
Powierzchnia dachu 202 m² |
Długość działki 17.9 m |
Wysokość budynku 8.72 m |
Kominek kominek w projekcie |
Kąt nachylenia dachu 22 ° |
Szerokość budynku 16.3 m |
Kalenica prostopadła do drogi |
Rodzaj garażu przyklejony |
Funkcje dodatkowe z dwoma wejściami |
Pow. użytkowa 122.63 m² |
Kondygnacje piętrowy |
Technologia murowany |
Obiekt dom |
Kubatura 537.71 m³ |
Ogrzewanie gaz, paliwo stałe, pompa ciepła |
Przechowywanie w kuchni spiżarnia |
Liczba łazieniek 2 |
Styl budynku nowoczesny |
Kotłownia duża kotłownia |
Strop gęstożebrowy |
Taras z tarasem |
Długość budynku 10.9 m |
Piwnica bez podpiwniczenia |
Koszty budowy 300-350 tys., tylko z kosztorysem |
Kupując projekt w technologii murowanej powinieneś budować dom murowany. Zupełna zmiana technologii na szkieletową wymaga przeprojektowania całego budynku ( zmieniają się obciążenia, fundamenty, konstrukcja dachu). Wydamy zgodę na takie przeprojektowanie jednak wiążę się to z dużymi kosztami. Istnieją firmy wykonawcze, które podejmują się zmiany technologii budowy bezpłatnie przy skorzystaniu z ich usług wykonawczych. Zdarza się, że pracownia architektoniczna przygotowuje warianty konkretnego projektu przewidując także inne technologie. Prosimy o sprawdzenie czy istnieje poszukiwana wersja projektu, w zakładce - warianty projektu.
Zwężenie/poszerzenie budynku* to nic innego jak zmiana w projekcie. Istnieje możliwość wprowadzenia takich zmian, we własnym zakresie (podczas adaptacji). *zwężenie/poszerzenie budynku nie powinno stanowić problemu w przypadku domów o dachu dwuspadowym jeśli wiąże się to z wydłużeniem/skróceniem kalenicy dachu.
Poznaj praktyczne porady ekspertów, które ułatwią Ci każdy etap budowy i od wyboru wymarzonego domu po jego wykończenie. Zyskaj pewność, że podejmujesz najlepsze decyzje dzięki sprawdzonym wskazówkom od specjalistów z planz.pl
Wycena szacunkowa, w kwotach netto, nie zawiera instalacji.
bezpłatnie (0zł)
przelew zwykły / PayNow
przy odbiorze
3-5 dni roboczych (jeśli projekt nie wymaga aktualizacji)
Wybierz wygodny dla Ciebie czas kontaktu z naszym Doradcą Technicznym.