L-58 z bali



Wypełnij formularz i otrzymaj rysunki w pdf z dokładnymi wymiarami budynku i pomieszczeń (długość, szerokość, wysokość) dla projektu Ranczo
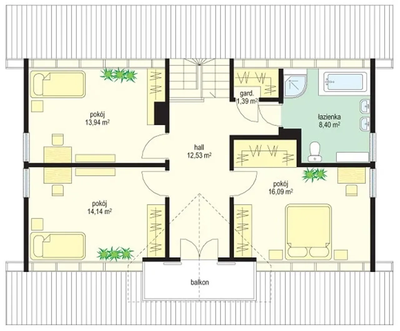
Pow. użytkowa 122.14 m² |
Ilość pokoi 4 |
Kondygnacje parterowy+poddasze |
Garaż bez garażu |
Technologia z bali |
Szerokość działki 20 m |
Obiekt dom |
Typ domu jednorodzinny całoroczny |
Kąt nachylenia dachu 45 ° |
Rodzaj dachu dwuspadowy |
Liczba łazieniek 2 |
Kubatura 429 m³ |
Kominek kominek w projekcie |
Powierzchnia dachu 201.16 m² |
Taras z tarasem |
Wysokość budynku 8.5 m |
Piwnica bez podpiwniczenia |
Styl budynku tradycyjny |
Długość działki 16.01 m |
Koszty budowy 300-350 tys., tylko z kosztorysem |
Pow. użytkowa 122.14 m² |
Kondygnacje parterowy+poddasze |
Technologia z bali |
Obiekt dom |
Kąt nachylenia dachu 45 ° |
Liczba łazieniek 2 |
Kominek kominek w projekcie |
Taras z tarasem |
Piwnica bez podpiwniczenia |
Długość działki 16.01 m |
Ilość pokoi 4 |
Garaż bez garażu |
Szerokość działki 20 m |
Typ domu jednorodzinny całoroczny |
Rodzaj dachu dwuspadowy |
Kubatura 429 m³ |
Powierzchnia dachu 201.16 m² |
Wysokość budynku 8.5 m |
Styl budynku tradycyjny |
Koszty budowy 300-350 tys., tylko z kosztorysem |
Kupując projekt w technologii murowanej powinieneś budować dom murowany. Zupełna zmiana technologii na szkieletową wymaga przeprojektowania całego budynku ( zmieniają się obciążenia, fundamenty, konstrukcja dachu). Wydamy zgodę na takie przeprojektowanie jednak wiążę się to z dużymi kosztami. Istnieją firmy wykonawcze, które podejmują się zmiany technologii budowy bezpłatnie przy skorzystaniu z ich usług wykonawczych. Zdarza się, że pracownia architektoniczna przygotowuje warianty konkretnego projektu przewidując także inne technologie. Prosimy o sprawdzenie czy istnieje poszukiwana wersja projektu, w zakładce - warianty projektu.
Zwężenie/poszerzenie budynku* to nic innego jak zmiana w projekcie. Istnieje możliwość wprowadzenia takich zmian, we własnym zakresie (podczas adaptacji). *zwężenie/poszerzenie budynku nie powinno stanowić problemu w przypadku domów o dachu dwuspadowym jeśli wiąże się to z wydłużeniem/skróceniem kalenicy dachu.
Poznaj praktyczne porady ekspertów, które ułatwią Ci każdy etap budowy i od wyboru wymarzonego domu po jego wykończenie. Zyskaj pewność, że podejmujesz najlepsze decyzje dzięki sprawdzonym wskazówkom od specjalistów z planz.pl
Wycena szacunkowa, w kwotach netto, nie zawiera instalacji.
bezpłatnie (0zł)
przelew zwykły / PayNow
przy odbiorze
3-10 dni roboczych
Wybierz wygodny dla Ciebie czas kontaktu z naszym Doradcą Technicznym.