Qubik



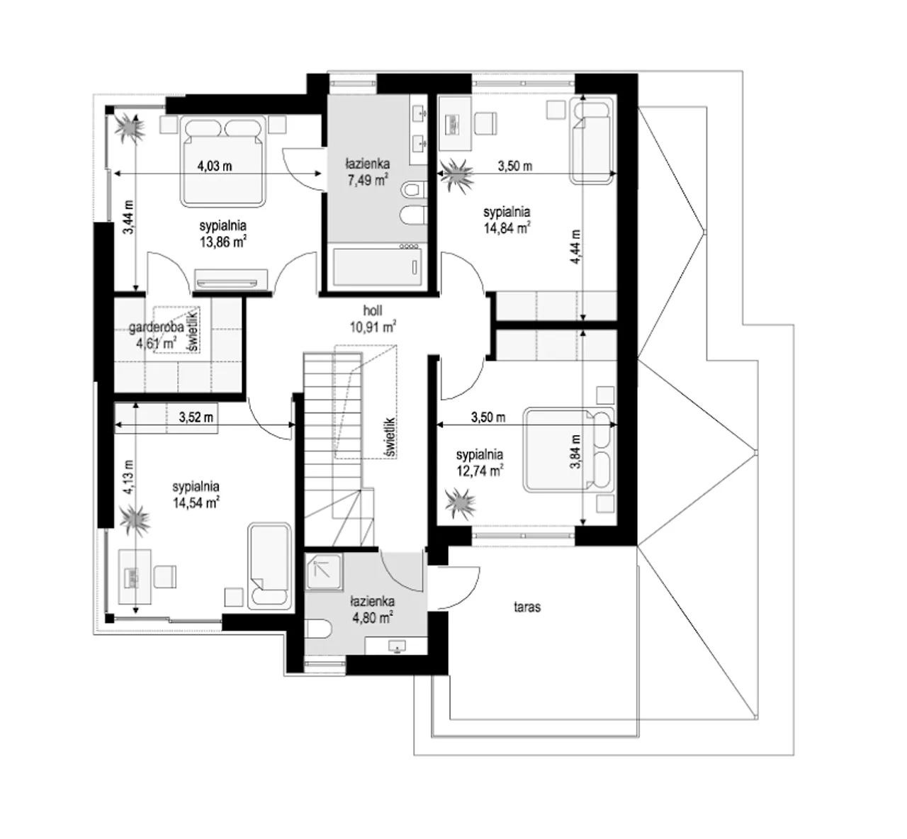
1. Holl | 10,91 m² |
2. łazienka | 4,80 m² |
3. Sypialnia | 14,54 m² |
4. Garderoba | 4,61 m² |
5. Sypialnia | 13,86 m² |
6. łazienka | 7,49 m² |
7. Sypialnia | 14,84 m² |
8. Sypialnia | 12,74 m² |
Wypełnij formularz i otrzymaj rysunki w pdf z dokładnymi wymiarami budynku i pomieszczeń (długość, szerokość, wysokość) dla projektu Qubik 4
Pow. użytkowa 165.03 m² |
Ilość pokoi 6 |
Kondygnacje piętrowy |
Garaż 2 stanowiska |
Technologia murowany |
Szerokość działki 20.58 m |
Obiekt dom |
Typ domu jednorodzinny całoroczny |
Wysokość budynku 7.25 m |
Strop żelbetowy |
Długość działki 21.22 m |
Kalenica bez znaczenia |
Liczba łazieniek 3 |
Funkcje dodatkowe z wykuszem |
Szerokość budynku 13.58 m |
Rodzaj garażu w bryle |
Kominek kominek opcjonalnie |
Długość budynku 13.22 m |
Rodzaj dachu płaski |
Taras z tarasem |
Kubatura 887 m³ |
Piwnica bez podpiwniczenia |
Powierzchnia dachu 144.58 m² |
Styl budynku nowoczesny |
Pow. użytkowa 165.03 m² |
Kondygnacje piętrowy |
Technologia murowany |
Obiekt dom |
Wysokość budynku 7.25 m |
Długość działki 21.22 m |
Liczba łazieniek 3 |
Szerokość budynku 13.58 m |
Kominek kominek opcjonalnie |
Rodzaj dachu płaski |
Kubatura 887 m³ |
Powierzchnia dachu 144.58 m² |
Ilość pokoi 6 |
Garaż 2 stanowiska |
Szerokość działki 20.58 m |
Typ domu jednorodzinny całoroczny |
Strop żelbetowy |
Kalenica bez znaczenia |
Funkcje dodatkowe z wykuszem |
Rodzaj garażu w bryle |
Długość budynku 13.22 m |
Taras z tarasem |
Piwnica bez podpiwniczenia |
Styl budynku nowoczesny |
Odkryj nowoczesny projekt domu Qubik 4, który zachwyca oryginalną bryłą i funkcjonalnością dla 6-osobowej rodziny. To propozycja dla osób poszukujących przyszłościowego stylu, dużej przestrzeni oraz wyjątkowych rozwiązań architektonicznych, takich jak wykusz czy przestronny taras. Qubik 4 wyznacza nową jakość wśród projektów domów jednorodzinnych całorocznych - zadbaj o komfort swojego życia i wyraź siebie w nowoczesnym otoczeniu.
Inwestując w ten projekt, zyskujesz nie tylko atrakcyjny wygląd, ale również solidne, sprawdzone technologie i ponadczasowe materiały. To doskonały wybór na działki miejskie i podmiejskie, gdzie liczy się funkcjonalność oraz wysokie walory estetyczne.
Dom bazuje na konstrukcji z betonowych ław fundamentowych oraz ścian z bloczków betonowych, co daje stabilność i odporność na warunki atmosferyczne. Zastosowano technologię murowaną, a ściany z pustaków silikatowych ze styropianową warstwą docieplenia skutecznie chronią Twoją rodzinę przed zimnem i upałem. Dach płaski pokryty papą z kruszywem pasuje do minimalistycznego stylu, a jednocześnie jest praktyczny i łatwy w utrzymaniu.
Wnętrze oferuje sześć obszernych pokoi, które komfortowo pomieszczą nawet dużą rodzinę. Przestrzeń dzienna z wykuszem łączy nowoczesność z funkcjonalnością. Garaż na dwa samochody znajduje się w bryle budynku - to wygodne rozwiązanie dla aktywnie żyjących rodzin. Atutem jest także monolityczny, betonowy strop nad każdym poziomem, co pozwala dowolnie aranżować wnętrza w przyszłości. Dom wybudowany na podstawie projektu Qubik 4 z pewnością wyróżni Cię w okolicy, oferując solidność i estetyczne wykończenie materiałami najwyższej klasy - od tynku, przez deski elewacyjne, po płyty elewacyjne.
Zbuduj dom, który stanie się wizytówką Twojej rodziny. Zamów projekt Qubik 4 już dziś i przekonaj się, jak wiele zyskasz!
Kupując projekt w technologii murowanej powinieneś budować dom murowany. Zupełna zmiana technologii na szkieletową wymaga przeprojektowania całego budynku ( zmieniają się obciążenia, fundamenty, konstrukcja dachu). Wydamy zgodę na takie przeprojektowanie jednak wiążę się to z dużymi kosztami. Istnieją firmy wykonawcze, które podejmują się zmiany technologii budowy bezpłatnie przy skorzystaniu z ich usług wykonawczych. Zdarza się, że pracownia architektoniczna przygotowuje warianty konkretnego projektu przewidując także inne technologie. Prosimy o sprawdzenie czy istnieje poszukiwana wersja projektu, w zakładce - warianty projektu.
Zwężenie/poszerzenie budynku* to nic innego jak zmiana w projekcie. Istnieje możliwość wprowadzenia takich zmian, we własnym zakresie (podczas adaptacji). *zwężenie/poszerzenie budynku nie powinno stanowić problemu w przypadku domów o dachu dwuspadowym jeśli wiąże się to z wydłużeniem/skróceniem kalenicy dachu.
Poznaj praktyczne porady ekspertów, które ułatwią Ci każdy etap budowy i od wyboru wymarzonego domu po jego wykończenie. Zyskaj pewność, że podejmujesz najlepsze decyzje dzięki sprawdzonym wskazówkom od specjalistów z planz.pl
bezpłatnie (0zł)
przelew zwykły / PayNow
przy odbiorze
3-10 dni roboczych
Wybierz wygodny dla Ciebie czas kontaktu z naszym Doradcą Technicznym.