Artus



1. Korytarz | 11,72 m² |
2. Pokój | 13,04 m² |
3. Pokój | 14,49 m² |
4. łazienka | 8,98 m² |
5. Pralnia | 3,45 m² |
6. Pokój | 14,85 m² |
7. Garderoba | 8,64 m² |
8. Taras | 21,36 m² |
9. Taras | 13,22 m² |
Wypełnij formularz i otrzymaj rysunki w pdf z dokładnymi wymiarami budynku i pomieszczeń (długość, szerokość, wysokość) dla projektu Porywający D67
Ilość pokoi 4 |
Pow. użytkowa 139.08 m² |
Powierzchnia zabudowy 139.65 m² |
Kondygnacje piętrowy |
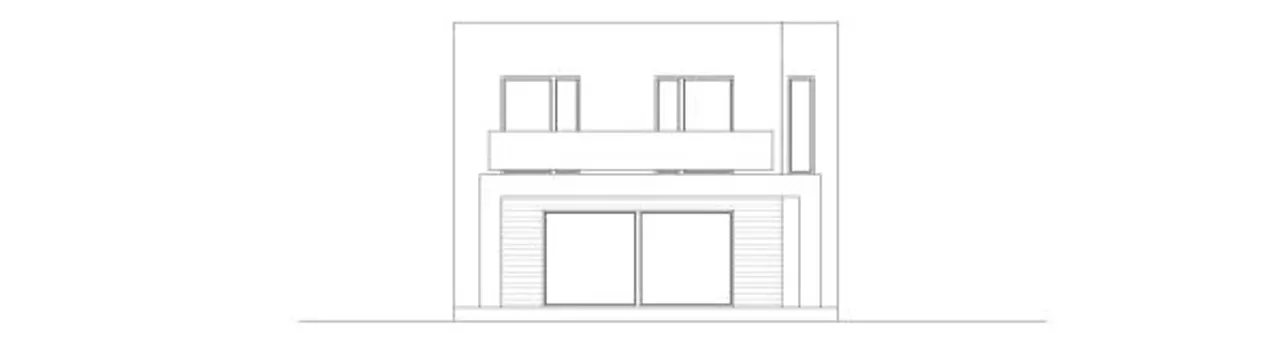
Garaż 2 stanowiska |
Technologia murowany |
Szerokość działki 15.14 m |
Obiekt dom |
Typ domu jednorodzinny całoroczny |
Strop żelbetowy |
Długość budynku 20.94 m |
Rodzaj garażu z przodu |
Piwnica bez podpiwniczenia |
Kalenica bez znaczenia |
Kubatura 484.2 m³ |
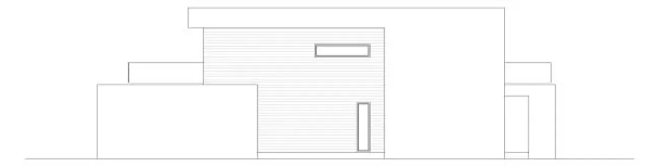
Rodzaj dachu płaski |
Ogrzewanie gaz |
Funkcje dodatkowe z pralnią |
Wysokość budynku 7.16 m |
Przechowywanie w kuchni spiżarnia |
Długość działki 28.34 m |
Liczba łazieniek 2 |
Styl budynku nowoczesny |
Kominek kominek w projekcie |
Kotłownia duża kotłownia |
Kąt nachylenia dachu 3 ° |
Szerokość budynku 8.84 m |
Taras z tarasem |
Koszty budowy 350-400 tys., tylko z kosztorysem |
Ilość pokoi 4 |
Powierzchnia zabudowy 139.65 m² |
Garaż 2 stanowiska |
Szerokość działki 15.14 m |
Typ domu jednorodzinny całoroczny |
Długość budynku 20.94 m |
Piwnica bez podpiwniczenia |
Kubatura 484.2 m³ |
Ogrzewanie gaz |
Wysokość budynku 7.16 m |
Długość działki 28.34 m |
Styl budynku nowoczesny |
Kotłownia duża kotłownia |
Szerokość budynku 8.84 m |
Koszty budowy 350-400 tys., tylko z kosztorysem |
Pow. użytkowa 139.08 m² |
Kondygnacje piętrowy |
Technologia murowany |
Obiekt dom |
Strop żelbetowy |
Rodzaj garażu z przodu |
Kalenica bez znaczenia |
Rodzaj dachu płaski |
Funkcje dodatkowe z pralnią |
Przechowywanie w kuchni spiżarnia |
Liczba łazieniek 2 |
Kominek kominek w projekcie |
Kąt nachylenia dachu 3 ° |
Taras z tarasem |
Kupując projekt w technologii murowanej powinieneś budować dom murowany. Zupełna zmiana technologii na szkieletową wymaga przeprojektowania całego budynku ( zmieniają się obciążenia, fundamenty, konstrukcja dachu). Wydamy zgodę na takie przeprojektowanie jednak wiążę się to z dużymi kosztami. Istnieją firmy wykonawcze, które podejmują się zmiany technologii budowy bezpłatnie przy skorzystaniu z ich usług wykonawczych. Zdarza się, że pracownia architektoniczna przygotowuje warianty konkretnego projektu przewidując także inne technologie. Prosimy o sprawdzenie czy istnieje poszukiwana wersja projektu, w zakładce - warianty projektu.
Zwężenie/poszerzenie budynku* to nic innego jak zmiana w projekcie. Istnieje możliwość wprowadzenia takich zmian, we własnym zakresie (podczas adaptacji). *zwężenie/poszerzenie budynku nie powinno stanowić problemu w przypadku domów o dachu dwuspadowym jeśli wiąże się to z wydłużeniem/skróceniem kalenicy dachu.
Poznaj praktyczne porady ekspertów, które ułatwią Ci każdy etap budowy i od wyboru wymarzonego domu po jego wykończenie. Zyskaj pewność, że podejmujesz najlepsze decyzje dzięki sprawdzonym wskazówkom od specjalistów z planz.pl
Wycena szacunkowa, w kwotach netto, nie zawiera instalacji.
bezpłatnie (0zł)
przelew zwykły / PayNow
przy odbiorze
3-5 dni roboczych (jeśli projekt nie jest koncepcją)
Wybierz wygodny dla Ciebie czas kontaktu z naszym Doradcą Technicznym.