Halifax



1. Wiatrołap | 9,65 m² |
2. Korytarz / komunikacja | 8,04 m² |
3. Spiżarnia | 5,16 m² |
4. Kuchnia | 19,85 m² |
5. Pokój dzienny + jadalnia | 37,35 m² |
6. Sypialnia | 16,92 m² |
7. Garderoba | 8,27 m² |
8. łazienka | 6,37 m² |
9. Wc | 2,25 m² |
10. Kotłownia | 10,15 m² |
11. Garaż | 39,94 m² |
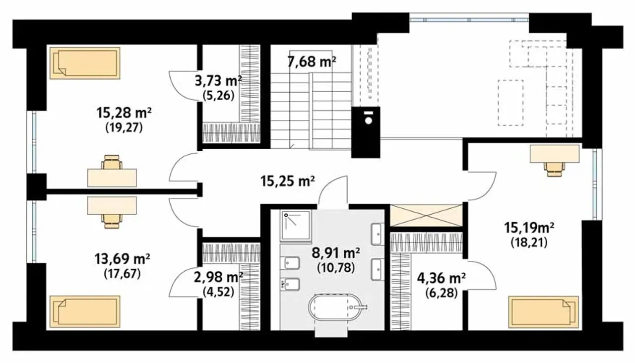
1. Korytarz / komunikacja | 15,25 m² |
2. łazienka | 8,91 (10,78) m² |
3. Garderoba | 2,98 (4,52) m² |
4. Sypialnia | 13,69 (17,69) m² |
5. Sypialnia | 15,28 (19,27) m² |
6. Garderoba | 3,73 (5,26) m² |
7. Sypialnia | 15,19 (18,21) m² |
8. Garderoba | 4,36 (6,28) m² |
9. Schody | 7,68 m² |
Wypełnij formularz i otrzymaj rysunki w pdf z dokładnymi wymiarami budynku i pomieszczeń (długość, szerokość, wysokość) dla projektu Piko
Pow. użytkowa 211.08 m² |
Ilość pokoi 5 |
Powierzchnia zabudowy 210.97 m² |
Kondygnacje parterowy+poddasze |
Garaż 2 stanowiska |
Technologia murowany |
Szerokość działki 25.95 m |
Obiekt dom |
Typ domu jednorodzinny całoroczny |
Szerokość budynku 17.95 m |
Kotłownia duża kotłownia |
Kąt nachylenia dachu 35 ° |
Długość budynku 17 m |
Piwnica bez podpiwniczenia |
Kubatura 1266.42 m³ |
Rodzaj garażu z przodu |
Strop żelbetowy |
Powierzchnia dachu 238.36 m² |
Rodzaj dachu dwuspadowy |
Długość działki 25 m |
Kalenica równoległa do drogi |
Wysokość budynku 8.26 m |
Przechowywanie w kuchni spiżarnia |
Bryła budynku prosta bryła |
Funkcje dodatkowe z lukarnami |
Liczba łazieniek 2 |
Styl budynku wille i rezydencje |
Kominek kominek w projekcie |
Koszty budowy 500-550 tys., tylko z kosztorysem |
Pow. użytkowa 211.08 m² |
Powierzchnia zabudowy 210.97 m² |
Garaż 2 stanowiska |
Szerokość działki 25.95 m |
Typ domu jednorodzinny całoroczny |
Kotłownia duża kotłownia |
Długość budynku 17 m |
Kubatura 1266.42 m³ |
Strop żelbetowy |
Rodzaj dachu dwuspadowy |
Kalenica równoległa do drogi |
Przechowywanie w kuchni spiżarnia |
Funkcje dodatkowe z lukarnami |
Styl budynku wille i rezydencje |
Koszty budowy 500-550 tys., tylko z kosztorysem |
Ilość pokoi 5 |
Kondygnacje parterowy+poddasze |
Technologia murowany |
Obiekt dom |
Szerokość budynku 17.95 m |
Kąt nachylenia dachu 35 ° |
Piwnica bez podpiwniczenia |
Rodzaj garażu z przodu |
Powierzchnia dachu 238.36 m² |
Długość działki 25 m |
Wysokość budynku 8.26 m |
Bryła budynku prosta bryła |
Liczba łazieniek 2 |
Kominek kominek w projekcie |
Kupując projekt w technologii murowanej powinieneś budować dom murowany. Zupełna zmiana technologii na szkieletową wymaga przeprojektowania całego budynku ( zmieniają się obciążenia, fundamenty, konstrukcja dachu). Wydamy zgodę na takie przeprojektowanie jednak wiążę się to z dużymi kosztami. Istnieją firmy wykonawcze, które podejmują się zmiany technologii budowy bezpłatnie przy skorzystaniu z ich usług wykonawczych. Zdarza się, że pracownia architektoniczna przygotowuje warianty konkretnego projektu przewidując także inne technologie. Prosimy o sprawdzenie czy istnieje poszukiwana wersja projektu, w zakładce - warianty projektu.
Zwężenie/poszerzenie budynku* to nic innego jak zmiana w projekcie. Istnieje możliwość wprowadzenia takich zmian, we własnym zakresie (podczas adaptacji). *zwężenie/poszerzenie budynku nie powinno stanowić problemu w przypadku domów o dachu dwuspadowym jeśli wiąże się to z wydłużeniem/skróceniem kalenicy dachu.
Poznaj praktyczne porady ekspertów, które ułatwią Ci każdy etap budowy i od wyboru wymarzonego domu po jego wykończenie. Zyskaj pewność, że podejmujesz najlepsze decyzje dzięki sprawdzonym wskazówkom od specjalistów z planz.pl
Wycena szacunkowa, w kwotach netto, nie zawiera instalacji.
bezpłatnie (0zł)
przelew zwykły / PayNow
przy odbiorze
3-5 dni roboczych (jeśli projekt nie jest koncepcją)
Wybierz wygodny dla Ciebie czas kontaktu z naszym Doradcą Technicznym.