Figa Neo



1. Wiatrołap | 2,73 m² |
2. Komunikacja | 8,42 m² |
3. Kuchnia z aneksem jadalnym | 10,40 m² |
4. Pokój dzienny | 23,40 m² |
5. Wc | 3,98 m² |
6. Kotłownia | 3,60 m² |
7. Skład na drewno | 2,00 m² |
8. Garaż* | 23,13 m² |
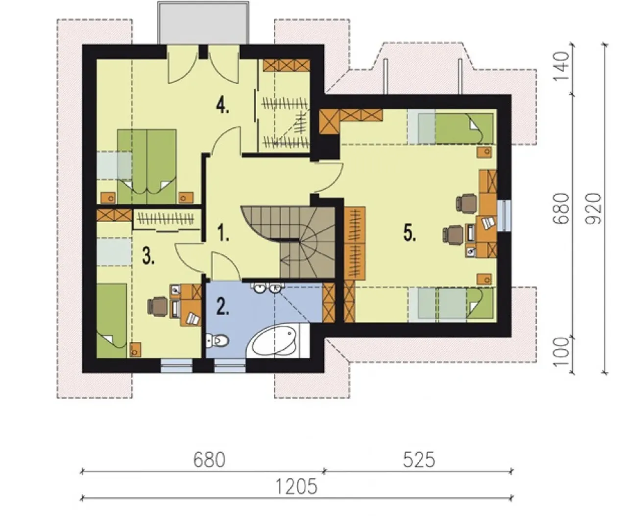
1. Komunikacja | 9,81 m² |
2. łazienka | 4,33 m² |
3. Pokój | 8,19 m² |
4. Sypialnia z garderobą | 13,62 m² |
5. Pokój | 18,00 m² |
Wypełnij formularz i otrzymaj rysunki w pdf z dokładnymi wymiarami budynku i pomieszczeń (długość, szerokość, wysokość) dla projektu Palanka
Pow. użytkowa 102.88 m² |
Ilość pokoi 4 |
Powierzchnia zabudowy 98.26 m² |
Kondygnacje parterowy+poddasze |
Garaż 1 stanowisko |
Technologia murowany |
Szerokość działki 20.05 m |
Obiekt dom |
Typ domu jednorodzinny całoroczny |
Wysokość budynku 7.7 m |
Piwnica bez podpiwniczenia |
Kąt nachylenia dachu 43 ° |
Długość działki 19.8 m |
Rodzaj dachu dwuspadowy |
Liczba łazieniek 2 |
Kubatura 635 m³ |
Kominek kominek w projekcie |
Styl budynku tradycyjny |
Koszty budowy tylko z kosztorysem, 250-300 tys. |
Pow. użytkowa 102.88 m² |
Powierzchnia zabudowy 98.26 m² |
Garaż 1 stanowisko |
Szerokość działki 20.05 m |
Typ domu jednorodzinny całoroczny |
Piwnica bez podpiwniczenia |
Długość działki 19.8 m |
Liczba łazieniek 2 |
Kominek kominek w projekcie |
Koszty budowy tylko z kosztorysem, 250-300 tys. |
Ilość pokoi 4 |
Kondygnacje parterowy+poddasze |
Technologia murowany |
Obiekt dom |
Wysokość budynku 7.7 m |
Kąt nachylenia dachu 43 ° |
Rodzaj dachu dwuspadowy |
Kubatura 635 m³ |
Styl budynku tradycyjny |
Kupując projekt w technologii murowanej powinieneś budować dom murowany. Zupełna zmiana technologii na szkieletową wymaga przeprojektowania całego budynku ( zmieniają się obciążenia, fundamenty, konstrukcja dachu). Wydamy zgodę na takie przeprojektowanie jednak wiążę się to z dużymi kosztami. Istnieją firmy wykonawcze, które podejmują się zmiany technologii budowy bezpłatnie przy skorzystaniu z ich usług wykonawczych. Zdarza się, że pracownia architektoniczna przygotowuje warianty konkretnego projektu przewidując także inne technologie. Prosimy o sprawdzenie czy istnieje poszukiwana wersja projektu, w zakładce - warianty projektu.
Zwężenie/poszerzenie budynku* to nic innego jak zmiana w projekcie. Istnieje możliwość wprowadzenia takich zmian, we własnym zakresie (podczas adaptacji). *zwężenie/poszerzenie budynku nie powinno stanowić problemu w przypadku domów o dachu dwuspadowym jeśli wiąże się to z wydłużeniem/skróceniem kalenicy dachu.
Poznaj praktyczne porady ekspertów, które ułatwią Ci każdy etap budowy i od wyboru wymarzonego domu po jego wykończenie. Zyskaj pewność, że podejmujesz najlepsze decyzje dzięki sprawdzonym wskazówkom od specjalistów z planz.pl
Wycena szacunkowa, w kwotach netto, nie zawiera instalacji.
bezpłatnie (0zł)
przelew zwykły / PayNow
przy odbiorze
3-5 dni roboczych (jeśli projekt nie wymaga aktualizacji)
Wybierz wygodny dla Ciebie czas kontaktu z naszym Doradcą Technicznym.