Jaworki 9



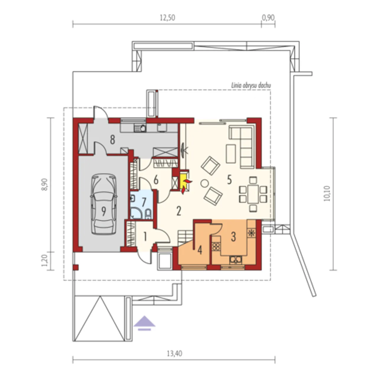
1. Wiatrołap | 2,91 m² |
2. Hol | 9,68 m² |
3. Kuchnia | 8,71 m² |
4. Spiżarnia | 1,32 m² |
5. Pokój dzienny, jadalnia | 35,72 m² |
6. Garderoba | 6,02 m² |
7. łazienka | 2,80 m² |
8. Pom. gospodarcze | 13,60 m² |
9. Garaż | 18,84 m² |
1. Korytarz | 3,31 m² |
2. Hol | 7,18 m² |
3. Sypialnia | 17,24 m² |
4. Garderoba | 1,86 m² |
5. Sypialnia | 10,21 m² |
6. Sypialnia | 10,21 m² |
7. Gabinet (sypialnia) | 9,43 m² |
8. łazienka | 6,39 m² |
9. Toaleta | 3,15 m² |
Wypełnij formularz i otrzymaj rysunki w pdf z dokładnymi wymiarami budynku i pomieszczeń (długość, szerokość, wysokość) dla projektu Pablo II G1
Pow. użytkowa 139.43 m² |
Ilość pokoi 5 |
Powierzchnia zabudowy 129.67 m² |
Kondygnacje parterowy+poddasze |
Garaż 1 stanowisko |
Technologia murowany |
Szerokość działki 21.4 m |
Obiekt dom |
Typ domu jednorodzinny całoroczny |
Wysokość budynku 8.49 m |
Przechowywanie w kuchni spiżarnia |
Bryła budynku prosta bryła |
Styl budynku tradycyjny |
Liczba łazieniek 2 |
Szerokość budynku 13.4 m |
Kominek kominek w projekcie |
Kąt nachylenia dachu 38 ° |
Długość budynku 10.1 m |
Piwnica bez podpiwniczenia |
Strop gęstożebrowy |
Kubatura 525.56 m³ |
Rodzaj garażu w bryle |
Kalenica równoległa do drogi |
Powierzchnia dachu 176.38 m² |
Rodzaj dachu dwuspadowy |
Długość działki 18.1 m |
Funkcje dodatkowe z wykuszem |
Koszty budowy 300-350 tys., tylko z kosztorysem |
Pow. użytkowa 139.43 m² |
Powierzchnia zabudowy 129.67 m² |
Garaż 1 stanowisko |
Szerokość działki 21.4 m |
Typ domu jednorodzinny całoroczny |
Przechowywanie w kuchni spiżarnia |
Styl budynku tradycyjny |
Szerokość budynku 13.4 m |
Kąt nachylenia dachu 38 ° |
Piwnica bez podpiwniczenia |
Kubatura 525.56 m³ |
Kalenica równoległa do drogi |
Rodzaj dachu dwuspadowy |
Funkcje dodatkowe z wykuszem |
Ilość pokoi 5 |
Kondygnacje parterowy+poddasze |
Technologia murowany |
Obiekt dom |
Wysokość budynku 8.49 m |
Bryła budynku prosta bryła |
Liczba łazieniek 2 |
Kominek kominek w projekcie |
Długość budynku 10.1 m |
Strop gęstożebrowy |
Rodzaj garażu w bryle |
Powierzchnia dachu 176.38 m² |
Długość działki 18.1 m |
Koszty budowy 300-350 tys., tylko z kosztorysem |
Kupując projekt w technologii murowanej powinieneś budować dom murowany. Zupełna zmiana technologii na szkieletową wymaga przeprojektowania całego budynku ( zmieniają się obciążenia, fundamenty, konstrukcja dachu). Wydamy zgodę na takie przeprojektowanie jednak wiążę się to z dużymi kosztami. Istnieją firmy wykonawcze, które podejmują się zmiany technologii budowy bezpłatnie przy skorzystaniu z ich usług wykonawczych. Zdarza się, że pracownia architektoniczna przygotowuje warianty konkretnego projektu przewidując także inne technologie. Prosimy o sprawdzenie czy istnieje poszukiwana wersja projektu, w zakładce - warianty projektu.
Zwężenie/poszerzenie budynku* to nic innego jak zmiana w projekcie. Istnieje możliwość wprowadzenia takich zmian, we własnym zakresie (podczas adaptacji). *zwężenie/poszerzenie budynku nie powinno stanowić problemu w przypadku domów o dachu dwuspadowym jeśli wiąże się to z wydłużeniem/skróceniem kalenicy dachu.
Poznaj praktyczne porady ekspertów, które ułatwią Ci każdy etap budowy i od wyboru wymarzonego domu po jego wykończenie. Zyskaj pewność, że podejmujesz najlepsze decyzje dzięki sprawdzonym wskazówkom od specjalistów z planz.pl
Wycena szacunkowa, w kwotach netto, nie zawiera instalacji.
bezpłatnie (0zł)
przelew zwykły / PayNow
przy odbiorze
3-5 dni roboczych (jeśli projekt nie wymaga aktualizacji)
Projekt domu "Pablo II G1" Archipelag przyciąga moją uwagę swoją unikalną estetyką i przemyślanym planem. Wydaje się być praktycznym i jednocześnie urokliwym domem dla każdej rodziny.
Wybierz wygodny dla Ciebie czas kontaktu z naszym Doradcą Technicznym.