Noelia



1. Komunikacja | 5,06 m² |
2. Pokój | 12,21 (17,93) m² |
3. Pokój | 13,37 (19,02) m² |
4. Pokój | 13,54 (17,58) m² |
5. łazienka | 9,77 (13,48) m² |
6. Strych (pokój/pracownia) | 30,32 (42,81) m² |
Wypełnij formularz i otrzymaj rysunki w pdf z dokładnymi wymiarami budynku i pomieszczeń (długość, szerokość, wysokość) dla projektu Noelia Bis 2M z wykuszem
Pow. użytkowa 133.38 m² |
Ilość pokoi 5 |
Powierzchnia zabudowy 153.07 m² |
Kondygnacje parterowy+poddasze |
Garaż 2 stanowiska |
Technologia murowany |
Szerokość działki 23.34 m |
Obiekt dom |
Typ domu jednorodzinny całoroczny |
Kalenica prostopadła do drogi |
Powierzchnia dachu 254.15 m² |
Rodzaj garażu przyklejony |
Długość działki 19.64 m |
Ogrzewanie gaz, pompa ciepła |
Liczba łazieniek 2 |
Funkcje dodatkowe ze strychem |
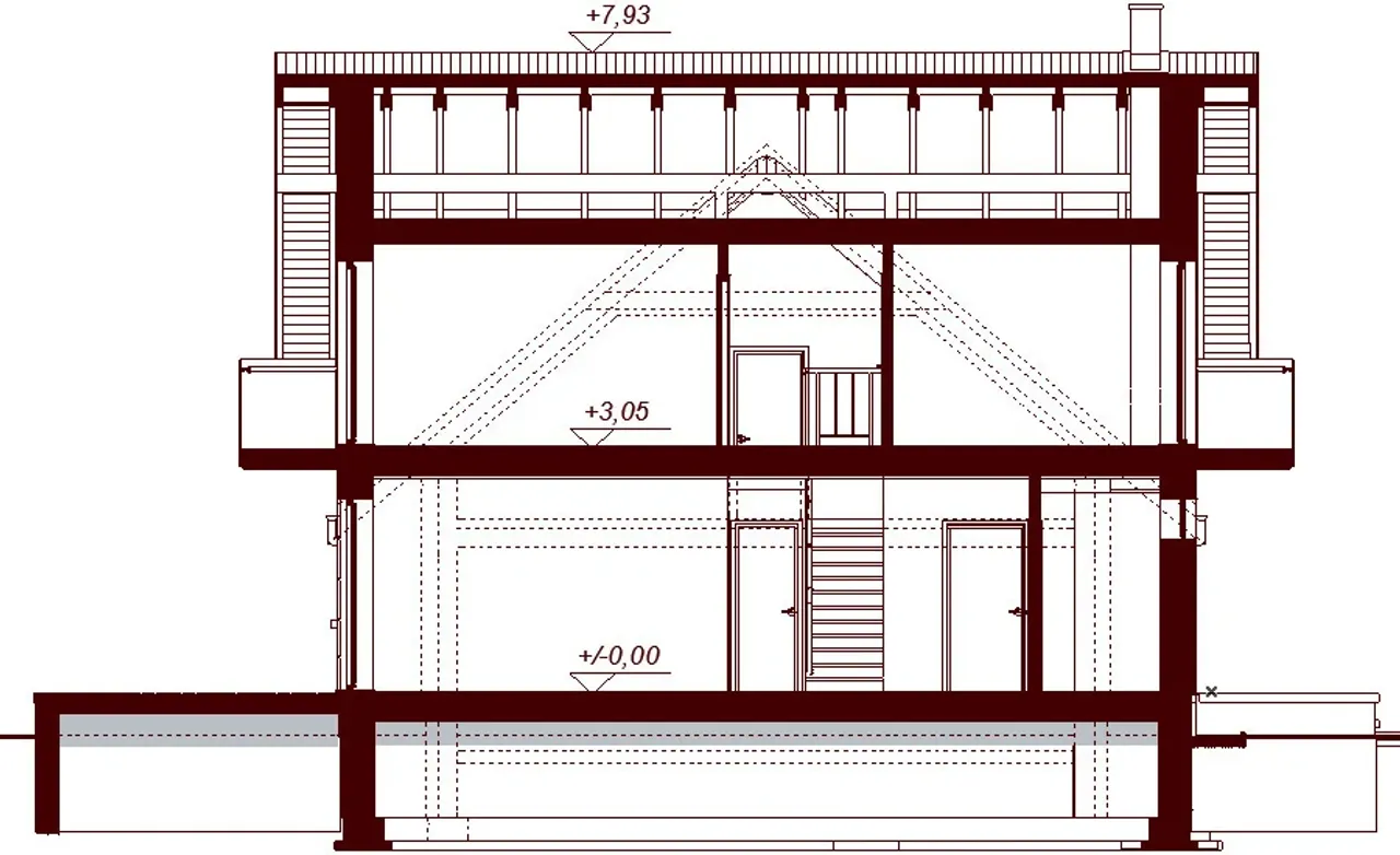
Wysokość budynku 8.49 m |
Rodzaj dachu dwuspadowy |
Kominek kominek w projekcie |
Przechowywanie w kuchni spiżarnia |
Bryła budynku prosta bryła |
Kotłownia duża kotłownia |
Szerokość budynku 16.34 m |
Styl budynku nowoczesny |
Taras z tarasem |
Kąt nachylenia dachu 40 ° |
Długość budynku 10.64 m |
Piwnica bez podpiwniczenia |
Strop gęstożebrowy |
Kubatura 556.02 m³ |
Koszty budowy 300-350 tys., tylko z kosztorysem |
Pow. użytkowa 133.38 m² |
Powierzchnia zabudowy 153.07 m² |
Garaż 2 stanowiska |
Szerokość działki 23.34 m |
Typ domu jednorodzinny całoroczny |
Powierzchnia dachu 254.15 m² |
Długość działki 19.64 m |
Liczba łazieniek 2 |
Wysokość budynku 8.49 m |
Kominek kominek w projekcie |
Bryła budynku prosta bryła |
Szerokość budynku 16.34 m |
Taras z tarasem |
Długość budynku 10.64 m |
Strop gęstożebrowy |
Koszty budowy 300-350 tys., tylko z kosztorysem |
Ilość pokoi 5 |
Kondygnacje parterowy+poddasze |
Technologia murowany |
Obiekt dom |
Kalenica prostopadła do drogi |
Rodzaj garażu przyklejony |
Ogrzewanie gaz, pompa ciepła |
Funkcje dodatkowe ze strychem |
Rodzaj dachu dwuspadowy |
Przechowywanie w kuchni spiżarnia |
Kotłownia duża kotłownia |
Styl budynku nowoczesny |
Kąt nachylenia dachu 40 ° |
Piwnica bez podpiwniczenia |
Kubatura 556.02 m³ |
Kupując projekt w technologii murowanej powinieneś budować dom murowany. Zupełna zmiana technologii na szkieletową wymaga przeprojektowania całego budynku ( zmieniają się obciążenia, fundamenty, konstrukcja dachu). Wydamy zgodę na takie przeprojektowanie jednak wiążę się to z dużymi kosztami. Istnieją firmy wykonawcze, które podejmują się zmiany technologii budowy bezpłatnie przy skorzystaniu z ich usług wykonawczych. Zdarza się, że pracownia architektoniczna przygotowuje warianty konkretnego projektu przewidując także inne technologie. Prosimy o sprawdzenie czy istnieje poszukiwana wersja projektu, w zakładce - warianty projektu.
Zwężenie/poszerzenie budynku* to nic innego jak zmiana w projekcie. Istnieje możliwość wprowadzenia takich zmian, we własnym zakresie (podczas adaptacji). *zwężenie/poszerzenie budynku nie powinno stanowić problemu w przypadku domów o dachu dwuspadowym jeśli wiąże się to z wydłużeniem/skróceniem kalenicy dachu.
Poznaj praktyczne porady ekspertów, które ułatwią Ci każdy etap budowy i od wyboru wymarzonego domu po jego wykończenie. Zyskaj pewność, że podejmujesz najlepsze decyzje dzięki sprawdzonym wskazówkom od specjalistów z planz.pl
Wycena szacunkowa, w kwotach netto, nie zawiera instalacji.
bezpłatnie (0zł)
przelew zwykły / PayNow
przy odbiorze
2-5 dni roboczych
"Zdecydowanie klasyczne podejście z nutą nowoczesności. Ciekawym rozwiązaniem jest wykusz w fasadzie, nadaje on domowi unikalnego charakteru."
Wybierz wygodny dla Ciebie czas kontaktu z naszym Doradcą Technicznym.