Nikolas G2



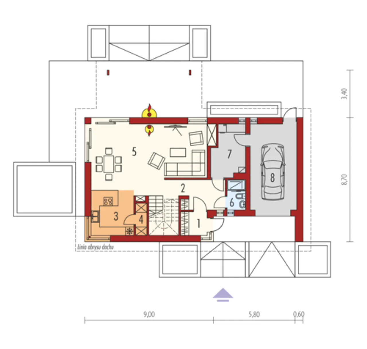
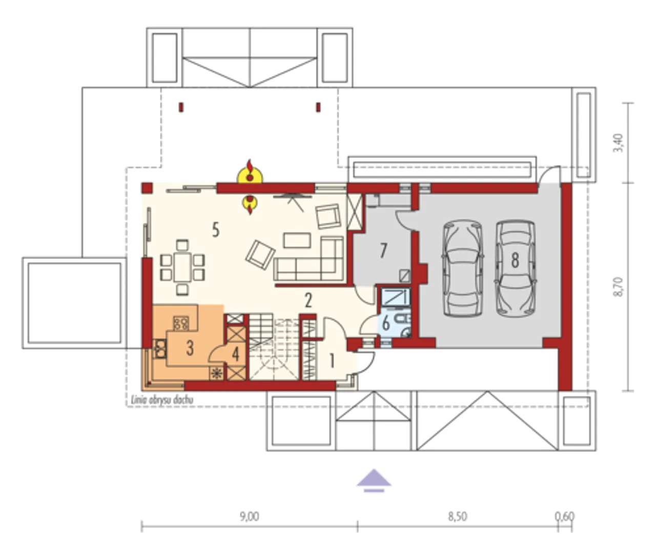
1. Wiatrołap | 3,74 m² |
2. Hol + schody | 16,35 m² |
3. Kuchnia | 9,47 m² |
4. Spiżarnia | 1,77 m² |
5. Pokój dzienny + jadalnia | 37,29 m² |
6. łazienka | 3,28 m² |
7. Kotłownia | 9,90 m² |
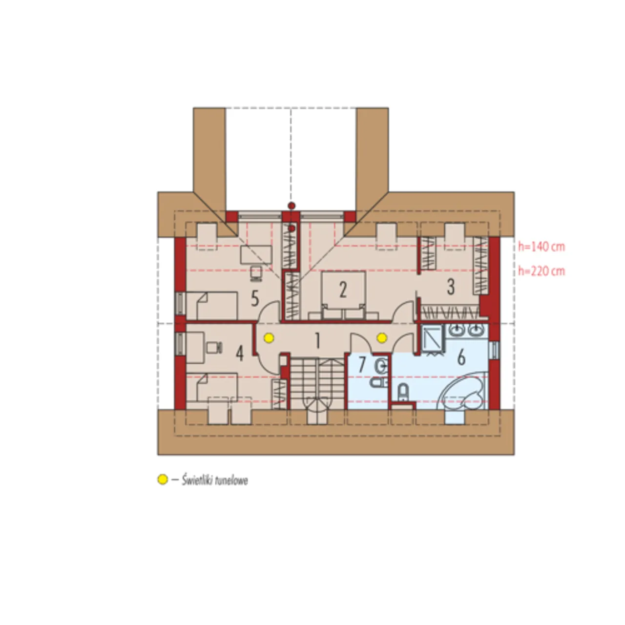
1. Korytarz | 7,49 m² |
2. Sypialnia | 12,86 m² |
3. Garderoba | 5,94 m² |
4. Sypialnia | 8,17 m² |
5. Sypialnia | 10,93 m² |
6. łazienka | 8,12 m² |
7. Toaleta | 2,00 m² |
Wypełnij formularz i otrzymaj rysunki w pdf z dokładnymi wymiarami budynku i pomieszczeń (długość, szerokość, wysokość) dla projektu Nikolas
Ilość pokoi 4 |
Pow. użytkowa 127.41 m² |
Powierzchnia zabudowy 130.94 m² |
Kondygnacje parterowy+poddasze |
Garaż bez garażu |
Technologia murowany |
Szerokość działki 20.7 m |
Obiekt dom |
Typ domu jednorodzinny całoroczny |
Strop gęstożebrowy |
Długość budynku 12.1 m |
Piwnica bez podpiwniczenia |
Kalenica równoległa do drogi |
Kubatura 505.28 m³ |
Funkcje dodatkowe z lukarnami |
Powierzchnia dachu 210 m² |
Rodzaj dachu dwuspadowy |
Długość działki 18.3 m |
Ogrzewanie gaz, paliwo stałe, pompa ciepła |
Liczba łazieniek 2 |
Wysokość budynku 8.17 m |
Przechowywanie w kuchni spiżarnia |
Kominek kominek w projekcie |
Bryła budynku prosta bryła |
Kotłownia duża kotłownia |
Szerokość budynku 12.7 m |
Styl budynku nowoczesny |
Taras z tarasem |
Kąt nachylenia dachu 40 ° |
Koszty budowy 300-350 tys., tylko z kosztorysem |
Ilość pokoi 4 |
Powierzchnia zabudowy 130.94 m² |
Garaż bez garażu |
Szerokość działki 20.7 m |
Typ domu jednorodzinny całoroczny |
Długość budynku 12.1 m |
Kalenica równoległa do drogi |
Funkcje dodatkowe z lukarnami |
Rodzaj dachu dwuspadowy |
Ogrzewanie gaz, paliwo stałe, pompa ciepła |
Wysokość budynku 8.17 m |
Kominek kominek w projekcie |
Kotłownia duża kotłownia |
Styl budynku nowoczesny |
Kąt nachylenia dachu 40 ° |
Pow. użytkowa 127.41 m² |
Kondygnacje parterowy+poddasze |
Technologia murowany |
Obiekt dom |
Strop gęstożebrowy |
Piwnica bez podpiwniczenia |
Kubatura 505.28 m³ |
Powierzchnia dachu 210 m² |
Długość działki 18.3 m |
Liczba łazieniek 2 |
Przechowywanie w kuchni spiżarnia |
Bryła budynku prosta bryła |
Szerokość budynku 12.7 m |
Taras z tarasem |
Koszty budowy 300-350 tys., tylko z kosztorysem |
Kupując projekt w technologii murowanej powinieneś budować dom murowany. Zupełna zmiana technologii na szkieletową wymaga przeprojektowania całego budynku ( zmieniają się obciążenia, fundamenty, konstrukcja dachu). Wydamy zgodę na takie przeprojektowanie jednak wiążę się to z dużymi kosztami. Istnieją firmy wykonawcze, które podejmują się zmiany technologii budowy bezpłatnie przy skorzystaniu z ich usług wykonawczych. Zdarza się, że pracownia architektoniczna przygotowuje warianty konkretnego projektu przewidując także inne technologie. Prosimy o sprawdzenie czy istnieje poszukiwana wersja projektu, w zakładce - warianty projektu.
Zwężenie/poszerzenie budynku* to nic innego jak zmiana w projekcie. Istnieje możliwość wprowadzenia takich zmian, we własnym zakresie (podczas adaptacji). *zwężenie/poszerzenie budynku nie powinno stanowić problemu w przypadku domów o dachu dwuspadowym jeśli wiąże się to z wydłużeniem/skróceniem kalenicy dachu.
Poznaj praktyczne porady ekspertów, które ułatwią Ci każdy etap budowy i od wyboru wymarzonego domu po jego wykończenie. Zyskaj pewność, że podejmujesz najlepsze decyzje dzięki sprawdzonym wskazówkom od specjalistów z planz.pl
Wycena szacunkowa, w kwotach netto, nie zawiera instalacji.
bezpłatnie (0zł)
przelew zwykły / PayNow
przy odbiorze
3-5 dni roboczych (jeśli projekt nie wymaga aktualizacji)
Wybierz wygodny dla Ciebie czas kontaktu z naszym Doradcą Technicznym.